Bureau en Malakoff disponible à louer
68

Espaces de bureaux à louer - Malakoff

Découvrez les derniers espaces de bureaux à louer à Malakoff - page 2

Plus de détails pour 58 Rue Gambetta, Malakoff - Bureau à louer

58 Rue Gambetta

92240 Malakoff

  • Bureau à louer
  • 290,62 € m²/an
  • 687 m²
  • 1 Espace | Disponible maintenant

Malakoff Bureau à louer - Zone Sud de Paris

ON vous propose en CO-EXCLUSIVITE à la vente ou à la location, dans un immeuble de très bon standing sur 3 étages, sécurisé par interphone et digicode, situé en plein coeur de la ville de Malakoff et de ses nombreux commerces, à deux pas de la porte « chatillon- Montrouge », une très belle surface de bureaux en très bon état, d'une superficie totale de 687 m² située au 2ème étage. Le plateau est traversant et lumineux grâce au patio extérieur de 143 m² accessible pour un moment de détente entre salariés. La surface est climatisée en double flux (chaud / froid). Le cloisonnement actuel propose des espaces répartis comme suit ; un espace accueil, 6 bureaux, une grande salle de réunion, 2 grands open space, un espace détente avec cuisine aménagée, des doubles sanitaires privatifs, des douches H et F. L'immeuble possède la fibre optique relayée sur le plateau via du câblage informatique en périphérie. 21 places de parkings sécurisées complètent ce bien. Situé à environ 10 / 15 minutes à pied du métro Ligne 13 station « Plateau de Vanves ». Bureaux traversants et lumineux tournant autour d'un patio terrasse central . double entrée sur le plateau possible . Sol PVC imitation parquet . Faux plafond . Climatisation réversible . Cloisonnement amovible (espace accueil, 6 bureaux, 1 salle de réunion, 2 grand open space) . Un espace détente / cuisine aménagé . Pré-câblage informatique . Fibre optique . Sanitaires privatifs . Douches aménagées . Grande terrasse privative de 143 m² environ et accessible

Contact:

Immprove 1ère Couronne Sud

Date de mise sur le marché :

07/09/2025

Cacher
Voir plus
Plus de détails pour 4 Rue Alfred De Musset, Malakoff - Bureau à louer

4 Rue Alfred De Musset

92240 Malakoff

  • Bureau à louer
  • 260,01 € m²/an
  • 298 m²
  • 3 Espaces | Disponible maintenant
Voir plus
Plus de détails pour 36 Avenue Pierre Brossolette, Malakoff - Bureau à louer

36 Avenue Pierre Brossolette

92240 Malakoff

  • Bureau à louer
  • 230,01 € m²/an
  • 317 m²
  • 1 Espace | Disponible maintenant
Voir plus
Plus de détails pour 16 Rue Chopin, Montrouge - Bureau à louer

16 Rue Chopin

92120 Montrouge

  • Bureau à louer
  • 330,00 € m²/an
  • 169 m²
  • 1 Espace | Disponible maintenant
Voir plus
Plus de détails pour 148 Avenue Pierre Brossolette, Malakoff - Bureau à louer

Tangram - 148 Avenue Pierre Brossolette

92240 Malakoff

  • Bureau à louer
  • 394,00 € m²/an
  • 238 – 1 524 m²
  • 2 Espaces | Disponible maintenant
Voir plus
Plus de détails pour 15 Boulevard Gabriel Péri, Malakoff - Bureau, Local d'activités à louer

Kalifornia - 15 Boulevard Gabriel Péri

92240 Malakoff

  • Bureau à louer
  • 708 – 3 479 m²
  • 4 Espaces | Disponible maintenant
  • Climatisation
  • Local à vélos
  • Faux plafond
  • Concierge

Malakoff Bureau, Local d'activités à louer - Zone Sud de Paris

EVOLIS vous propose à la location, à Malakoff, un ensemble de bureaux et espaces d'activités neufs totalisant 3 479 m², modulables à partir de 708 m² (division possible en 708 m², 1 098 m² et 1 673 m²). Cet immeuble indépendant s'inscrit dans une démarche de biodiversité positive, avec 2 500 m² de jardins paysagers et de nombreuses certifications environnementales (BBCA, HQE, BREEAM, BBC, WiredScore, Osmoz, BiodiverCity, Énergie + Carbone). Les bureaux offrent des prestations de haut niveau : hauteur libre de 2,70 m, faux plancher, plateaux de 18 m de profondeur, climatisation réversible et jusqu'à 30 % de surfaces dédiées aux salles de réunion. Les occupants bénéficient de services qualitatifs (restaurants, work café), d'une excellente accessibilité en transports en commun à proximité immédiate, ainsi que de 216 places de parking voitures, de stationnements pour deux-roues et vélos, et d'une aire de livraison dédiée. . Bâtiment BBCA . Bâtiment HQE . Certifications BREEAM et EFFINERGIE . Site clos . Accès sécurisé par badge . Visiophone . Digicode . Interphone . Contrôle d'accès . PC sécurité . Gardiennage . Accès PMR . Parties communes de bon standing . Ascenseur PMR . Hôtesse d'accueil . Conciergerie . Salle de réunion partagé . Jardin paysager . Cafétéria . R.I.E. . 4 500 m² d'espaces végétalisés : 2 000 m² de jardins et 2 500 m² de terrasses . 2 215 m² d'espaces de services . Espace ouvert . Locaux lumineux . Hauteur sous plafond de 3,71 mètres . Faux planchers techniques . Possibilité de normes E.R.P . Chauffage électrique . Local technique . Salle de réunion . Espace détente . Sanitaires privatifs . Cuisine . 6 places 2 roues . 51 m² de locaux vélos Surface RDC : 2771 m² Situation/Transports : Métro Ligne 13 - Malakoff Plateau de Vanves (7 min à pied) Bus Lignes 89, 126, 191, 391 Tram T3a - Porte de Vanves / Brancion Route Boulevard Périphérique : Porte de Vanves ou Porte de Châtillon Autoroute A6, A10 Velib' stations à proximité Dépot de garantie : 3 mois de loyer HT HC Conditions particulières à la location : Charges restauration et services: 24,47 euros/ m²/an HT . Taxe stationnement IDF: 4,89 euros/m²/an HT . Loyer parking 2 roues : 800 euros / emplacement HT HC

Contact:

EVOLIS PREMIERE COURONNE SUD

Date de mise sur le marché :

21/03/2026

Cacher
Voir plus
Plus de détails pour 1 Rue Augustine Variot, Malakoff - Coworking à louer

Cap Sud - 1 Rue Augustine Variot

92240 Malakoff

  • Coworking à louer
  • 10 – 50 m²
  • 3 Espaces | Disponible maintenant
  • Détecteur de fumée

Malakoff Coworking à louer - Zone Sud de Paris

Travaillez au sein d'une communauté de professionnels qui vous ressemblent dans notre bureau coworking. Nos espaces de coworking sont spécialement conçus pour favoriser la collaboration. Chaque détail est pris en charge pour que vous puissiez vous concentrer sur vos objectifs. Réservez un poste de travail dédié ou venez spontanément profiter de nos bureaux partagés en libre accès pour ouvrir de nouvelles portes à votre entreprise.Ancrez votre entreprise dans des bureaux professionnels à Gennevilliers, ville carrefour avec le plus grand port fluvial d’Île-de-France. Implanté dans un pôle de développement économique majeur situé au nord-ouest et à 12,5 km du centre de Paris. Choisissez votre moyen de transport préféré avec l’arrêt de bus RER de Gennevilliers, la gare et l’arrêt de tramway, tous à seulement une minute à pied du bureau. Lorsque vous rencontrez des clients étrangers, faites un voyage de 26 km en voiture jusqu’à l’aéroport de Paris Charles de Gaulle et partez ensemble sur les chapeaux de roue, avant d’utiliser nos salles de réunion modulables pour répondre à vos besoins professionnels. Impressionnez vos clients et vos collègues dès le départ avec nos bureaux modernes à Gennevilliers. Que vous collaboriez, que vous présentiez ou que vous travailliez en solo, nos espaces de coworking entièrement meublés, nos salles de réunion calmes et nos espaces privés avec WiFi de qualité professionnelle correspondent à votre professionnalisme. Après avoir été accueilli chaleureusement par l’équipe de réception, un café chaud de style barista est disponible pour vous aider à rester en pleine forme tout au long de la journée. Après une journée de travail productive, prenez le temps de découvrir ce que Gennevilliers a à offrir, notamment un musée, un théâtre et un cinéma. Vous voulez récompenser votre équipe ? Réservez une table au restaurant local, à seulement trois minutes à pied. Le coworking Regus comprend les éléments suivants : • Accès à notre réseau mondial comptant des milliers de sites dans le monde entier • Équipe d'assistance et de réception très expérimentée • Technologies et Wi-Fi de qualité et sécurisés • Imprimantes et accès à une aide administrative • Nettoyage, services et sécurité • Espace de bureau disponible à l'heure, à la journée ou au mois • Choisissez entre un espace ouvert et un bureau partagé • Possibilité de prendre un poste de travail dédié qui vous est réservé • Événements de réseautage et de la communauté périodiques • Gestion du compte et des réservations simplifiée via notre appli Nos espaces de coworking collaboratifs et notre option de colocation d'espaces de coworking vous offrent une flexibilité maximale pour répondre à vos besoins professionnels. Que vous cherchiez un coworking office, nous avons la solution adaptée pour vous. Les prix indiqués dans cette liste sont indicatifs et dépendent de la disponibilité. Toutes les images figurant sur cette liste représentent nos bureaux mais peuvent ne pas correspondre au centre en question. En savoir plus

Contact:

Regus

Type de propriété:

Bureau

Date de mise sur le marché :

16/12/2025

Cacher
Voir plus
Plus de détails pour Bureau à louer

92240 Malakoff

  • Bureau à louer
  • 220,09 € m²/an
  • 88 m²
  • 1 Espace | Disponible maintenant

Malakoff Bureau à louer - Paris Surrounding

ADVENIS CONSEIL vous propose à la location des bureaux d'une surface de 352 m² divisible à partir de 176 m², situés à Malakoff dans un immeuble de bon standing. Ces espaces de bureaux modernes et lumineux offrent un environnement de travail agréable pour vos employés. L'immeuble dispose de prestations de qualité telles qu'un accès sécurisé, des caméras de surveillance, d'un ascenseur, de la fibre optique, d'un câblage informatique ainsi qu'une climatisation réversible. La configuration de ces bureaux vous permet de bénéficier à la fois d'espaces ouverts mais modulables si besoin, vous permettant ainsi de personnaliser les espaces selon les besoins de votre entreprise. De plus, ces bureaux disposent d'une cuisine équipée et de sanitaires privatifs. Enfin, l'immeuble propose également 4 places de parkings pour vous et vos collaborateurs et d'un local vélos. La localisation de ces bureaux est idéale pour les entreprises souhaitant être proches du centre-ville tout en profitant d'un environnement calme. Les bureaux sont situés à 4 minutes de la station de métro « Malakoff ? Rue Etienne Dolet » et à 8 minutes de la station « Châtillon-Montrouge ». Ces bureaux sont proposés au prix de 180 Euros / m² / an. Votre interlocuteur dédié, Guillaume Catherine, se tient à votre disposition pour organiser une visite ou vous apporter tout renseignement complémentaire. - Type de bail : Commercial - Durée : 3/6/9 ans - Fiscalité : TVA - Indice : ILAT - Indexation : Annuelle - Dépôt de garantie : 3 mois - Loyers et charges : Trimestriels et d'avance - Accès sécurisé par digicode - Caméra de vidéo surveillance - Ascenseur - Fibre Optique - Prise RJ45 - Baie de brassage - Climatisation réversible - Chauffage électrique - Locaux livrés rénovés - Double exposition - Sanitaire privatif - Parking moto - Local vélos - 2 places de parking / plateau (bornes de recharge électriques)

Contact:

ADVENIS REAL ESTATE SOLUTIONS PARIS RIVE GAUCHE

Date de mise sur le marché :

31/03/2026

Cacher
Voir plus
Plus de détails pour Bureau à louer

92240 Malakoff

  • Bureau à louer
  • 220,02 € m²/an
  • 176 m²
  • 1 Espace | Disponible maintenant

Malakoff Bureau à louer - Zone Sud de Paris

ADVENIS CONSEIL vous propose à la location des bureaux d'une surface de 176 m², situés à Malakoff dans un immeuble de bon standing. Ces espaces de bureaux modernes et lumineux offrent un environnement de travail agréable pour vos employés. L'immeuble dispose de prestations de qualité telles qu'un accès sécurisé, des caméras de surveillance, d'un ascenseur, de la fibre optique, d'un câblage informatique ainsi qu'une climatisation réversible. La configuration de ces bureaux vous permet de bénéficier à la fois d'espaces ouverts mais modulables si besoin, vous permettant ainsi de personnaliser les espaces selon les besoins de votre entreprise. De plus, ces bureaux disposent d'une cuisine équipée et de sanitaires privatifs. Enfin, l'immeuble propose également 4 places de parkings pour vous et vos collaborateurs et d'un local vélos. La localisation de ces bureaux est idéale pour les entreprises souhaitant être proches du centre-ville tout en profitant d'un environnement calme. Les bureaux sont situés à 4 minutes de la station de métro « Malakoff ? Rue Etienne Dolet » et à 8 minutes de la station « Châtillon-Montrouge ». Ces bureaux sont proposés au prix de 180 Euros / m² / an. Votre interlocuteur dédié, Guillaume Catherine, se tient à votre disposition pour organiser une visite ou vous apporter tout renseignement complémentaire. - Type de bail : Commercial - Durée : 3/6/9 ans - Fiscalité : TVA - Indice : ILAT - Indexation : Annuelle - Dépôt de garantie : 3 mois - Loyers et charges : Trimestriels et d'avance - Accès sécurisé par digicode - Caméra de vidéo surveillance - Ascenseur - Fibre Optique - Prise RJ45 - Baie de brassage - Climatisation réversible - Chauffage électrique - Locaux livrés rénovés - Double exposition - Sanitaire privatif - Parking moto - Local vélos - 2 places de parking / plateau (bornes de recharge électriques)

Contact:

ADVENIS REAL ESTATE SOLUTIONS PARIS RIVE GAUCHE

Date de mise sur le marché :

31/03/2026

Cacher
Voir plus
Plus de détails pour Bureau à louer

92240 Malakoff

  • Bureau à louer
  • 201,29 € m²/an
  • 133 m²
  • 1 Espace | Disponible maintenant
Voir plus
Plus de détails pour Bureau, Local commercial à louer

92240 Malakoff

  • Bureau à louer
  • 214,10 € m²/an
  • 397 m²
  • 2 Espaces | Disponible maintenant
  • Climatisation

Malakoff Bureau, Local commercial à louer - Zone Sud de Paris

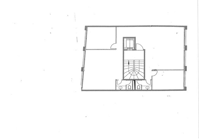
Isare immobilier vous propose un local commercial/bureau rénové d'environ 397 m² à la location, en pied d'immeuble de bureaux, situé au pied du métro 13 'Malakoff-Rue Etienne Dolet' (lot N°2 sur le plan en photo) Accessibilité : Au pied de l'arrêt de bus 191 'Etienne Dolet' À 700 m de la ligne SNCF N 'Vanves-Malakoff' Activités autorisées : Toute activité sauf restauration et supermarché. Idéal pour centres de formation, cabinets médicaux, professions libérales, bureaux de représentation ou filiales d'entreprises, salle de sport, instituts, call center/back office Caractéristiques : Surface d'environ 397 m² 7 places de parking en sous-sol et 2 en extérieur Chauffage et climatisation double flux 1 WC PMR + 3 WC classiques Local raccordé à la fibre Triphasé Éclairage LED Revêtement de sol en lino Conditions financières : Loyer HT bureau : 85 000 €/an Provision pour charges HT : 12 500 €/an Total loyer HT + Charges : 92 500 €/an Parking : Loyer HT Parking : 10 800 €/an Provision pour charges HT Parking : 800 €/an Total loyer HT + Charges pour le parking : 11 600 €/an Fiscalité : Provision Taxe foncière : 10 000 € soit 25,20 €/m² Provision Taxe bureaux : 7 500 € soit 18,90 €/m² Total Fiscalité : 17 500 € Loyer mensuel toutes charges comprises HT : 10 550 € (126 600 €/an) Garanties et dépôt de garantie Dépôt de garantie bureaux : 3 mois de loyer HT HC Garantie à première demande : 6 mois de loyer et accessoires TTC Honoraires : 30 % du loyer HT annuel à la charge du preneur Demandez une visite ! Vous recherchez des locaux d'activités, bureaux, locaux commerciaux, fonds de commerce, constructions neuves, à l'achat ou à la location ? Contactez-nous ! ISARE Immobilier s'engage à vous répondre dans la demi-journée, ou en cas de forte affluence sous 24 heures maximum ISARE sait animer et coordonner différents acteurs en immobilier, tels que notaires, maîtres d'oeuvre, géomètres, diagnostiqueurs, publicitaires, administrations, municipalités, franchiseurs, banquiers, pour vous offrir un service et un accompagnement des plus complets et réussir votre projet DPE vierge. Les informations sur les risques auxquels ce bien est exposé sont disponibles sur le site Géorisques : georisques.gouv.fr.

Contact:

Isare Immobilier

Date de mise sur le marché :

21/11/2025

Cacher
Voir plus
Plus de détails pour Bureau à louer

92240 Malakoff

  • Bureau à louer
  • 300,00 € m²/an
  • 625 – 1 333 m²
  • 1 Espace | Disponible maintenant
  • Lumière naturelle
  • Système de sécurité
  • Toilettes privées
  • Accès 24 h/24

Malakoff Bureau à louer - Zone Sud de Paris

Le bien est idéalement situé au cœur de Malakoff, une commune des Hauts-de-Seine limitrophe du 14? arrondissement de Paris, qui bénéficie d’un emplacement stratégique pour les entreprises souhaitant s’implanter à proximité immédiate de la capitale. Ce quartier combine le dynamisme d’une zone urbaine avec un cadre de vie agréable, offrant à la fois des infrastructures modernes et un environnement moins dense que Paris intra-muros. La desserte en transports en commun est particulièrement avantageuse?: le métro ligne 13, à seulement cinq minutes à pied, permet de rejoindre rapidement le centre de Paris et la Défense. Plusieurs lignes de bus traversent également la zone, facilitant les déplacements quotidiens des collaborateurs. Les accès routiers sont également optimisés, avec le périphérique parisien et les grands axes (A6, A86) à proximité, assurant des trajets rapides vers Paris, la région Île-de-France et les pôles économiques voisins. Le quartier offre un environnement professionnel attractif. On y trouve un mélange de bureaux modernes, de structures de formation et de petites entreprises locales, créant un écosystème favorable aux échanges professionnels et aux collaborations. La visibilité est renforcée par la façade du boulevard Camelinat, offrant un emplacement idéal pour des enseignes et activités nécessitant une exposition notable. Par ailleurs, le cadre de vie est agréable pour les salariés?: commerces de proximité, restaurants, cafés, banques et services administratifs sont accessibles à quelques minutes à pied, et des espaces verts se trouvent à proximité, permettant des pauses détente ou des promenades à l’extérieur. Cette combinaison d’accessibilité, de commodités et de cadre agréable fait de Malakoff un secteur privilégié pour installer des bureaux modernes et fonctionnels.

Contact:

Bail Buy

Date de mise sur le marché :

19/11/2025

Cacher
Voir plus
Plus de détails pour Bureau, Local d'activités à louer

92240 Malakoff

  • Local d’activités à louer
  • 262,90 € m²/an
  • 391 m²
  • 2 Espaces | Disponible maintenant
Voir plus
Plus de détails pour Bureau à louer

92170 Vanves

  • Bureau à louer
  • 170,04 € m²/an
  • 60 – 4 873 m²
  • 8 Espaces | Disponible maintenant
  • Climatisation
  • Lumière naturelle
  • Faux plafond
  • Accès 24 h/24
  • Accès contrôlé
  • Accessible fauteuils roulants

Vanves Bureau à louer - Zone Sud de Paris

Cushman & Wakefield vous propose à la location des surfaces de bureaux dans un immeuble atypique situé à Vanves, à seulement 2 minutes à pied du métro ligne 13. Les deux surfaces de 60 et 70 m² sont installées dans un bâtiment indépendant avec accès direct sur rue, offrant une grande liberté d'aménagement. Les plateaux de 500 m², avec une belle hauteur sous plafond de 3,7 m, se prêtent parfaitement aux activités de création nécessitant un espace de stockage. Espaces entièrement décloisonnés pour maximiser la flexibilité d'aménagement. Possibilité de places de parking pour un confort supplémentaire. Une opportunité rare dans un environnement inspirant et bien desservi. Si ces bureaux à louer vous intéressent et si vous souhaitez plus d'informations, contactez-moi dès aujourd'hui pour organiser une visite et concrétiser votre projet de location de votre futur espace de travail. Ensemble industriel atypique à proximité immédiate du périphérique Accueil Gardien Ascenseurs 2 monte-charges Contrôle d'accès : Badge Cour intérieure Accès livraison Fibre Optique 2ème étage : plateau rectangulaire sans contraintes porteuses, idéal pour activité production/création 3ème étage : locaux cloisonnés Chauffage par convecteurs électriques Surface RDC : 1330 m²

Contact:

CUSHMAN & WAKEFIELD IDF OUEST

Date de mise sur le marché :

09/03/2026

Cacher
Voir plus
Plus de détails pour Bureau, Local d'activités à louer

92240 Malakoff

  • Local d’activités à louer
  • 180,00 € m²/an
  • 394 m²
  • 2 Espaces | Disponible maintenant
Voir plus
Plus de détails pour Bureau à louer

92240 Malakoff

  • Bureau à louer
  • 200,11 € m²/an
  • 111 m²
  • 2 Espaces | Disponible maintenant
Voir plus
Plus de détails pour Bureau à louer

92240 Malakoff

  • Bureau à louer
  • 195,01 € m²/an
  • 873 m²
  • 1 Espace | Disponible maintenant
Voir plus
Plus de détails pour Bureau, Local d'activités à louer

92240 Malakoff

  • Bureau à louer
  • 236,00 € – 254,00 € m²/an
  • 90 – 1 439 m²
  • 6 Espaces | Disponible maintenant
Voir plus
Plus de détails pour Bureau à louer

92240 Malakoff

  • Bureau à louer
  • 214,01 € m²/an
  • 397 m²
  • 1 Espace | Disponible maintenant
Voir plus
Plus de détails pour Bureau à louer

92240 Malakoff

  • Bureau à louer
  • 234,38 € m²/an
  • 256 m²
  • 1 Espace | Disponible maintenant
  • Climatisation
  • Lumière naturelle
  • Système de sécurité
  • Toilettes privées
  • Réception
  • Accessible fauteuils roulants

Malakoff Bureau à louer

EVOLIS vous propose dans un quartier dynamique et très bien desservi, ces bureaux de 256 m² situés en rez-de-chaussée allient confort et fonctionnalité. La surface, lumineuse, est organisée en open space et en bureaux cloisonnés. Les locaux sont équipés d'une climatisation réversible garantissant un confort thermique optimal, d'une cuisine aménagée, de faux plafonds techniques, d'une entrée indépendante avec la possibilité d'un second accès, ainsi que de stationnements privatifs disponibles. ERP : 5ème catégorie . Climatisation réversible . Ascenseur PMR . Digicode . Fibre optique . Accès véhicule légers . Parties communes de qualité . Site sécurisé 24h/24h . Digicode . Interphone . Site clos . Accès sécurisé par badge . Sas d'entrée . Visiophone . Fibre optique . Accueil . Espace ouvert . Bureaux cloisonnés . Salle de réunion . Espace détente . Local technique . Cuisine . Sanitaires privatifs . Locaux en bon état . Locaux traversants et lumineux . Double exposition . Décloisonnement possible . Moquette . Précâblage informatique et téléphonique et prise RJ45 . Locaux E.R.P . Chauffage électrique Surface RDC : 256 m² Situation/Transports : Bus Etienne Dolet - Métro (191, 391, 597, 58, 89, 95, 126, 194, 323, 388, 391, N63, N66, N63) Métro Malakoff - Rue Etienne Dolet (13) Tram Châtillon - Montrouge (T6) SNCF Vanves-Malakoff (Gare SNCF) Grand Paris Express Châtillon - Montrouge (L15 Fin 2026) Transilien Vanves - Malakoff (N) Boulevard Périphérique Extérieur (Entrée), Boulevard Périphérique Extérieur (Sortie), Boulevard Périphérique Intérieur (Entrée Porte de Vanves, Porte de Brancion), Boulevard Périphérique Intérieur (Sortie Porte de Vanves, Porte de Brancion)

Contact:

EVOLIS PREMIERE COURONNE SUD

Date de mise sur le marché :

02/04/2026

Cacher
Voir plus
Plus de détails pour Bureau à louer

92240 Malakoff

  • Bureau à louer
  • 200,11 € m²/an
  • 111 m²
  • 1 Espace | Disponible maintenant

Malakoff Bureau à louer

ADVENIS CONSEIL vous propose à la location des bureaux rénovés d'une surface de 111 m² situés au sein d'un immeuble tertiaire de bon standing en R+5, idéalement implanté au pied du métro ligne 13 - station « Étienne Dolet ». Cette adresse stratégique offre une accessibilité immédiate aux transports en commun et permet de rejoindre rapidement Paris ainsi que les principaux pôles tertiaires du sud parisien, constituant ainsi un emplacement particulièrement recherché pour l'implantation d'une entreprise. Les bureaux à louer bénéficient d'une rénovation récente et proposent des prestations modernes et fonctionnelles adaptées aux besoins des entreprises. Le plateau est organisé en espace ouvert, permettant une utilisation immédiate sans travaux, et complété par des sanitaires privatifs. La surface dispose d'une climatisation réversible, de plinthes techniques périphériques pour le câblage informatique, d'un sol pvc durable et résistant, d'un faux plafond technique intégrant l'éclairage. Grâce à sa façade en mur rideau, les bureaux profitent d'une excellente luminosité naturelle offrant un cadre de travail confortable et valorisant pour les équipes. L'ensemble est également accessible aux personnes à mobilité réduite par deux ascenseurs et un cheminement en mobilité douce. L'immeuble tertiaire dans lequel se situe la surface propose des prestations de qualité avec un accès sécurisé par badge et interphone, la fibre optique ainsi que des parties communes entretenues. Plusieurs emplacements de stationnement sont disponibles au sein d'un parking sécurisé en sous-sol et en extérieur, un avantage rare pour des bureaux situés au pied du métro. Cette offre conviendra parfaitement à une PME, une société de conseil, une profession libérale ou une entreprise souhaitant implanter ses bureaux dans un secteur dynamique et parfaitement desservi. Pour organiser une visite de ces bureaux à louer, contactez Serge da Silva - ADVENIS CONSEIL. - Type de bail : Commercial - Durée : 3/6/9 ans - Fiscalité : TVA - Indice : ILAT - Indexation : Annuelle - Dépôt de garantie : 3 mois - Loyers et charges : Trimestriels et d'avance - Accès pour Personne à Mobilité Réduite - Accès sécurisé par digicode et interphone - 2 ascenseurs - Climatisation réversible - Fibre optique - Bureaux rénovés - Bureaux en angle - Sanitaires privatifs - Parking pour vélos - Parking : 4 places en sous-sol - Parking : 1 place en extérieur

Contact:

ADVENIS REAL ESTATE SOLUTIONS PARIS RIVE GAUCHE

Date de mise sur le marché :

31/03/2026

Cacher
Voir plus
Plus de détails pour Bureau, Local d'activités à louer

92240 Malakoff

  • Bureau à louer
  • 252,77 € m²/an
  • 127 – 1 198 m²
  • 5 Espaces | Disponible maintenant

Malakoff Bureau, Local d'activités à louer

EVOLIS vous propose à la location, en plein centre de Malakoff, un immeuble indépendant entièrement rénové dans un esprit industriel alliant cachet et modernité. Développé sur quatre niveaux (R+3), ce bâtiment atypique se distingue par ses volumes généreux, ses très belles hauteurs sous plafond et ses finitions soignées. Le dernier étage bénéficie d'une vaste terrasse privative offrant un espace extérieur rare et convivial. L'entrée s'ouvre sur un hall de type atelier avec un escalier cathédrale desservant les étages. En sous-sol, les espaces communs ont été aménagés pour favoriser la convivialité et le bien-être : salles de réunion, zones de détente et cafétéria. L'immeuble est équipé d'un ascenseur PMR et d'un système de climatisation réversible pour un confort optimal. Idéalement situé à proximité immédiate du métro ligne 13 (stations Malakoff - Plateau de Vanves et Étienne Dolet), il offre une accessibilité pratique depuis Paris et les communes voisines. Cet ensemble unique saura séduire les entreprises à la recherche d'un environnement de travail inspirant, spacieux et fonctionnel. . Accès véhicules légers . Accès PMR . Climatisation réversible . Parties communes de bon standing . Ascenseur desservant directement les locaux . Ascenseur PMR . Digicode . Interphone . Accès sécurisé par badge . Sas d'entrée . Visiophone . Fibre optique . Cour . Accueil . Espace ouvert . Salle de réunion . Espace détente . Local technique . Locaux refaits à neuf . Belle hauteur sous plafond . Locaux traversants . Locaux lumineux . Balcon . Chauffage électrique Surface RDC : 483 m² Situation/Transports : Bus Carrefour du 8 Mai 1945 (126, 191) SNCF Vanves-Malakoff (Gare SNCF) Grand Paris Express Châtillon - Montrouge (L15 Fin 2026) Transilien Vanves - Malakoff (N) A 6a, Boulevard Périphérique Extérieur, Boulevard Périphérique Intérieur (Entrée), A 6a, Boulevard Périphérique Extérieur (Sortie), Boulevard Périphérique Intérieur (Sortie Porte de Vanves, Porte de Brancion) Métro Ligne 13 Dépot de garantie : 3 mois de loyer HT HC

Contact:

EVOLIS PREMIERE COURONNE SUD

Date de mise sur le marché :

22/03/2026

Cacher
Voir plus
Plus de détails pour Bureau, Local d'activités à louer

92240 Malakoff

  • Local d’activités à louer
  • 252,77 € m²/an
  • 356 – 1 198 m²
  • 5 Espaces | Disponible maintenant

Malakoff Bureau, Local d'activités à louer

EVOLIS vous propose à la location, en plein centre de Malakoff, un immeuble indépendant entièrement rénové dans un esprit industriel alliant cachet et modernité. Développé sur quatre niveaux (R+3), ce bâtiment atypique se distingue par ses volumes généreux, ses très belles hauteurs sous plafond et ses finitions soignées. Le dernier étage bénéficie d'une vaste terrasse privative offrant un espace extérieur rare et convivial. L'entrée s'ouvre sur un hall de type atelier avec un escalier cathédrale desservant les étages. En sous-sol, les espaces communs ont été aménagés pour favoriser la convivialité et le bien-être : salles de réunion, zones de détente et cafétéria. L'immeuble est équipé d'un ascenseur PMR et d'un système de climatisation réversible pour un confort optimal. Idéalement situé à proximité immédiate du métro ligne 13 (stations Malakoff - Plateau de Vanves et Étienne Dolet), il offre une accessibilité pratique depuis Paris et les communes voisines. Cet ensemble unique saura séduire les entreprises à la recherche d'un environnement de travail inspirant, spacieux et fonctionnel. . Accès véhicules légers . Accès PMR . Climatisation réversible . Parties communes de bon standing . Ascenseur desservant directement les locaux . Ascenseur PMR . Digicode . Interphone . Accès sécurisé par badge . Sas d'entrée . Visiophone . Fibre optique . Cour . Accueil . Espace ouvert . Salle de réunion . Espace détente . Local technique . Locaux refaits à neuf . Belle hauteur sous plafond . Locaux traversants . Locaux lumineux . Balcon . Chauffage électrique Surface RDC : 483 m² Situation/Transports : Bus Carrefour du 8 Mai 1945 (126, 191) SNCF Vanves-Malakoff (Gare SNCF) Grand Paris Express Châtillon - Montrouge (L15 Fin 2026) Transilien Vanves - Malakoff (N) A 6a, Boulevard Périphérique Extérieur, Boulevard Périphérique Intérieur (Entrée), A 6a, Boulevard Périphérique Extérieur (Sortie), Boulevard Périphérique Intérieur (Sortie Porte de Vanves, Porte de Brancion) Métro Ligne 13 Dépot de garantie : 3 mois de loyer HT HC

Contact:

EVOLIS PREMIERE COURONNE SUD

Date de mise sur le marché :

22/03/2026

Cacher
Voir plus
24–46 sur 68

Guide immobilier : Espace de bureau à louer