Votre e-mail a été envoyé.
95380 Louvres Local commercial | 232 m² | À louer



Informations principales
- Quartier résidentiel en développement
- Programme immobilier récent
- À deux pas de la gare RER
Disponibilité de l’espace (1)
Afficher le tarif en
- Espace
- Surface
- Durée
-
Loyer
| Espace | Surface | Durée | Loyer | |||
| RDC | 232 m² | Négociable | 250,03 € HT-HC/m²/an 20,84 € HT-HC/m²/mois 58 007 € HT-HC/an 4 834 € HT-HC/mois |
RDC
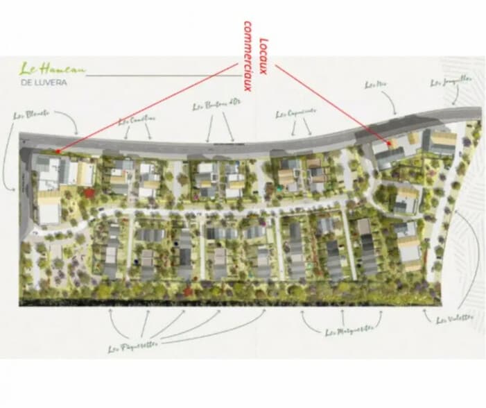
Ce local bénéficie d’un emplacement stratégique au cœur du nouveau programme immobilier Les Iris, au sein d’un environnement résidentiel dynamique en pleine expansion. Implanté en angle, il offre une visibilité optimale depuis deux rues très fréquentées, ce qui en fait un lieu particulièrement adapté pour accueillir un commerce recherchant une forte exposition. Le local, accessible directement depuis la rue grâce à de larges vitrines, est livré brut de béton avec les fluides en attente, permettant ainsi un aménagement sur mesure. Trois gaines techniques sont prévues pour faciliter l’installation des futurs équipements. La proximité immédiate de la gare ainsi que la présence de stationnements publics renforcent l’attractivité de cet emplacement pensé pour répondre aux besoins des commerçants souhaitant s’implanter dans un secteur en développement.
- Frais d’agence : 15,00 % du loyer annuel
-
Charges locatives : 25,00 € /m²/an 2,08 € /m²/mois 5 800 € /an 483,34 € /mois
- Partiellement aménagé comme Local commercial standard
- Espace en excellent état
- Système de sécurité
- Espace d’angle
Types de loyers
Le montant et le type de loyer que l’occupant (locataire) est tenu de payer au propriétaire (bailleur) sur la durée du bail sont négociés avant la signature du bail par les deux parties. Le type de loyer varie selon les services fournis. Par exemple, le prix d’un loyer triple net est habituellement inférieur à celui d’un bail à service complet puisque l’occupant est tenu d’assumer des dépenses supplémentaires par rapport au loyer de base. Contacter le broker chargé de l’annonce pour bien comprendre les coûts associés ou les dépenses supplémentaires pour chaque type de loyer.
1. Service complet: Un loyer qui comprend des services d’immeuble standards normaux fournis par le propriétaire dans le cadre d’une location annuelle de base.
2. Double net (NN): L’occupant paie seulement deux des frais de l’immeuble. Le propriétaire et l’occupant déterminent ces frais spécifiques avant la signature du bail.
3. Triple net (NNN): Un bail selon lequel l’occupant est responsable de tous les frais liés à sa part proportionnelle d’occupation de l’immeuble.
4. Brut modifié: Le brut modifié est un type général de bail dans lequel l’occupant est en général responsable de sa part proportionnelle d’une ou de plusieurs dépenses. C’est le propriétaire qui paie les frais restants. Consultez la liste ci-dessous pour connaître les structures de loyers bruts modifiés les plus courantes : 4. Plus services publics: Un type de bail brut modifié, où l’occupant est responsable à hauteur de sa part proportionnelle des services publics en plus du loyer. 4. Plus nettoyage: Un type de bail brut modifié, où l’occupant est responsable à hauteur de sa part proportionnelle du nettoyage en plus du loyer. 4. Plus électricité: Un type de bail brut modifié, où l’occupant est responsable à hauteur de sa part proportionnelle du coût de la consommation électrique en plus du loyer. 4. Plus électricité et nettoyage: Un type de bail brut modifié, où l’occupant est responsable à hauteur de sa part proportionnelle du coût de la consommation électrique et du nettoyage en plus du loyer. 4. Plus services publics et charges: Un type de bail brut modifié où l’occupant est responsable à hauteur de sa part proportionnelle des services publics et du coût de nettoyage en plus du loyer. 4. Bail industriel brut: Un type de bail brut modifié dans lequel l’occupant paie un ou plusieurs des frais en plus du loyer. Le propriétaire et l’occupant déterminent ces frais spécifiques avant la signature du bail.
5. Électricité à la charge de l’occupant: Le propriétaire paie pour tous les services et l’occupant est responsable de sa propre utilisation de l’éclairage et des prises électriques dans l’espace qu’il occupe.
6. Négociable ou sur demande: Cette option est utilisée lorsque le contact de location n’indique pas le type de loyer ou de service.
7. À déterminer: À déterminer : utilisé pour les immeubles dont le type de services ou de loyer n’est pas connu, souvent quand l’immeuble n’est pas encore construit.
Plan du site
Informations sur l’immeuble
| Espace total disponible | 232 m² | Surface commerciale utile | < 1 000 m² |
| Type de bien | Local commercial |
| Espace total disponible | 232 m² |
| Type de bien | Local commercial |
| Surface commerciale utile | < 1 000 m² |
À propos du bien
Situé dans le programme immobilier récemment livré Les Iris, ce bâtiment moderne s’inscrit dans un quartier résidentiel dense bénéficiant d’une forte fréquentation quotidienne. Son implantation à proximité de la gare RER D facilite l’accessibilité en transports en commun et le rend attractif pour les usagers comme pour les habitants du secteur. Le bâtiment profite également de son intégration dans un ensemble urbain en pleine évolution, avec de nouveaux logements et services venant renforcer son dynamisme. Les accès routiers majeurs sont rapidement atteignables, facilitant les déplacements en voiture. L’environnement immédiat comprend plusieurs commerces, services et équipements de quartier, contribuant à créer une zone de vie active autour du bâtiment.
Présenté par
"95380 Louvres"
Hum, une erreur s’est produite lors de l’envoi de votre message. Veuillez réessayer.
Merci ! Votre message a été envoyé.
