Industriel/Logistique en Violay disponible à louer
1

Espace industriel/logistique à louer près de Violay

Découvrez les derniers espaces industriels/logistiques à louer à Violay

Plus de détails pour Local d'activités à louer

42780 Violay

  • Local d'activités à louer
  • 80,20 € m²/an
  • 145 – 777 m²
  • 4 Espaces | Disponible bientôt

Violay Local d'activités à louer - Puy de dome/Allier/Cantal

Dans un environnement artisanal et d'activités à proximité immédiate de l'A89 sur la commune de Violay dans le département de la Loire entre Tarare et Feurs, nous vous proposons à la location, au sein d'un bâtiment en construction, des locaux d'activités neufs d'une surface totale d'environ 777 m² divisibles à partir de 145 m², proposant des surfaces d'activités / stockage en RDC et des bureaux en mezzanine (avec une partie aménagée et une partie brute qui est possible d'aménager selon vos besoins). Livraison prévisionnelle Septembre 2026 ! Location Locaux d'Activités neufs - Violay (42780) - 777 m² divisibles à partir de 145 m² MALSH Realty vous propose à la location dans un environnement artisanal et d'activités à proximité immédiate de l'A89 sur la commune de Violay dans le département de la Loire entre Tarare et Feurs, au sein d'un bâtiment en construction, des locaux d'activités neufs d'une surface totale d'environ 777 m² divisibles à partir de 145 m², proposant des surfaces d'activités / stockage en RDC et des bureaux en mezzanine (avec une partie aménagée et une partie brute qui est possible d'aménager selon vos besoins). Livraison prévisionnelle Septembre 2026 ! Programme neuf bénéficiant d'une conception moderne et fonctionnelle. Principales caractéristiques envisagées : . bâtiment d'activité neuf . surfaces d'atelier / stockage en rez-de-chaussée . mezzanines permettant l'aménagement de bureaux . accès indépendant aux cellules . portes sectionnelles pour les parties activité . sanitaires et espaces techniques prévus . possibilité d'aménagement de bureaux supplémentaires selon les besoins des utilisateurs Les surfaces de mezzanine pourront être aménagées selon vos besoins afin d'accueillir : . bureaux . salle de réunion . locaux sociaux . kitchenette Surface terrain : 2661 Situation/Transports : Autoroute Accès immédiat à l'autoroute A89 (reliant Lyon à Clermont Ferrand), permettant de rejoindre : Tarare en environ 15 minutes Roanne en environ 35 minutes Lyon en environ 45 minutes Dépot de garantie : 3 mois de loyer HT/HC

Contact:

MALSH Realty

Type de propriété:

Local d’activités

Date de mise sur le marché :

22/05/2026

Cacher
Voir plus

Espaces industriels/logistiques à louer à moins de 10 kilomètres de Violay

Plus de détails pour 17 Rue De Paris, Tarare - Local d'activités à louer

17 Rue De Paris

69170 Tarare

  • Local d'activités à louer
  • 101,38 € m²/an
  • 169 – 2 741 m²
  • 10 Espaces | Disponible maintenant
  • Climatisation
  • Système de sécurité
  • Accessible fauteuils roulants

Tarare Local d'activités à louer - Puy de dome/Allier/Cantal

Le village d'entreprises, s'étendant sur environ 9 000 m², comprend divers espaces : des locaux d'activité, des showrooms, un complexe de loisirs, des bureaux, et des services de restauration. Tous les bâtiments sont équipés de mezzanines, offrant une grande flexibilité d'aménagement. La mezzanine peut être aménagée en bureaux ou facilement cloisonnée pour créer un espace de stockage, tandis que le rez-de-chaussée peut accueillir des ateliers. Les bâtiments B, C, D, et E sont particulièrement adaptés aux activités artisanales et industrielles. Le bâtiment A se distingue par de grandes ouvertures vitrées donnant sur la route de Paris (RN 7), offrant une excellente visibilité et de vastes vitrines, ce qui en fait un espace showroom idéal pour des activités tertiaires. . Fluides en attente . Menuiseries Aluminium . Parking partagé . Portes sectionnelles motorisées Tous les bâtiments disposent d'une mezzanine et offrent une grande latitude d'aménagement. La mezzanine peut accueillir des bureaux et peut facilement être fermée pour créer un espace de stockage. L'espace de plain-pied peut s'imaginer en atelier. Ces bâtiments (B, C, D, E) sont particulièrement adaptés à des activités artisanales. Le bâtiment A propose en plus de larges ouvertures vitrées orientées sur la route de Paris (RN 7), offrant de belles vitrines. Cette dimension showroom peut parfaitement convenir à des activités tertiaires. Surface RDC : 4189 m² Surface terrain : 0 Haut. libre max. ss poutre : 5,7 m Equipements entrepôts : Hauteur libre sous mezzanine 2,50 m Ossature : Bois Murs périmétriques : Métallique Situation/Transports : Autoroute A89 Sortie 34 SNCF Gare de Tarare

Contact:

SLDI

Type de propriété:

Local d’activités

Date de mise sur le marché :

01/04/2026

Cacher
Voir plus
Plus de détails pour À 19 Rue De Paris, Tarare - Local d'activités à louer

Bâtiment B - À 19 Rue De Paris

69170 Tarare

  • Local d'activités à louer
  • 99,54 € m²/an
  • 169 – 2 558 m²
  • 10 Espaces | Disponible maintenant
  • Climatisation
  • Système de sécurité
  • Faux plafond
  • Vidéosurveillance en circuit fermé
  • Conforme à la DDA (loi sur la discrimination à l’égard des personnes handicapées)
  • Détecteur de fumée
  • Accessible fauteuils roulants

Tarare Local d'activités à louer - Rhône Ouest

Les cellules disponibles au sein du Parc du Viaduc sont conçues pour accueillir des activités variées dans des bâtiments neufs. Elles offrent une grande flexibilité d’aménagement grâce à une mezzanine intégrée, une structure robuste et des prestations techniques complètes. Chaque lot bénéficie d’un accès de plain-pied par porte sectionnelle motorisée, complété par une porte de service facilitant la circulation. Les espaces disposent d’une hauteur confortable permettant l’installation d’équipements ou de zones de stockage. Les aménagements comprennent des menuiseries aluminium avec rupture de pont thermique, une dalle quartz, un tableau électrique raccordé et les fluides en attente pour permettre une installation rapide. La climatisation réversible par cassettes encastrées assure un confort optimal. Les sanitaires sont situés en parties communes. Le parc constitue un nouveau pôle économique dynamique réunissant entreprises, commerces, bureaux, hôtel et équipements de loisirs dans un environnement mixte et attractif. L’ensemble immobilier a été conçu dans une logique écoresponsable avec des matériaux durables et une architecture favorisant la performance énergétique. Les bâtiments présentent, selon les zones, une structure en métal ou en bois, un bardage double peau ou panneau sandwich, ainsi qu’une couverture en bac acier assurant une bonne tenue et une isolation performante. Situé à l’entrée de Tarare, à proximité immédiate de l’autoroute A89 et en façade de la N7, le site bénéficie d’un accès rapide aux principaux axes routiers. La gare SNCF, à quelques minutes, renforce son accessibilité pour les collaborateurs et visiteurs. Le stationnement est assuré par une large offre de places mutualisées.

Contact:

SOROVIM

Type de propriété:

Local d’activités

Date de mise sur le marché :

26/05/2026

Cacher
Voir plus
Plus de détails pour Bureau, Local d'activités à louer

69170 Tarare

  • Local d’activités à louer
  • 99,32 € – 147,34 € m²/an
  • 93 – 5 207 m²
  • 8 Espaces | Disponible maintenant
  • Système de sécurité
  • Accessible fauteuils roulants

Tarare Bureau, Local d'activités à louer - Rhône Ouest

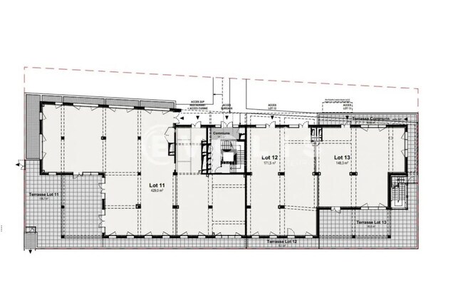
Le Parc du Viaduc à Tarare propose des lots de 160 à 300 m² disponibles à la vente et/ou à la location, pour un total de 5 207 m² au sein du parc d'activité. Les locaux, livrés bruts avec fluides en attente, sont adaptés aux activités artisanales, industrielles légères, au stockage, aux start-up et aux petites entreprises. Des bureaux sont également disponibles à la vente sur le parc. Surface RDC : 3912 m². Le programme neuf offre des cellules flexibles, avec des volumes faciles à adapter et des hauteurs confortables permettant d'implanter aussi bien des machines que des espaces de travail. En activités, il comprend une charpente ossature bois, des façades légères à ossature métallique, une hauteur libre sous plafond de 5,70 mètres et une hauteur libre sous mezzanine de 2,50 mètres. Pour les bureaux, la hauteur sous plafond est de 2,70 mètres, avec une modularité du cloisonnement basée sur un tramage tous les 2,70 mètres, un traitement hygiénique par ventilation mécanique d'air à double flux et une production calorifique / frigorifique par système PAC DRV 2 tubes dans un local technique au niveau 0. Pour les commerces, le bâtiment est en ERP catégorie 5 non définie, avec un bâtiment en ERP catégorie 3 type N pour le lot 11 uniquement ; la hauteur sous poutre est de 2,80 mètres au niveau 0 et de 3,30 mètres au niveau 1, avec une modularité du cloisonnement basée sur un tramage tous les 2,70 mètres et une prédisposition pour équipement technique en attente en sous-sol. Le site dispose d'un parking mutualisé de 168 places. La conception récente du site garantit un niveau de performance technique élevé et une qualité d'exploitation durable. Idéalement situé à Tarare, le parc se trouve à proximité immédiate de l'autoroute A89, à seulement 20 minutes de la TECHLID et à moins de quarante-cinq minutes des principales gares lyonnaises. Il permet de connecter aisément les différents bassins économiques de la région, tout en offrant un environnement calme et propice aux activités de production ou de logistique légère.

Contact:

EVOLIS Lyon

Date de mise sur le marché :

03/02/2026

Cacher
Voir plus
Plus de détails pour Local d'activités à louer

69170 Tarare

  • Local d'activités à louer
  • 100,19 € m²/an
  • 169 – 2 905 m²
  • 11 Espaces | Disponible maintenant

Tarare Local d'activités à louer - Puy de dome/Allier/Cantal

Au sein d'un nouveau parc d'activités composé de 6 bâtiments à Tarare, nous vous proposons à la vente ou à la location, des locaux d'activités neufs d'une surface totale d'environ 2905 m² divisibles en plusieurs lots à partir de 169 m². Belle visibilité sur la rue de Paris, nombreux stationnements en commun. Vente ou Location Locaux d'Activités neufs - Tarare (69170) - 2 905 m² divisibles à partir de 169 m² MALSH Realty & Property vous propose à la vente ou à la location, au sein d'un nouveau parc d'activités composé de 6 bâtiments à Tarare, des locaux d'activités neufs d'une surface totale d'environ 2905 m² divisibles en plusieurs lots à partir de 169 m². Belle visibilité sur la rue de Paris, nombreux stationnements en commun. Disponible immédiatement ! Construction : Structure métallique / bois (selon les bâtiments) Couverture par bac acier - étanchéité multicouche Bardage double peau et panneau sandwich Menuiserie Alu avec rupture de pont thermique Dalle béton quartz Fluides en attente (France Télécom, eau et eaux usées, sauf EDF raccordé avec consuel) Activité : Hauteur utile : 6 m sous sablière suivant les bâtiments 1 porte sectionnelle motorisée de plain-pied de 3 m x 3,50 m + 1 porte de service Eclairage industriel par rampes tubes fluo Prise électrique sous TGBT Mezzanine : Accès par escalier métallique Mezzanine dalle béton plancher collaborant Rambarde de sécurité Châssis vitrés à l'étage Electricité : tableau réalisé et connecté au réseau pour tarifs bleus maxi Situation/Transports : Route Proche des principaux axes routiers Route En façade de la N7 Autoroute Autoroute A89 à proximité immédiate (sortie 34 à 5 km) SNCF Gare de Tarare à 2 km Refacturation de la taxe d'urbanisme à prévoir Conditions particulières à la vente : Refacturation de la taxe d'urbanisme à prévoir

Contact:

MALSH Realty

Type de propriété:

Local d’activités

Date de mise sur le marché :

22/05/2026

Cacher
Voir plus

Guide immobilier : Espace industriel/logistique à louer

Espaces industriels/logistiques à louer - Violay

Voir tout espaces industriels/logistiques à louer
Combien d'espaces industriels/logistiques sont actuellement à louer à Violay ?
Si vous êtes à la recherche d'espaces industriels/logistiques la location à Violay, vous pouvez choisir parmi 4 espaces industriels/logistiques disponibles sur LoopNet.
Quel est le prix moyen des espaces industriels/logistiques à louer à Violay ?
  • Le prix moyen des espaces industriels/logistiques à Violay est de 69 €/m2/an.
  • Les espaces industriels/logistiques les moins chers sont proposés à 69 €/m2/an.
  • Les espaces industriels/logistiques le plus chers atteignent 69 €/m2/an.
  • Espaces industriels/logistiques à louer à Violay

    Vous recherchez des Espaces industriels/logistiques. Vous êtes au bon endroit.

    Découvrez 4 annonce disponibles sur LoopNet, la première marketplace mondiale dédiée à l’immobilier d'entreprise. Que vous soyez à la recherche de bureaux flexibles, d’un local commercial bien situé, d’un entrepôt ou d’un local d'activités, LoopNet vous met en relation avec les meilleurs professionnels de l'immobiliers de Violay.

    Chaque annonce contient des informations détaillées : surface, usage autorisé, loyer, conditions de bail... Vous pouvez consulter des photos haute résolution, des plans détaillés, et découvrir les équipements disponibles – tout ce qu’il vous faut pour prendre une décision éclairée.

    Avec l’inventaire le plus complet du marché, LoopNet vous aide à trouver l’espace idéal pour vos besoins professionnels – que vous développiez votre activité, déménagiez ou lanciez un nouveau projet.

    Tendance du marché : le loyer moyen pour des Espaces industriels/logistiques à Violay est de 69 €/m2/a.

    Commencez votre recherche avec LoopNet – la Marketplace d’immobilier d’entreprise n° 1 au monde.