Votre e-mail a été envoyé.
92230 Gennevilliers Industriel/Logistique | 1 108–2 244 m² | À louer



Informations principales
- Accès A86 et RER C
- Voierie lourde adaptée
- Zone d’activités recherchée
Disponibilité de l’espace (1)
Afficher le tarif en
- Espace
- Surface
- Durée
-
Loyer
| Espace | Surface | Durée | Loyer | |||
| RDC | 1 108 – 1 122 m² | Négociable | 175,00 € HT-HC/m²/an 14,58 € HT-HC/m²/mois 196 350 € HT-HC/an 16 362 € HT-HC/mois |
RDC
Cet espace fonctionnel est conçu pour des activités industrielles ou de stockage, avec une hauteur sous plafond généreuse et une résistance au sol adaptée aux charges lourdes. Il dispose d’un accès de plain-pied et d’un quai de chargement pour faciliter les opérations logistiques. L’environnement est sécurisé et équipé de prestations techniques telles que faux plafonds et double vitrage, garantissant confort et efficacité.
-
Charges locatives : 15,75 € /m²/an 1,31 € /m²/mois 17 672 € /an 1 473 € /mois
- Dépôt de garantie : 3 mois de loyer
-
Taxe bureaux : 15,00 € /m²/an 1,25 € /m²/mois 16 830 € /an 1 403 € /mois
-
Taxe foncière : 10,85 € /m²/an 0,90 € /m²/mois 12 173 € /an 1 014 € /mois
- Espace en excellent état
- Système de sécurité
- Vidéosurveillance
- Entreposage sécurisé
- Plafonds suspendus
- Lumière naturelle
- Accessible fauteuils roulants
- Accès plain-pied et quai
- Parking privatif (23 places)
- Hauteur sous plafond 8-9 m
Types de loyers
Le montant et le type de loyer que l’occupant (locataire) est tenu de payer au propriétaire (bailleur) sur la durée du bail sont négociés avant la signature du bail par les deux parties. Le type de loyer varie selon les services fournis. Par exemple, le prix d’un loyer triple net est habituellement inférieur à celui d’un bail à service complet puisque l’occupant est tenu d’assumer des dépenses supplémentaires par rapport au loyer de base. Contacter le broker chargé de l’annonce pour bien comprendre les coûts associés ou les dépenses supplémentaires pour chaque type de loyer.
1. Service complet: Un loyer qui comprend des services d’immeuble standards normaux fournis par le propriétaire dans le cadre d’une location annuelle de base.
2. Double net (NN): L’occupant paie seulement deux des frais de l’immeuble. Le propriétaire et l’occupant déterminent ces frais spécifiques avant la signature du bail.
3. Triple net (NNN): Un bail selon lequel l’occupant est responsable de tous les frais liés à sa part proportionnelle d’occupation de l’immeuble.
4. Brut modifié: Le brut modifié est un type général de bail dans lequel l’occupant est en général responsable de sa part proportionnelle d’une ou de plusieurs dépenses. C’est le propriétaire qui paie les frais restants. Consultez la liste ci-dessous pour connaître les structures de loyers bruts modifiés les plus courantes : 4. Plus services publics: Un type de bail brut modifié, où l’occupant est responsable à hauteur de sa part proportionnelle des services publics en plus du loyer. 4. Plus nettoyage: Un type de bail brut modifié, où l’occupant est responsable à hauteur de sa part proportionnelle du nettoyage en plus du loyer. 4. Plus électricité: Un type de bail brut modifié, où l’occupant est responsable à hauteur de sa part proportionnelle du coût de la consommation électrique en plus du loyer. 4. Plus électricité et nettoyage: Un type de bail brut modifié, où l’occupant est responsable à hauteur de sa part proportionnelle du coût de la consommation électrique et du nettoyage en plus du loyer. 4. Plus services publics et charges: Un type de bail brut modifié où l’occupant est responsable à hauteur de sa part proportionnelle des services publics et du coût de nettoyage en plus du loyer. 4. Bail industriel brut: Un type de bail brut modifié dans lequel l’occupant paie un ou plusieurs des frais en plus du loyer. Le propriétaire et l’occupant déterminent ces frais spécifiques avant la signature du bail.
5. Électricité à la charge de l’occupant: Le propriétaire paie pour tous les services et l’occupant est responsable de sa propre utilisation de l’éclairage et des prises électriques dans l’espace qu’il occupe.
6. Négociable ou sur demande: Cette option est utilisée lorsque le contact de location n’indique pas le type de loyer ou de service.
7. À déterminer: À déterminer : utilisé pour les immeubles dont le type de services ou de loyer n’est pas connu, souvent quand l’immeuble n’est pas encore construit.
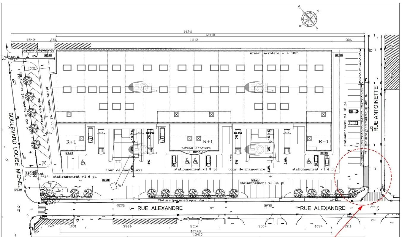
Plan du site
Informations sur l’immeuble
| Espace total disponible | 1 122 m² | Surface commerciale utile | 1 000 - 5 000 m² |
| Type de bien | Local commercial | Année de construction | 2000 - 2009 |
| Espace total disponible | 1 122 m² |
| Type de bien | Local commercial |
| Surface commerciale utile | 1 000 - 5 000 m² |
| Année de construction | 2000 - 2009 |
À propos du bien
Situé au cœur d’une zone d’activités dynamique à Gennevilliers, ce bâtiment bénéficie d’une excellente accessibilité grâce à la proximité immédiate de l’A86 et du RER C (station Les Grésillons). L’immeuble est conçu pour répondre aux besoins des entreprises industrielles et logistiques, avec des prestations techniques fiables et un environnement sécurisé. La voierie lourde permet la circulation des poids lourds, et le site est entouré d’infrastructures et de services facilitant l’activité professionnelle.
Principaux commerces à proximité
Présenté par
"92230 Gennevilliers"
Hum, une erreur s’est produite lors de l’envoi de votre message. Veuillez réessayer.
Merci ! Votre message a été envoyé.
