Votre e-mail a été envoyé.
Informations principales
- Hub de trois bâtiments
- Le ratio de parking est de 1 place pour 68 m²
- Accès facile aux transports en commun
Tous les espaces disponibles(5)
Afficher les loyers en
- Espace
- Surface
- Durée
-
Loyer
- Type de bien
- État
- Disponible
Le programme SOCONA propose des bureaux entièrement rénovés, offrant une surface totale de 17 524 m², divisibles à partir de 2 484 m². Chaque plateau est modulable, permettant une personnalisation selon les besoins des entreprises. Les bureaux bénéficient de grandes façades vitrées, assurant une luminosité optimale. Le bâtiment est équipé de la climatisation, avec des ascenseurs desservant tous les niveaux. Des espaces verts, des terrasses et un jardin intérieur créent un cadre de travail agréable et apaisant.
- Frais d’agence : 15,00 % du loyer annuel
- Dépôt de garantie : 3 mois de loyer
- Principalement open space
- Bureaux cloisonnés
- Climatisation centrale
- Balcon
- Les plateaux sont modulables
-
Charges locatives : 35,00 € /m²/an 2,92 € /m²/mois 133 560 € /an 11 130 € /mois
- Entièrement aménagé comme Bureau standard
- Convient pour 104 à 318 personnes
- Peut être associé à un ou plusieurs espaces supplémentaires pour obtenir jusqu’à 17 523 m² d’espace adjacent.
- Accès aux ascenseurs
- Bureaux entièrement rénovés
Le programme SOCONA propose des bureaux entièrement rénovés, offrant une surface totale de 17 524 m², divisibles à partir de 2 484 m². Chaque plateau est modulable, permettant une personnalisation selon les besoins des entreprises. Les bureaux bénéficient de grandes façades vitrées, assurant une luminosité optimale. Le bâtiment est équipé de la climatisation, avec des ascenseurs desservant tous les niveaux. Des espaces verts, des terrasses et un jardin intérieur créent un cadre de travail agréable et apaisant.
- Frais d’agence : 15,00 % du loyer annuel
- Dépôt de garantie : 3 mois de loyer
- Principalement open space
- Bureaux cloisonnés
- Climatisation centrale
- Balcon
- Les plateaux sont modulables
-
Charges locatives : 35,00 € /m²/an 2,92 € /m²/mois 127 785 € /an 10 649 € /mois
- Entièrement aménagé comme Bureau standard
- Convient pour 99 à 305 personnes
- Peut être associé à un ou plusieurs espaces supplémentaires pour obtenir jusqu’à 17 523 m² d’espace adjacent.
- Accès aux ascenseurs
- Bureaux entièrement rénovés
Le programme SOCONA propose des bureaux entièrement rénovés, offrant une surface totale de 17 524 m², divisibles à partir de 2 484 m². Chaque plateau est modulable, permettant une personnalisation selon les besoins des entreprises. Les bureaux bénéficient de grandes façades vitrées, assurant une luminosité optimale. Le bâtiment est équipé de la climatisation, avec des ascenseurs desservant tous les niveaux. Des espaces verts, des terrasses et un jardin intérieur créent un cadre de travail agréable et apaisant.
- Frais d’agence : 15,00 % du loyer annuel
- Dépôt de garantie : 3 mois de loyer
- Principalement open space
- Bureaux cloisonnés
- Climatisation centrale
- Balcon
- Les plateaux sont modulables
-
Charges locatives : 35,00 € /m²/an 2,92 € /m²/mois 132 335 € /an 11 028 € /mois
- Entièrement aménagé comme Bureau standard
- Convient pour 103 à 316 personnes
- Peut être associé à un ou plusieurs espaces supplémentaires pour obtenir jusqu’à 17 523 m² d’espace adjacent.
- Accès aux ascenseurs
- Bureaux entièrement rénovés
Le programme SOCONA propose des bureaux entièrement rénovés, offrant une surface totale de 17 524 m², divisibles à partir de 2 484 m². Chaque plateau est modulable, permettant une personnalisation selon les besoins des entreprises. Les bureaux bénéficient de grandes façades vitrées, assurant une luminosité optimale. Le bâtiment est équipé de la climatisation, avec des ascenseurs desservant tous les niveaux. Des espaces verts, des terrasses et un jardin intérieur créent un cadre de travail agréable et apaisant.
- Frais d’agence : 15,00 % du loyer annuel
- Dépôt de garantie : 3 mois de loyer
- Principalement open space
- Bureaux cloisonnés
- Climatisation centrale
- Balcon
- Les plateaux sont modulables
-
Charges locatives : 35,00 € /m²/an 2,92 € /m²/mois 132 685 € /an 11 057 € /mois
- Entièrement aménagé comme Bureau standard
- Convient pour 103 à 316 personnes
- Peut être associé à un ou plusieurs espaces supplémentaires pour obtenir jusqu’à 17 523 m² d’espace adjacent.
- Accès aux ascenseurs
- Bureaux entièrement rénovés
Le programme SOCONA propose des bureaux entièrement rénovés, offrant une surface totale de 17 524 m², divisibles à partir de 2 484 m². Chaque plateau est modulable, permettant une personnalisation selon les besoins des entreprises. Les bureaux bénéficient de grandes façades vitrées, assurant une luminosité optimale. Le bâtiment est équipé de la climatisation, avec des ascenseurs desservant tous les niveaux. Des espaces verts, des terrasses et un jardin intérieur créent un cadre de travail agréable et apaisant.
- Frais d’agence : 15,00 % du loyer annuel
- Dépôt de garantie : 3 mois de loyer
- Principalement open space
- Bureaux cloisonnés
- Climatisation centrale
- Balcon
- Les plateaux sont modulables
-
Charges locatives : 35,00 € /m²/an 2,92 € /m²/mois 86 940 € /an 7 245 € /mois
- Entièrement aménagé comme Bureau standard
- Convient pour 68 à 207 personnes
- Peut être associé à un ou plusieurs espaces supplémentaires pour obtenir jusqu’à 17 523 m² d’espace adjacent.
- Accès aux ascenseurs
- Bureaux entièrement rénovés
| Espace | Surface | Durée | Loyer | Type de bien | État | Disponible |
| RDC | 3 816 m² | 9 Ans | 210,00 € HT-HC/m²/an 17,50 € HT-HC/m²/mois 801 358 € HT-HC/an 66 780 € HT-HC/mois | Bureau | Construction achevée | Maintenant |
| 1er étage | 3 651 m² | 9 Ans | 210,00 € HT-HC/m²/an 17,50 € HT-HC/m²/mois 766 708 € HT-HC/an 63 892 € HT-HC/mois | Bureau | Construction achevée | Maintenant |
| 2e étage | 3 781 m² | 9 Ans | 210,00 € HT-HC/m²/an 17,50 € HT-HC/m²/mois 794 008 € HT-HC/an 66 167 € HT-HC/mois | Bureau | Construction achevée | Maintenant |
| 3e étage | 3 791 m² | 9 Ans | 210,00 € HT-HC/m²/an 17,50 € HT-HC/m²/mois 796 108 € HT-HC/an 66 342 € HT-HC/mois | Bureau | Construction achevée | Maintenant |
| 4e étage | 2 484 m² | 9 Ans | 210,00 € HT-HC/m²/an 17,50 € HT-HC/m²/mois 521 639 € HT-HC/an 43 470 € HT-HC/mois | Bureau | Construction achevée | Maintenant |
RDC
| Surface |
| 3 816 m² |
| Durée |
| 9 Ans |
|
Loyer
|
| 210,00 € HT-HC/m²/an 17,50 € HT-HC/m²/mois 801 358 € HT-HC/an 66 780 € HT-HC/mois |
| Type de bien |
| Bureau |
| État |
| Construction achevée |
| Disponible |
| Maintenant |
1er étage
| Surface |
| 3 651 m² |
| Durée |
| 9 Ans |
|
Loyer
|
| 210,00 € HT-HC/m²/an 17,50 € HT-HC/m²/mois 766 708 € HT-HC/an 63 892 € HT-HC/mois |
| Type de bien |
| Bureau |
| État |
| Construction achevée |
| Disponible |
| Maintenant |
2e étage
| Surface |
| 3 781 m² |
| Durée |
| 9 Ans |
|
Loyer
|
| 210,00 € HT-HC/m²/an 17,50 € HT-HC/m²/mois 794 008 € HT-HC/an 66 167 € HT-HC/mois |
| Type de bien |
| Bureau |
| État |
| Construction achevée |
| Disponible |
| Maintenant |
3e étage
| Surface |
| 3 791 m² |
| Durée |
| 9 Ans |
|
Loyer
|
| 210,00 € HT-HC/m²/an 17,50 € HT-HC/m²/mois 796 108 € HT-HC/an 66 342 € HT-HC/mois |
| Type de bien |
| Bureau |
| État |
| Construction achevée |
| Disponible |
| Maintenant |
4e étage
| Surface |
| 2 484 m² |
| Durée |
| 9 Ans |
|
Loyer
|
| 210,00 € HT-HC/m²/an 17,50 € HT-HC/m²/mois 521 639 € HT-HC/an 43 470 € HT-HC/mois |
| Type de bien |
| Bureau |
| État |
| Construction achevée |
| Disponible |
| Maintenant |
RDC
| Surface | 3 816 m² |
| Durée | 9 Ans |
|
Loyer
|
210,00 € HT-HC/m²/an |
| Type de bien | Bureau |
| État | Construction achevée |
| Disponible | Maintenant |
Le programme SOCONA propose des bureaux entièrement rénovés, offrant une surface totale de 17 524 m², divisibles à partir de 2 484 m². Chaque plateau est modulable, permettant une personnalisation selon les besoins des entreprises. Les bureaux bénéficient de grandes façades vitrées, assurant une luminosité optimale. Le bâtiment est équipé de la climatisation, avec des ascenseurs desservant tous les niveaux. Des espaces verts, des terrasses et un jardin intérieur créent un cadre de travail agréable et apaisant.
- Frais d’agence : 15,00 % du loyer annuel
-
Charges locatives : 35,00 € /m²/an 2,92 € /m²/mois 133 560 € /an 11 130 € /mois
- Dépôt de garantie : 3 mois de loyer
- Entièrement aménagé comme Bureau standard
- Principalement open space
- Convient pour 104 à 318 personnes
- Bureaux cloisonnés
- Peut être associé à un ou plusieurs espaces supplémentaires pour obtenir jusqu’à 17 523 m² d’espace adjacent.
- Climatisation centrale
- Accès aux ascenseurs
- Balcon
- Bureaux entièrement rénovés
- Les plateaux sont modulables
1er étage
| Surface | 3 651 m² |
| Durée | 9 Ans |
|
Loyer
|
210,00 € HT-HC/m²/an |
| Type de bien | Bureau |
| État | Construction achevée |
| Disponible | Maintenant |
Le programme SOCONA propose des bureaux entièrement rénovés, offrant une surface totale de 17 524 m², divisibles à partir de 2 484 m². Chaque plateau est modulable, permettant une personnalisation selon les besoins des entreprises. Les bureaux bénéficient de grandes façades vitrées, assurant une luminosité optimale. Le bâtiment est équipé de la climatisation, avec des ascenseurs desservant tous les niveaux. Des espaces verts, des terrasses et un jardin intérieur créent un cadre de travail agréable et apaisant.
- Frais d’agence : 15,00 % du loyer annuel
-
Charges locatives : 35,00 € /m²/an 2,92 € /m²/mois 127 785 € /an 10 649 € /mois
- Dépôt de garantie : 3 mois de loyer
- Entièrement aménagé comme Bureau standard
- Principalement open space
- Convient pour 99 à 305 personnes
- Bureaux cloisonnés
- Peut être associé à un ou plusieurs espaces supplémentaires pour obtenir jusqu’à 17 523 m² d’espace adjacent.
- Climatisation centrale
- Accès aux ascenseurs
- Balcon
- Bureaux entièrement rénovés
- Les plateaux sont modulables
2e étage
| Surface | 3 781 m² |
| Durée | 9 Ans |
|
Loyer
|
210,00 € HT-HC/m²/an |
| Type de bien | Bureau |
| État | Construction achevée |
| Disponible | Maintenant |
Le programme SOCONA propose des bureaux entièrement rénovés, offrant une surface totale de 17 524 m², divisibles à partir de 2 484 m². Chaque plateau est modulable, permettant une personnalisation selon les besoins des entreprises. Les bureaux bénéficient de grandes façades vitrées, assurant une luminosité optimale. Le bâtiment est équipé de la climatisation, avec des ascenseurs desservant tous les niveaux. Des espaces verts, des terrasses et un jardin intérieur créent un cadre de travail agréable et apaisant.
- Frais d’agence : 15,00 % du loyer annuel
-
Charges locatives : 35,00 € /m²/an 2,92 € /m²/mois 132 335 € /an 11 028 € /mois
- Dépôt de garantie : 3 mois de loyer
- Entièrement aménagé comme Bureau standard
- Principalement open space
- Convient pour 103 à 316 personnes
- Bureaux cloisonnés
- Peut être associé à un ou plusieurs espaces supplémentaires pour obtenir jusqu’à 17 523 m² d’espace adjacent.
- Climatisation centrale
- Accès aux ascenseurs
- Balcon
- Bureaux entièrement rénovés
- Les plateaux sont modulables
3e étage
| Surface | 3 791 m² |
| Durée | 9 Ans |
|
Loyer
|
210,00 € HT-HC/m²/an |
| Type de bien | Bureau |
| État | Construction achevée |
| Disponible | Maintenant |
Le programme SOCONA propose des bureaux entièrement rénovés, offrant une surface totale de 17 524 m², divisibles à partir de 2 484 m². Chaque plateau est modulable, permettant une personnalisation selon les besoins des entreprises. Les bureaux bénéficient de grandes façades vitrées, assurant une luminosité optimale. Le bâtiment est équipé de la climatisation, avec des ascenseurs desservant tous les niveaux. Des espaces verts, des terrasses et un jardin intérieur créent un cadre de travail agréable et apaisant.
- Frais d’agence : 15,00 % du loyer annuel
-
Charges locatives : 35,00 € /m²/an 2,92 € /m²/mois 132 685 € /an 11 057 € /mois
- Dépôt de garantie : 3 mois de loyer
- Entièrement aménagé comme Bureau standard
- Principalement open space
- Convient pour 103 à 316 personnes
- Bureaux cloisonnés
- Peut être associé à un ou plusieurs espaces supplémentaires pour obtenir jusqu’à 17 523 m² d’espace adjacent.
- Climatisation centrale
- Accès aux ascenseurs
- Balcon
- Bureaux entièrement rénovés
- Les plateaux sont modulables
4e étage
| Surface | 2 484 m² |
| Durée | 9 Ans |
|
Loyer
|
210,00 € HT-HC/m²/an |
| Type de bien | Bureau |
| État | Construction achevée |
| Disponible | Maintenant |
Le programme SOCONA propose des bureaux entièrement rénovés, offrant une surface totale de 17 524 m², divisibles à partir de 2 484 m². Chaque plateau est modulable, permettant une personnalisation selon les besoins des entreprises. Les bureaux bénéficient de grandes façades vitrées, assurant une luminosité optimale. Le bâtiment est équipé de la climatisation, avec des ascenseurs desservant tous les niveaux. Des espaces verts, des terrasses et un jardin intérieur créent un cadre de travail agréable et apaisant.
- Frais d’agence : 15,00 % du loyer annuel
-
Charges locatives : 35,00 € /m²/an 2,92 € /m²/mois 86 940 € /an 7 245 € /mois
- Dépôt de garantie : 3 mois de loyer
- Entièrement aménagé comme Bureau standard
- Principalement open space
- Convient pour 68 à 207 personnes
- Bureaux cloisonnés
- Peut être associé à un ou plusieurs espaces supplémentaires pour obtenir jusqu’à 17 523 m² d’espace adjacent.
- Climatisation centrale
- Accès aux ascenseurs
- Balcon
- Bureaux entièrement rénovés
- Les plateaux sont modulables
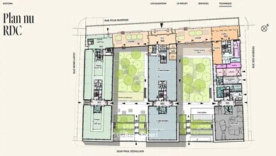
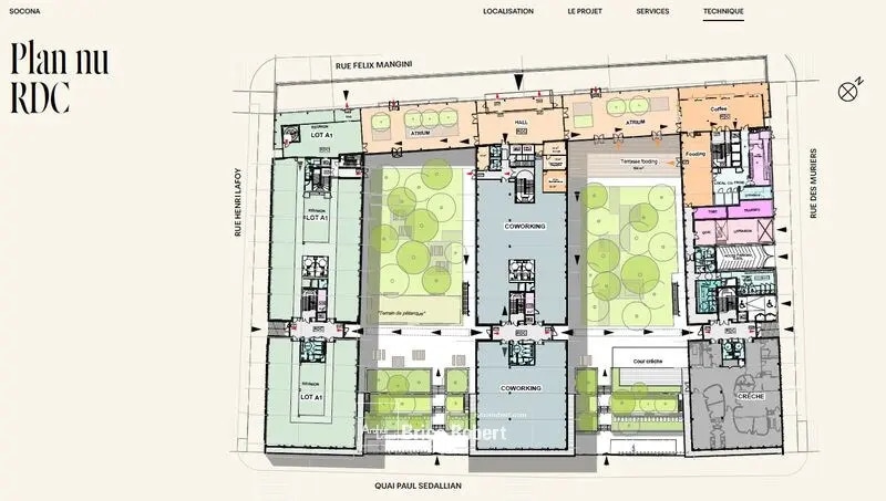
Aperçu du bien
L'immeuble SOCONA se compose de trois bâtiments indépendants, organisés autour de vastes patios et d'un jardin intérieur, favorisant une ambiance campus. Il est situé à proximité du hub de transport de Vaise, offrant un accès facile aux transports en commun et aux principaux axes routiers. Le bâtiment bénéficie d'une certification THPE, garantissant une consommation énergétique maîtrisée. Des services tels que des restaurants, une salle de sport et un pôle services sont disponibles sur site. Le ratio de parking est de 1 place pour 68 m², avec des places en sous-sol disponibles.
- Concierge
- Garderie
- Restaurant
- Accès direct à l’ascenseur
- Douches
- Plafond suspendu
- Climatisation
- Balcon
Informations sur l’immeuble
Présenté par
"69009 Lyon"
Hum, une erreur s’est produite lors de l’envoi de votre message. Veuillez réessayer.
Merci ! Votre message a été envoyé.










