Industriel/Logistique en Caumont-sur-Durance disponible à louer
2

Espaces industriels/logistiques à louer près de Caumont-sur-Durance

Découvrez les derniers espaces industriels/logistiques à louer à Caumont-sur-Durance

Plus de détails pour Industriel/Logistique à louer

84510 Caumont-sur-Durance

  • Industriel/logistique à louer
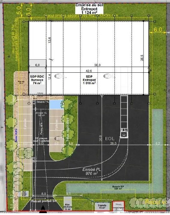
  • 62,31 € m²/an
  • 1 244 m²
  • 1 Espace | Disponible maintenant

Caumont-sur-Durance Industriel/Logistique à louer - Provence-Alpes-Cote-D'Azur Regional

À LOUER - BÂTIMENT INDÉPENDANT D'ACTIVITÉ / ENTREPÔT - 1 244 m² - ZA DES BALARUCS - VAUCLUSE BAUX LOCAUX vous propose à la location un bâtiment indépendant d'activité et d'entrepôt développant une surface totale de 1 244 m², situé au sein de la ZA des Balarucs, dans le département du Vaucluse. Le site bénéficie d'une excellente desserte routière, avec un accès à l'autoroute A7 situé à seulement 7 km, soit environ 8 minutes, permettant une connexion rapide aux grands axes logistiques régionaux. L'ensemble immobilier, en très bon état général, se compose de : o 1 180 m² d'activité / entrepôt en rez-de-chaussée o 64 m² de bureaux et locaux sociaux o Surface totale : 1 244 m² Le bâtiment dispose de prestations particulièrement adaptées aux activités logistiques, de stockage ou de distribution : 4 quais poids lourds équipés de ponts mécaniques, butoirs et amortisseurs, chacun desservi par une porte sectionnelle de 2,80 m x 3 m. Une dalle béton de 18 m de profondeur avec guide-roues facilite les manoeuvres devant les quais. La construction est de type ossature métallique, avec une hauteur libre variant de 5 à 7 mètres, une couverture en bac acier double peau isolante et un bardage double peau isolé. L'entrepôt est équipé d'un éclairage LED, du courant triphasé, de trappes de désenfumage et de RIA. Les bureaux et locaux sociaux offrent un bon niveau de confort avec climatisation réversible, faux plafonds, double vitrage, plinthes périphériques et salle serveurs. À l'extérieur, le site bénéficie d'une aire de retournement, de 10 emplacements VL et de 6 emplacements PL, permettant une exploitation fluide et fonctionnelle. Le bâtiment est également sécurisé par alarme. Disponibilité immédiate : Un actif rare sur le secteur, parfaitement adapté à une entreprise recherchant un bâtiment indépendant, fonctionnel et immédiatement opérationnel, avec une vraie capacité logistique. Contactez BAUX LOCAUX pour tout renseignement complémentaire ou pour organiser une visite. - Type de bail : Commercial - Durée : 3/6/9 ans - Préavis : 6 mois - Fiscalité : TVA - Indice : ILAT - Indexation : Annuelle - Dépôt de garantie : 3 mois HT/HC - Loyers et charges : Mensuels et d'avance - 4 quais: ponts mécaniques + butoirs / amortisseurs (hauteur 1.20) - 4 portes sectionnelles 2.80X3 - Dalle béton devant les quais (prof 18m / guide roux) - Système RIA avec dévidoir 30 m - Eclairage leds - Courant triphasé - Trappes de désenfumage - Bureaux climatisés

Contact:

Baux Locaux

Date de mise sur le marché :

10/03/2026

Cacher
Voir plus
Plus de détails pour Industriel/Logistique à louer

84510 Caumont-sur-Durance

  • Industriel/logistique à louer
  • 62,31 € m²/an
  • 1 244 m²
  • 1 Espace | Disponible maintenant
Voir plus

Espaces industriels/logistiques à louer à moins de 5 kilomètres de Caumont-sur-Durance

Plus de détails pour Local d'activités à louer

13440 Cabannes

  • Local d'activités à louer
  • 1 166 m²
  • 1 Espace | Disponible maintenant
Voir plus
Plus de détails pour Local d'activités à louer

13440 Cabannes

  • Local d'activités à louer
  • 2 364 m²
Voir plus
Plus de détails pour Local d'activités à louer

13440 Cabannes

  • Local d'activités à louer
  • 1 166 m²
  • 1 Espace | Disponible maintenant
Voir plus

Guide immobilier : Espace industriel/logistique à louer

Espaces industriels/logistiques à louer - Caumont-sur-Durance

Voir tout espaces industriels/logistiques à louer
Combien d'espaces industriels/logistiques sont actuellement à louer à Caumont-sur-Durance ?
Si vous êtes à la recherche d'espaces industriels/logistiques la location à Caumont-sur-Durance, vous pouvez choisir parmi 2 espaces industriels/logistiques disponibles sur LoopNet.
Quel est le prix moyen des espaces industriels/logistiques à louer à Caumont-sur-Durance ?
  • Le prix moyen des espaces industriels/logistiques à Caumont-sur-Durance est de 54 €/m2/an.
  • Les espaces industriels/logistiques les moins chers sont proposés à 54 €/m2/an.
  • Les espaces industriels/logistiques le plus chers atteignent 54 €/m2/an.
  • Espaces industriels/logistiques à louer à Caumont-sur-Durance

    Vous recherchez des Espaces industriels/logistiques. Vous êtes au bon endroit.

    Découvrez 2 annonces disponibles sur LoopNet, la première marketplace mondiale dédiée à l’immobilier d'entreprise. Que vous soyez à la recherche de bureaux flexibles, d’un local commercial bien situé, d’un entrepôt ou d’un local d'activités, LoopNet vous met en relation avec les meilleurs professionnels de l'immobiliers de Caumont-sur-Durance.

    Chaque annonce contient des informations détaillées : surface, usage autorisé, loyer, conditions de bail... Vous pouvez consulter des photos haute résolution, des plans détaillés, et découvrir les équipements disponibles – tout ce qu’il vous faut pour prendre une décision éclairée.

    Avec l’inventaire le plus complet du marché, LoopNet vous aide à trouver l’espace idéal pour vos besoins professionnels – que vous développiez votre activité, déménagiez ou lanciez un nouveau projet.

    Tendance du marché : le loyer moyen pour des Espaces industriels/logistiques à Caumont-sur-Durance est de 54 €/m2/a.

    Commencez votre recherche avec LoopNet – la Marketplace d’immobilier d’entreprise n° 1 au monde.