Votre e-mail a été envoyé.
Informations principales
- Immeuble HQE et Breeam
- Proche Part-Dieu et métro
- Rooftop et services premium
Tous les espaces disponibles(3)
Afficher les loyers en
- Espace
- Surface
- Durée
-
Loyer
- Type de bien
- Aménagement
- Disponible
Cet espace situé au premier étage de l’immeuble PARHELION offre un aménagement qualitatif prêt à l’emploi, avec des bureaux cloisonnés et câblés. Les finitions sont soignées, incluant moquette, faux plafond et éclairage LED encastré. Les utilisateurs bénéficient d’un confort optimal grâce à la climatisation, aux sanitaires en parties communes et aux vestiaires avec douches. Un local à vélos est également disponible pour faciliter les déplacements urbains.
- Entièrement aménagé comme Bureau standard
- Bureaux cloisonnés
- Espace en excellent état
- Climatisation centrale
- Connectivité Wi-Fi
- Système de sécurité
- Plafonds suspendus
- Local à vélos
- Toilettes dans les parties communes
- Bureaux cloisonnés prêts à l’emploi
- Accès direct ascenseur
- Plan d’étage avec bureaux fermés
- Plafonds finis: 2 mètres
- Plug & Play
- Aire de réception
- Accès aux ascenseurs
- Plancher surélevé
- Lumière naturelle
- Douches
- Accessible fauteuils roulants
- Parking privatif disponible
Cet espace situé en entresol dans l’immeuble PARHELION bénéficie d’un aménagement qualitatif prêt à l’emploi, avec des bureaux cloisonnés et câblés. Les finitions sont soignées, incluant moquette, faux plafond et éclairage LED encastré. L’espace est conçu pour offrir confort et fonctionnalité, avec accès direct à l’ascenseur, climatisation et sanitaires en parties communes. Les utilisateurs disposent également de vestiaires avec douches et d’un local à vélos, idéal pour les déplacements urbains.
- Entièrement aménagé comme Bureau standard
- Bureaux cloisonnés
- Espace en excellent état
- Connectivité Wi-Fi
- Système de sécurité
- Plafonds suspendus
- Local à vélos
- Toilettes dans les parties communes
- Bureaux cloisonnés prêts à l’emploi
- Accès direct ascenseur
- Plan d’étage avec bureaux fermés
- Plafonds finis: 2 mètres
- Aire de réception
- Accès aux ascenseurs
- Plancher surélevé
- Lumière naturelle
- Douches
- Accessible fauteuils roulants
- Parking privatif disponible
Cet espace situé au quatrième étage de l’immeuble PARHELION bénéficie d’un aménagement qualitatif prêt à l’emploi, avec des bureaux cloisonnés et câblés. Les finitions sont élégantes, incluant moquette, faux plafond et éclairage LED encastré. Les occupants disposent de sanitaires en parties communes, de vestiaires avec douches et d’un local à vélos. L’espace est conçu pour offrir confort et fonctionnalité dans un environnement premium.
- Entièrement aménagé comme Bureau standard
- Bureaux cloisonnés
- Espace en excellent état
- Climatisation centrale
- Connectivité Wi-Fi
- Système de sécurité
- Plafonds suspendus
- Local à vélos
- Toilettes dans les parties communes
- Bureaux cloisonnés prêts à l’emploi
- Accès direct ascenseur
- Plan d’étage avec bureaux fermés
- Plafonds finis: 2 mètres
- Plug & Play
- Aire de réception
- Accès aux ascenseurs
- Plancher surélevé
- Lumière naturelle
- Douches
- Accessible fauteuils roulants
- Parking privatif disponible
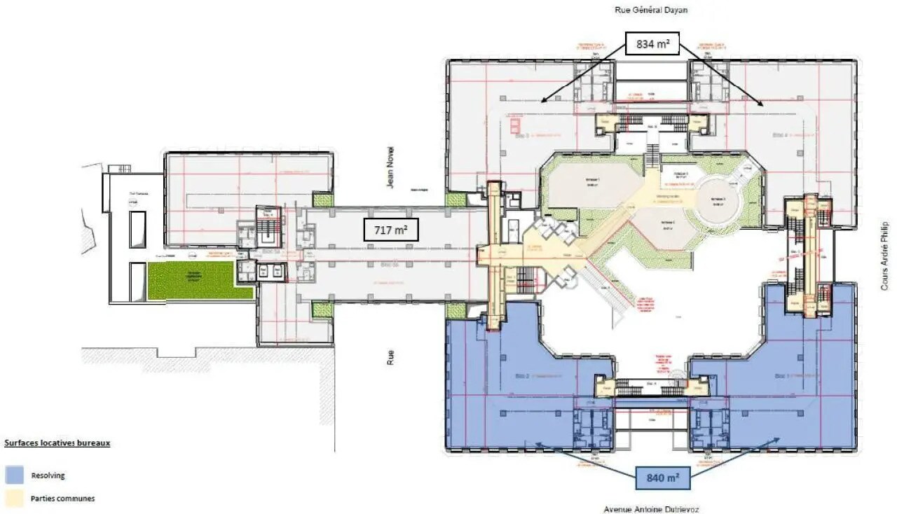
| Espace | Surface | Durée | Loyer | Type de bien | Aménagement | Disponible |
| 1er étage, bureau R+1 - Parhélion | 840 m² | 3/6/9 | 205,00 € HT-HC/m²/an 17,08 € HT-HC/m²/mois 172 200 € HT-HC/an 14 350 € HT-HC/mois | Bureau | Construction achevée | Maintenant |
| Mezzanine | 260 m² | 3/6/9 | 205,00 € HT-HC/m²/an 17,08 € HT-HC/m²/mois 53 300 € HT-HC/an 4 442 € HT-HC/mois | Bureau | Construction achevée | Maintenant |
| 4e étage, bureau R+4 - Parhélion | 453 m² | 3/6/9 | 205,00 € HT-HC/m²/an 17,08 € HT-HC/m²/mois 92 865 € HT-HC/an 7 739 € HT-HC/mois | Bureau | Construction achevée | Maintenant |
1er étage, bureau R+1 - Parhélion
| Surface |
| 840 m² |
| Durée |
| 3/6/9 |
|
Loyer
|
| 205,00 € HT-HC/m²/an 17,08 € HT-HC/m²/mois 172 200 € HT-HC/an 14 350 € HT-HC/mois |
| Type de bien |
| Bureau |
| Aménagement |
| Construction achevée |
| Disponible |
| Maintenant |
Mezzanine
| Surface |
| 260 m² |
| Durée |
| 3/6/9 |
|
Loyer
|
| 205,00 € HT-HC/m²/an 17,08 € HT-HC/m²/mois 53 300 € HT-HC/an 4 442 € HT-HC/mois |
| Type de bien |
| Bureau |
| Aménagement |
| Construction achevée |
| Disponible |
| Maintenant |
4e étage, bureau R+4 - Parhélion
| Surface |
| 453 m² |
| Durée |
| 3/6/9 |
|
Loyer
|
| 205,00 € HT-HC/m²/an 17,08 € HT-HC/m²/mois 92 865 € HT-HC/an 7 739 € HT-HC/mois |
| Type de bien |
| Bureau |
| Aménagement |
| Construction achevée |
| Disponible |
| Maintenant |
1er étage, bureau R+1 - Parhélion
| Surface | 840 m² |
| Durée | 3/6/9 |
|
Loyer
|
205,00 € HT-HC/m²/an |
| Type de bien | Bureau |
| Aménagement | Construction achevée |
| Disponible | Maintenant |
Cet espace situé au premier étage de l’immeuble PARHELION offre un aménagement qualitatif prêt à l’emploi, avec des bureaux cloisonnés et câblés. Les finitions sont soignées, incluant moquette, faux plafond et éclairage LED encastré. Les utilisateurs bénéficient d’un confort optimal grâce à la climatisation, aux sanitaires en parties communes et aux vestiaires avec douches. Un local à vélos est également disponible pour faciliter les déplacements urbains.
- Entièrement aménagé comme Bureau standard
- Plan d’étage avec bureaux fermés
- Bureaux cloisonnés
- Plafonds finis: 2 mètres
- Espace en excellent état
- Plug & Play
- Climatisation centrale
- Aire de réception
- Connectivité Wi-Fi
- Accès aux ascenseurs
- Système de sécurité
- Plancher surélevé
- Plafonds suspendus
- Lumière naturelle
- Local à vélos
- Douches
- Toilettes dans les parties communes
- Accessible fauteuils roulants
- Bureaux cloisonnés prêts à l’emploi
- Parking privatif disponible
- Accès direct ascenseur
Mezzanine
| Surface | 260 m² |
| Durée | 3/6/9 |
|
Loyer
|
205,00 € HT-HC/m²/an |
| Type de bien | Bureau |
| Aménagement | Construction achevée |
| Disponible | Maintenant |
Cet espace situé en entresol dans l’immeuble PARHELION bénéficie d’un aménagement qualitatif prêt à l’emploi, avec des bureaux cloisonnés et câblés. Les finitions sont soignées, incluant moquette, faux plafond et éclairage LED encastré. L’espace est conçu pour offrir confort et fonctionnalité, avec accès direct à l’ascenseur, climatisation et sanitaires en parties communes. Les utilisateurs disposent également de vestiaires avec douches et d’un local à vélos, idéal pour les déplacements urbains.
- Entièrement aménagé comme Bureau standard
- Plan d’étage avec bureaux fermés
- Bureaux cloisonnés
- Plafonds finis: 2 mètres
- Espace en excellent état
- Aire de réception
- Connectivité Wi-Fi
- Accès aux ascenseurs
- Système de sécurité
- Plancher surélevé
- Plafonds suspendus
- Lumière naturelle
- Local à vélos
- Douches
- Toilettes dans les parties communes
- Accessible fauteuils roulants
- Bureaux cloisonnés prêts à l’emploi
- Parking privatif disponible
- Accès direct ascenseur
4e étage, bureau R+4 - Parhélion
| Surface | 453 m² |
| Durée | 3/6/9 |
|
Loyer
|
205,00 € HT-HC/m²/an |
| Type de bien | Bureau |
| Aménagement | Construction achevée |
| Disponible | Maintenant |
Cet espace situé au quatrième étage de l’immeuble PARHELION bénéficie d’un aménagement qualitatif prêt à l’emploi, avec des bureaux cloisonnés et câblés. Les finitions sont élégantes, incluant moquette, faux plafond et éclairage LED encastré. Les occupants disposent de sanitaires en parties communes, de vestiaires avec douches et d’un local à vélos. L’espace est conçu pour offrir confort et fonctionnalité dans un environnement premium.
- Entièrement aménagé comme Bureau standard
- Plan d’étage avec bureaux fermés
- Bureaux cloisonnés
- Plafonds finis: 2 mètres
- Espace en excellent état
- Plug & Play
- Climatisation centrale
- Aire de réception
- Connectivité Wi-Fi
- Accès aux ascenseurs
- Système de sécurité
- Plancher surélevé
- Plafonds suspendus
- Lumière naturelle
- Local à vélos
- Douches
- Toilettes dans les parties communes
- Accessible fauteuils roulants
- Bureaux cloisonnés prêts à l’emploi
- Parking privatif disponible
- Accès direct ascenseur
Aperçu du bien
PARHELION est un immeuble restructuré de dernière génération, signé par l’architecte Claude Parent. Il propose des prestations haut de gamme : atrium majestueux avec espace de coworking, rooftop de 360 m², kiosque de restauration, conciergerie, salle de sport et espace événementiel. L’immeuble est certifié HQE Très Bon et Breeam Very Good. Il bénéficie d’une excellente desserte : métro lignes A et B (station Charpennes), tram T1 et T4, bus C2, C16, C17, 27, 37 et 70, ainsi que la gare Part-Dieu à deux stations. Le quartier offre une large gamme de commerces, restaurants et services à proximité immédiate.
- Concierge
- Centre de fitness
- Réception
- Local à vélos
- Accès direct à l’ascenseur
- Lumière naturelle
- Terrasse sur le toit
- Climatisation
Informations sur l’immeuble
Présenté par
"69100 Villeurbanne"
Hum, une erreur s’est produite lors de l’envoi de votre message. Veuillez réessayer.
Merci ! Votre message a été envoyé.









