Votre e-mail a été envoyé.
35000 Rennes | 1 100 000 € par lot | À vendre



Description
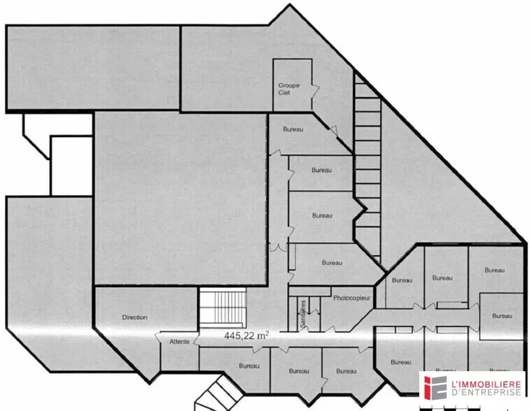
L'immobilière d'entreprise vous propose à la vente ce bien situé à Cesson-Sévigné, d'une surface de 2 170 m². Implanté en coeur de la Z.I Sud-Est, cet ensemble immobilier bénéficie d'un environnement tertiaire et d'activités particulièrement dynamique, au sein d'un secteur reconnu de la métropole rennaise. Édifié sur une parcelle foncière de 4 125 m², le bâtiment développe : - 577 m² de surface de plancher en sous-sol, - 1 148 m² en rez-de-chaussée (surfaces utiles brutes : 930 m²) - 445 m² au R+1 (surfaces utiles brutes : 395 m²)l'immeuble est en très bon état, offre des espaces fonctionnels et bien répartis; et propose des bureaux cloisonnés et lumineux ainsi que des espaces de circulation confortables, adaptés à une activité tertiaire, un centre de formation, un siège d'entreprise ou toute structure nécessitant des capacités de stockage complémentaires en sous-sol. Le site dispose de 37 places de stationnement, et un accès direct à un arrêt de bus au niveau de l'entrée du site, facilitant l'accès des collaborateurs et visiteurs. - Localisation : Z.I Sud-Est, CESSON-SÉVIGNÉ - Surface : 2 170 m² - Disponibilité : Immédiate DPE En cours
Informations sur l’immeuble
| Prix | 1 100 000 € | Surface totale de l’immeuble | 2 170 m² |
| Surface du lot | 445 - 1 148 m² | Type de bien | Bureau |
| Nb de lots | 3 |
| Prix | 1 100 000 € |
| Surface du lot | 445 - 1 148 m² |
| Nb de lots | 3 |
| Surface totale de l’immeuble | 2 170 m² |
| Type de bien | Bureau |
3 Lots disponibles
| Surface du lot | 445 m² | Type de vente | Propriétaire occupant |
| Usage du lot en coprop. | Bureau | Frais d’agence | 5,00 % du prix de vente |
| Surface du lot | 445 m² |
| Usage du lot en coprop. | Bureau |
| Type de vente | Propriétaire occupant |
| Frais d’agence | 5,00 % du prix de vente |
| Surface du lot | 1 148 m² | Type de vente | Propriétaire occupant |
| Usage du lot en coprop. | Bureau | Frais d’agence | 5,00 % du prix de vente |
| Surface du lot | 1 148 m² |
| Usage du lot en coprop. | Bureau |
| Type de vente | Propriétaire occupant |
| Frais d’agence | 5,00 % du prix de vente |
| Surface du lot | 577 m² | Type de vente | Propriétaire occupant |
| Usage du lot en coprop. | Industriel/Logistique | Frais d’agence | 5,00 % du prix de vente |
| Surface du lot | 577 m² |
| Usage du lot en coprop. | Industriel/Logistique |
| Type de vente | Propriétaire occupant |
| Frais d’agence | 5,00 % du prix de vente |
Présenté par
"35000 Rennes"
Hum, une erreur s’est produite lors de l’envoi de votre message. Veuillez réessayer.
Merci ! Votre message a été envoyé.
