Connectez-vous/S’inscrire
Votre e-mail a été envoyé.
67118 Geispolsheim Local d'activités À vendre 1 250 000 € (1 335,47 €/m²)

Notes sur la vente
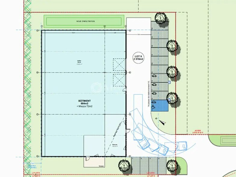
Advenis Conseil et Transaction Strasbourg vous propose à la vente un projet en VEFA (Vente en l'État Futur d'Achèvement) d'un bâtiment indépendant à usage d'activité d'environ 936 m², implanté au sein du nouveau Parc du Wiesel à Geispolsheim.
Le bâtiment se compose d'un hall de 756 m² équipé de 2 portes sectionnelles électriques, de 108 m² de bureaux et locaux sociaux, ainsi que d'une mezzanine de 72 m². Le bien est livré brut, avec fluides en attente, et dispose de 14 places de stationnement VL. Le tout est implanté sur un terrain d'environ 20 ares.
Situé au sud de Strasbourg, le Parc du Wiesel est un ensemble immobilier regroupant des bâtiments à usage d'activité, de stockage, de showroom et de bureaux, répartis sur une parcelle de 42 485 m². Le site bénéficie d'un emplacement stratégique, à proximité immédiate des axes autoroutiers desservant Strasbourg, Brumath, Saverne, Entzheim, Duppigheim, Molsheim, Obernai, Barr et Sélestat.
- NOUVEAU PARC DU WIESEL
- Structure métallique
- Bardage double peau
- Toiture bac acier isolée
- Sol béton
- Porte sectionnelle x2
- Portes piétonnes
- Terrasse privative
- Livraison brut, fluides en attentes
- 14 places de stationnement VL dont 1 PMR
Le bâtiment se compose d'un hall de 756 m² équipé de 2 portes sectionnelles électriques, de 108 m² de bureaux et locaux sociaux, ainsi que d'une mezzanine de 72 m². Le bien est livré brut, avec fluides en attente, et dispose de 14 places de stationnement VL. Le tout est implanté sur un terrain d'environ 20 ares.
Situé au sud de Strasbourg, le Parc du Wiesel est un ensemble immobilier regroupant des bâtiments à usage d'activité, de stockage, de showroom et de bureaux, répartis sur une parcelle de 42 485 m². Le site bénéficie d'un emplacement stratégique, à proximité immédiate des axes autoroutiers desservant Strasbourg, Brumath, Saverne, Entzheim, Duppigheim, Molsheim, Obernai, Barr et Sélestat.
- NOUVEAU PARC DU WIESEL
- Structure métallique
- Bardage double peau
- Toiture bac acier isolée
- Sol béton
- Porte sectionnelle x2
- Portes piétonnes
- Terrasse privative
- Livraison brut, fluides en attentes
- 14 places de stationnement VL dont 1 PMR
Informations sur l’immeuble
| Prix | 1 250 000 € | Type de bien | Local d'activités |
| Prix par m² | 1 335,47 € | Surface utile brute | 936 m² |
| Type de vente | Propriétaire occupant |
| Prix | 1 250 000 € |
| Prix par m² | 1 335,47 € |
| Type de vente | Propriétaire occupant |
| Type de bien | Local d'activités |
| Surface utile brute | 936 m² |
1 1
1 sur 2
Vidéos
Visite extérieure 3D Matterport
Visite 3D
Photos
Street view
Rue
Carte
1 sur 1
Présenté par
"67118 Geispolsheim"
Vous êtes déjà membre ? Connectez-vous
Hum, une erreur s’est produite lors de l’envoi de votre message. Veuillez réessayer.
Merci ! Votre message a été envoyé.
