Connectez-vous/S’inscrire
Votre e-mail a été envoyé.
35410 Domloup Local d'activités À vendre 562 000 € (1 000,00 €/m²)


Notes sur la vente
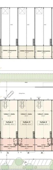
Au sein de la ZA du Gifard à DOMLOUP, ARTHUR LOYD RENNES vous propose au sein d'un parc d'activité en cours de réhabilitation 3 cellules d'activité à la VENTE d'environ 562 m² chacune disposant de :
- 451 m² dont 343 m² d'atelier avec 1 porte sectionnelle motorisée
- 108 m² de bureaux
- 111 m² en mezzanine situés au dessus des bureauxLivraison brut de béton, fluide en attente.
Cellules parfaitement adaptées aux besoins des artisans, PME, activités de stockage ou projets mixtes bureaux/atelier, ces dernières peuvent être fusionnées selon vos besoins.
3 places de parking par cellule viennent compléter l'ensemble.
- Accès à quai
- Accès gros porteur
- Accès plain-pied
- Baie de Brassage
- Câblage RJ45
- Couverture bac acier
- Façade bardage double peau
- Fibre optique
- Porte sectionnelle motorisée : 1
- Terrain bitumé
- Terrain clos
- 451 m² dont 343 m² d'atelier avec 1 porte sectionnelle motorisée
- 108 m² de bureaux
- 111 m² en mezzanine situés au dessus des bureauxLivraison brut de béton, fluide en attente.
Cellules parfaitement adaptées aux besoins des artisans, PME, activités de stockage ou projets mixtes bureaux/atelier, ces dernières peuvent être fusionnées selon vos besoins.
3 places de parking par cellule viennent compléter l'ensemble.
- Accès à quai
- Accès gros porteur
- Accès plain-pied
- Baie de Brassage
- Câblage RJ45
- Couverture bac acier
- Façade bardage double peau
- Fibre optique
- Porte sectionnelle motorisée : 1
- Terrain bitumé
- Terrain clos
Informations sur l’immeuble
| Prix | 562 000 € | Type de bien | Local d'activités |
| Prix par m² | 1 000,00 € | Surface utile brute | 562 m² |
| Type de vente | Propriétaire occupant |
| Prix | 562 000 € |
| Prix par m² | 1 000,00 € |
| Type de vente | Propriétaire occupant |
| Type de bien | Local d'activités |
| Surface utile brute | 562 m² |
1 1
1 sur 3
Vidéos
Visite extérieure 3D Matterport
Visite 3D
Photos
Street view
Rue
Carte
1 sur 1
Présenté par
"35410 Domloup"
Vous êtes déjà membre ? Connectez-vous
Hum, une erreur s’est produite lors de l’envoi de votre message. Veuillez réessayer.
Merci ! Votre message a été envoyé.
