Votre e-mail a été envoyé.
91220 Brétigny-sur-Orge Industriel/Logistique | 10 404 m² | À louer


Informations principales
- Parc logistique gardienné avec accès sécurisé
- Conception moderne avec éclairage LED basse consommation
- Localisation stratégique à proximité des grands axes et de Paris
Caractéristiques
Tous les espace disponibles(1)
Afficher les loyers en
- Espace
- Surface
- Durée
-
Loyer
- Type de bien
- Aménagement
- Disponible
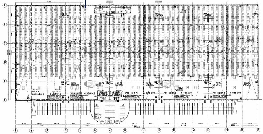
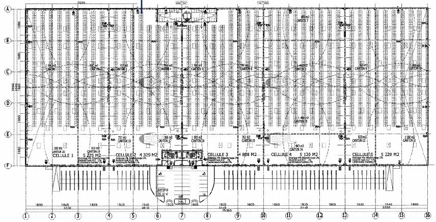
Chaque cellule logistique est conçue pour répondre aux standards les plus exigeants du secteur. L’entrepôt, classé A et entièrement équipé de racks, offre une hauteur sous toiture allant jusqu’à 12,10 m, garantissant une capacité de stockage optimale. Les dix accès à quai, complétés par un accès de plain-pied, facilitent les opérations de chargement et déchargement, tandis que la voierie lourde et les équipements tels que sprinklers et R.I.A. assurent un haut niveau de sécurité. Les locaux sociaux, vestiaires et espaces de repos viennent compléter l’ensemble pour un confort opérationnel.
- Frais d’agence : 11,00 % du loyer annuel
- Dépôt de garantie : 3 mois de loyer
- Ventilation et chauffage centraux
- Entreposage sécurisé
- Détecteur de fumée
- Hauteur sous toiture jusqu’à 12,10 m
- 1 accès plain-pied pour une logistique fluide
- Sécurité: voierie lourde et locaux sociaux
-
Charges locatives : 5,20 € /m²/an 0,43 € /m²/mois 54 101 € /an 4 508 € /mois
-
Taxe foncière : 11,44 € /m²/an 0,95 € /m²/mois 119 021 € /an 9 918 € /mois
- Système de sécurité
- Toilettes incluses dans le bail
- Entrepôt classe A intégralement racké
- 10 quais de chargement
- Sécurité renforcée : sprinklers, R.I.A
| Espace | Surface | Durée | Loyer | Type de bien | Aménagement | Disponible |
| RDC | 10 404 m² | 3/6/9 | 63,00 € HT-HC/m²/an 5,25 € HT-HC/m²/mois 655 453 € HT-HC/an 54 621 € HT-HC/mois | Industriel/Logistique | Construction achevée | Maintenant |
RDC
| Surface |
| 10 404 m² |
| Durée |
| 3/6/9 |
|
Loyer
|
| 63,00 € HT-HC/m²/an 5,25 € HT-HC/m²/mois 655 453 € HT-HC/an 54 621 € HT-HC/mois |
| Type de bien |
| Industriel/Logistique |
| Aménagement |
| Construction achevée |
| Disponible |
| Maintenant |
RDC
| Surface | 10 404 m² |
| Durée | 3/6/9 |
|
Loyer
|
63,00 € HT-HC/m²/an |
| Type de bien | Industriel/Logistique |
| Aménagement | Construction achevée |
| Disponible | Maintenant |
Chaque cellule logistique est conçue pour répondre aux standards les plus exigeants du secteur. L’entrepôt, classé A et entièrement équipé de racks, offre une hauteur sous toiture allant jusqu’à 12,10 m, garantissant une capacité de stockage optimale. Les dix accès à quai, complétés par un accès de plain-pied, facilitent les opérations de chargement et déchargement, tandis que la voierie lourde et les équipements tels que sprinklers et R.I.A. assurent un haut niveau de sécurité. Les locaux sociaux, vestiaires et espaces de repos viennent compléter l’ensemble pour un confort opérationnel.
- Frais d’agence : 11,00 % du loyer annuel
-
Charges locatives : 5,20 € /m²/an 0,43 € /m²/mois 54 101 € /an 4 508 € /mois
- Dépôt de garantie : 3 mois de loyer
-
Taxe foncière : 11,44 € /m²/an 0,95 € /m²/mois 119 021 € /an 9 918 € /mois
- Ventilation et chauffage centraux
- Système de sécurité
- Entreposage sécurisé
- Toilettes incluses dans le bail
- Détecteur de fumée
- Entrepôt classe A intégralement racké
- Hauteur sous toiture jusqu’à 12,10 m
- 10 quais de chargement
- 1 accès plain-pied pour une logistique fluide
- Sécurité renforcée : sprinklers, R.I.A
- Sécurité: voierie lourde et locaux sociaux
Aperçu du bien
Implanté au sein d’un parc logistique gardienné, l’immeuble bénéficie d’une situation stratégique à proximité immédiate des grands axes routiers, offrant une connexion rapide vers Paris et les principaux pôles économiques de la région. La conception moderne du bâtiment, associée à des prestations de qualité comme l’éclairage LED basse consommation, reflète une approche durable et performante. La présence d’un service de sécurité sur site renforce la fiabilité et la tranquillité des opérations.
Faits sur l’installation distribution
Présenté par
"91220 Brétigny-sur-Orge"
Hum, une erreur s’est produite lors de l’envoi de votre message. Veuillez réessayer.
Merci ! Votre message a été envoyé.
