Votre e-mail a été envoyé.
19 Rue Béranger Bureau | 110 m² | À louer | 75003 Paris



Informations principales
- Accès transports immédiats
- Proximité commerces et services
- Quartier animé
Tous les espace disponibles(1)
Afficher les loyers en
- Espace
- Surface
- Durée
-
Loyer
- Type de bien
- Aménagement
- Disponible
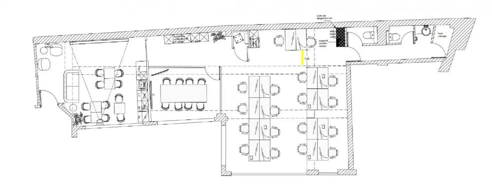
Ces bureaux disponibles immédiatement proposent un environnement de travail fonctionnel pensé pour les entreprises recherchant flexibilité et simplicité. L’espace se présente sous la forme d’un plateau prêt à l'emploi, comprenant des postes installés, une salle de réunion, une cuisine équipée ainsi qu’une zone détente favorisant les échanges informels. Les utilisateurs bénéficient d’une connexion très haut débit grâce à la fibre optique et d’un accès au matériel d’impression. Le lieu est entretenu régulièrement et offre une solution opérationnelle dès l’arrivée, idéale pour une équipe souhaitant s’installer sans travaux ni aménagement à prévoir. L’ensemble des services est déjà intégré dans la formule, permettant une gestion sereine du quotidien et un environnement de travail immédiatement fonctionnel.
- Frais d’agence : 10,00 % du loyer annuel
- Entièrement aménagé comme Bureau standard
- Convient pour 1 à 18 personnes
- Espace en excellent état
- Ventilation et chauffage centraux
- Salle d’impression/photocopie
- Lumière naturelle
- Open space
- Planchers en bois
- Espace prêt à l’emploi
- Accès sécurisé
- Dépôt de garantie : 3 mois de loyer
- Disposition open space
- 18 postes de travail
- Plug & Play
- Connectivité Wi-Fi
- Système de sécurité
- Toilettes incluses dans le bail
- Goulottes de câbles
- Accessible fauteuils roulants
- Services intégrés
| Espace | Surface | Durée | Loyer | Type de bien | Aménagement | Disponible |
| 1er étage, bureau Bureaux | 110 m² | 12-36 Mois | 1 233 € HT-HC/m²/an 102,73 € HT-HC/m²/mois 135 600 € HT-HC/an 11 300 € HT-HC/mois | Bureau | Construction achevée | Maintenant |
1er étage, bureau Bureaux
| Surface |
| 110 m² |
| Durée |
| 12-36 Mois |
|
Loyer
|
| 1 233 € HT-HC/m²/an 102,73 € HT-HC/m²/mois 135 600 € HT-HC/an 11 300 € HT-HC/mois |
| Type de bien |
| Bureau |
| Aménagement |
| Construction achevée |
| Disponible |
| Maintenant |
1er étage, bureau Bureaux
| Surface | 110 m² |
| Durée | 12-36 Mois |
|
Loyer
|
1 233 € HT-HC/m²/an |
| Type de bien | Bureau |
| Aménagement | Construction achevée |
| Disponible | Maintenant |
Ces bureaux disponibles immédiatement proposent un environnement de travail fonctionnel pensé pour les entreprises recherchant flexibilité et simplicité. L’espace se présente sous la forme d’un plateau prêt à l'emploi, comprenant des postes installés, une salle de réunion, une cuisine équipée ainsi qu’une zone détente favorisant les échanges informels. Les utilisateurs bénéficient d’une connexion très haut débit grâce à la fibre optique et d’un accès au matériel d’impression. Le lieu est entretenu régulièrement et offre une solution opérationnelle dès l’arrivée, idéale pour une équipe souhaitant s’installer sans travaux ni aménagement à prévoir. L’ensemble des services est déjà intégré dans la formule, permettant une gestion sereine du quotidien et un environnement de travail immédiatement fonctionnel.
- Frais d’agence : 10,00 % du loyer annuel
- Dépôt de garantie : 3 mois de loyer
- Entièrement aménagé comme Bureau standard
- Disposition open space
- Convient pour 1 à 18 personnes
- 18 postes de travail
- Espace en excellent état
- Plug & Play
- Ventilation et chauffage centraux
- Connectivité Wi-Fi
- Salle d’impression/photocopie
- Système de sécurité
- Lumière naturelle
- Toilettes incluses dans le bail
- Open space
- Goulottes de câbles
- Planchers en bois
- Accessible fauteuils roulants
- Espace prêt à l’emploi
- Services intégrés
- Accès sécurisé
À propos du bien
Situé au cœur du 3 arrondissement de Paris, l’immeuble bénéficie d’un emplacement particulièrement attractif dans un secteur dynamique et connecté. Il se trouve à proximité immédiate de plusieurs lignes de métro, notamment Temple et République, permettant un accès rapide vers l’ensemble de la capitale. Le quartier est vivant et riche en commodités, avec un large choix de commerces alimentaires, restaurants, services bancaires et établissements scolaires. Le bâtiment accueille des espaces professionnels clés en main et propose un cadre agréable, adapté à des structures recherchant à la fois confort et qualité de vie au travail. Les abords sont bien desservis et offrent une atmosphère conviviale, en phase avec les attentes des entreprises souhaitant s’implanter dans un secteur central et animé de Paris.
Informations sur l’immeuble
| Espace total disponible | 110 m² | Sous-type de bien | Appartement |
| Nb de lots | 48 | Surface de l’immeuble | 110 m² |
| Type de bien | Immeuble residentiel | Année de construction | 1880 |
| Espace total disponible | 110 m² |
| Nb de lots | 48 |
| Type de bien | Immeuble residentiel |
| Sous-type de bien | Appartement |
| Surface de l’immeuble | 110 m² |
| Année de construction | 1880 |
Présenté par
19 Rue Béranger
Hum, une erreur s’est produite lors de l’envoi de votre message. Veuillez réessayer.
Merci ! Votre message a été envoyé.



