Connectez-vous/S’inscrire
Votre e-mail a été envoyé.
31600 Muret Local commercial 748 m² À vendre 972 700 € (1 300,40 €/m²)



Résumé analytique
A VENDRE - MURET
Accès A64 à environ 2,5 km et D817 à environ 500m, proche commerces et restaurants, en pleine zone d'activité!
Descriptif :
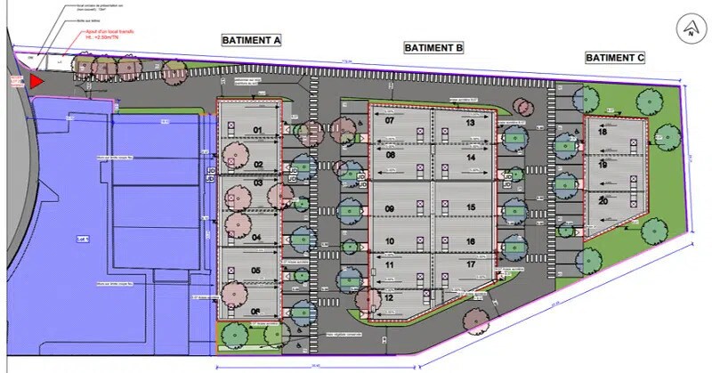
Local d'activité de 748m² environ constitué d'une partie stockage d'environ 385m² en RDC et d'une partie bureau en open space d'environ 363m² en R+1.
Partie stockage en RDC munie d'une porte Rolflex sectionnelle sans rails de refoulement
300 x 300 (RAL 9018) et d'une porte en aluminium (RAL 9018 + ferme porte)
Plancher Sol béton finition quartz avec charge d'exploitation de 2 tonnes/m².
Bureau en R+1 prêt à recevoir l'équipement CVC, isolé
Bardage double peau
Hauteur totale sous poutre : 6.50 m
Hauteur sous mezzanine en partie stockage : 4,00m
Hauteur sous plafond en partie bureau : 2,50 m
Escalier métallique en colimaçon
Compteur défalqueur d'eau potable (sauf si concessionnaire accepte d'individualiser)
Compteur électrique individuel
Eclairage publique installé en façade des ateliers (services généraux)
Ne sont pas prévus à la livraison : les sanitaires aménagés, la distribution courant fort et faible des postes de travail dans les bureaux, et l'équipement de Chauffage, Ventilation, Climatisation.
13 places de parking réservées
PLUSIEURS LOTS DISPONIBLES ET POSSIBILITE DE SCINDER LE BÂTIMENT EN PLUSIEURS LOTS !!! (nous consulter)
Prix de vente : 972 700 EUR net vendeur,
Charges: NC (entretien et consommation des parties communes)
Taxe foncière : NC
Honoraires d'agence 5% HT du prix net vendeur
Permis de construire purgé
Disponible sous 6 à 9 mois après réservation !!!
Projet à étudier absolument !
REF L-17374
Pour visiter contacter Cédric GONZALEZ au 05 61 61 77 77
VUDENHAUT IMMO - Agences TOULOUSE SUD & SUD-EST
www.vdh-immo
Etat /
Accès A64 à environ 2,5 km et D817 à environ 500m, proche commerces et restaurants, en pleine zone d'activité!
Descriptif :
Local d'activité de 748m² environ constitué d'une partie stockage d'environ 385m² en RDC et d'une partie bureau en open space d'environ 363m² en R+1.
Partie stockage en RDC munie d'une porte Rolflex sectionnelle sans rails de refoulement
300 x 300 (RAL 9018) et d'une porte en aluminium (RAL 9018 + ferme porte)
Plancher Sol béton finition quartz avec charge d'exploitation de 2 tonnes/m².
Bureau en R+1 prêt à recevoir l'équipement CVC, isolé
Bardage double peau
Hauteur totale sous poutre : 6.50 m
Hauteur sous mezzanine en partie stockage : 4,00m
Hauteur sous plafond en partie bureau : 2,50 m
Escalier métallique en colimaçon
Compteur défalqueur d'eau potable (sauf si concessionnaire accepte d'individualiser)
Compteur électrique individuel
Eclairage publique installé en façade des ateliers (services généraux)
Ne sont pas prévus à la livraison : les sanitaires aménagés, la distribution courant fort et faible des postes de travail dans les bureaux, et l'équipement de Chauffage, Ventilation, Climatisation.
13 places de parking réservées
PLUSIEURS LOTS DISPONIBLES ET POSSIBILITE DE SCINDER LE BÂTIMENT EN PLUSIEURS LOTS !!! (nous consulter)
Prix de vente : 972 700 EUR net vendeur,
Charges: NC (entretien et consommation des parties communes)
Taxe foncière : NC
Honoraires d'agence 5% HT du prix net vendeur
Permis de construire purgé
Disponible sous 6 à 9 mois après réservation !!!
Projet à étudier absolument !
REF L-17374
Pour visiter contacter Cédric GONZALEZ au 05 61 61 77 77
VUDENHAUT IMMO - Agences TOULOUSE SUD & SUD-EST
www.vdh-immo
Etat /
Informations sur l’immeuble
Type de vente
Propriétaire occupant
Type de bien
Local commercial
Surface de l’immeuble
< 1 000 m²
Prix
972 700 €
Prix par m²
1 300,40 €
Occupation
Multi
1 1
1 sur 7
Vidéos
Visite extérieure 3D Matterport
Visite 3D
Photos
Street view
Rue
Carte
1 sur 1
Présenté par
"31600 Muret"
Vous êtes déjà membre ? Connectez-vous
Hum, une erreur s’est produite lors de l’envoi de votre message. Veuillez réessayer.
Merci ! Votre message a été envoyé.
