Connectez-vous/S’inscrire
Votre e-mail a été envoyé.
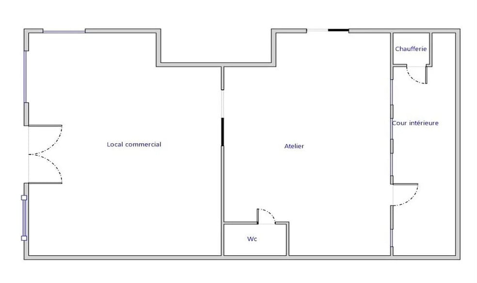
12100 Millau Local commercial À vendre 219 000 € (960,53 €/m²)



NOTES SUR LA VENTE
Un projet de commerce ? De cabinet ?
Ce local commercial de 228m2 situé avenue Charles de Gaulle saura vous séduire par sa superficie et son emplacement,
Situé dans une résidence de 1990, il se compose d'un magasin de 130m2 avec vitrine de 10m linéaire, d'un atelier de 98m2 avec wc et d'une grande cours privative de 52m2,
A personnaliser et rénover entièrement selon projet,
Plus d'informations sur demande. Prix ouvert à discussion.
- Annonce rédigée et publiée par un Agent Mandataire -
Ce local commercial de 228m2 situé avenue Charles de Gaulle saura vous séduire par sa superficie et son emplacement,
Situé dans une résidence de 1990, il se compose d'un magasin de 130m2 avec vitrine de 10m linéaire, d'un atelier de 98m2 avec wc et d'une grande cours privative de 52m2,
A personnaliser et rénover entièrement selon projet,
Plus d'informations sur demande. Prix ouvert à discussion.
- Annonce rédigée et publiée par un Agent Mandataire -
INFORMATIONS SUR L’IMMEUBLE
Type de vente
Propriétaire occupant
Type de bien
Local commercial
Surface de l’immeuble
228 m²
Prix
219 000 €
Prix par m²
960,53 €
1 1
1 sur 5
VIDÉOS
VISITE EXTÉRIEURE 3D MATTERPORT
VISITE 3D
PHOTOS
STREET VIEW
RUE
CARTE
1 sur 1
Présenté par
"12100 Millau"
Vous êtes déjà membre ? Connectez-vous
Hum, une erreur s’est produite lors de l’envoi de votre message. Veuillez réessayer.
Merci ! Votre message a été envoyé.
