Votre e-mail a été envoyé.
Informations principales sur l'investissement
- Emplacement mairie Levallois
- Quartier dynamique
- Immeuble indépendant
Résumé analytique
L’immeuble est indépendant et implanté en plein cœur de Levallois-Perret, dans un environnement urbain attractif et bien pourvu en commerces, services, établissements scolaires et équipements de proximité. Les accès sont facilités par une offre de transports particulièrement dense, assurant une excellente connexion avec Paris et les communes limitrophes. Le quartier se distingue par son activité tertiaire établie et une forte demande pour les surfaces professionnelles.
1 Lot disponible
Lot undefined
| Surface du lot | 197 m² | Type de vente | Propriétaire occupant |
| Usage du lot en coprop. | Bureau |
| Surface du lot | 197 m² |
| Usage du lot en coprop. | Bureau |
| Type de vente | Propriétaire occupant |
Description
Bureaux à vendre - Mairie de Levallois
En plein coeur de Levallois, idéalement situé au pied de la Mairie, cet actif bénéficie d’un bel emplacement, au sein d'un quartier dynamique, commerçant et parfaitement desservi par les transports (métro, bus, gare SNCF).
L'espace est modulable, peut être décloisonné et offrir de beaux volumes. Un bien rare sur le marché, combinant localisation stratégique et conditions attractives.
Disponibilité : Immédiate
Notes sur la vente
Excellente opportunité pour un propriétaire occupant.
Espace lumineux et moderne avec un design contemporain.
Découvrez un aménagement spacieux et moderne pour votre espace de travail.
Bureau moderne avec espace de travail lumineux et accueillant.
Découvrez un espace de vie moderne et bien agencé.
Plan d'étage spacieux et fonctionnel pour un cadre de travail agréable.
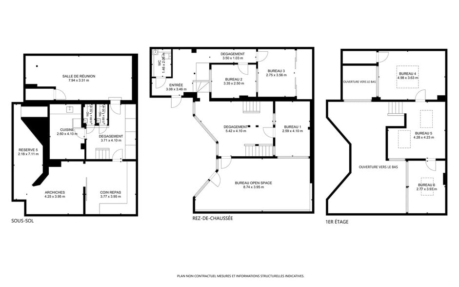
Plan détaillé de cet espace fonctionnel et moderne.
Informations sur l’immeuble
| Surface totale de l’immeuble | 1 000 - 5 000 m² | Classe d’immeuble | B |
| Type de bien | Immeuble residentiel (Lot en copropriété) | Étages | 7 |
| Sous-type de bien | Appartement | Année de construction | 1900 - 1909 |
| Surface totale de l’immeuble | 1 000 - 5 000 m² |
| Type de bien | Immeuble residentiel (Lot en copropriété) |
| Sous-type de bien | Appartement |
| Classe d’immeuble | B |
| Étages | 7 |
| Année de construction | 1900 - 1909 |
Caractéristiques
Caractéristiques du site
- Cour
- Entrée avec clé électronique
Présenté par
"92300 Levallois-Perret"
Hum, une erreur s’est produite lors de l’envoi de votre message. Veuillez réessayer.
Merci ! Votre message a été envoyé.



