Connectez-vous/S’inscrire
Votre e-mail a été envoyé.
83490 Le Muy Local commercial À vendre 1 497 000 € (2 895,55 €/m²)



Notes sur la vente
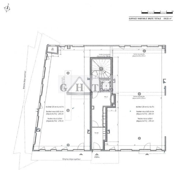
Au total 4 locaux + 2 réserves de 20m2 environ chacune + 2 caves de 13,68m2 chacune
Local 1 : 128,09m2 + 1 cave + 3 places de parking = 270.000€ HT soit 324.000€ TTC
Local 2 : 144,74m2 + 1 réserve + 4 places de parking = 320.000€ HT soit 384.000€ TTC
Local 3 : 146,84m2 + 1 réserve + 5 places de parking = 325.000€ HT soit 390.000€ TTC
Local 4 : 98,32m2 + 1 cave + 3 places de parking = 220.000€ HT soit 264.000€ TTC
Total : 517,99m2 + 2 réserves + 2 caves + 15 places de parking = 1.247.500€ HT soit 1.497.000€ TTC
Livraison fin 2026nGHT IMMO - 01 48 93 81 23 - Plus d'informations sur www.ghtimmo.fr (réf. 940050244)
Local 1 : 128,09m2 + 1 cave + 3 places de parking = 270.000€ HT soit 324.000€ TTC
Local 2 : 144,74m2 + 1 réserve + 4 places de parking = 320.000€ HT soit 384.000€ TTC
Local 3 : 146,84m2 + 1 réserve + 5 places de parking = 325.000€ HT soit 390.000€ TTC
Local 4 : 98,32m2 + 1 cave + 3 places de parking = 220.000€ HT soit 264.000€ TTC
Total : 517,99m2 + 2 réserves + 2 caves + 15 places de parking = 1.247.500€ HT soit 1.497.000€ TTC
Livraison fin 2026nGHT IMMO - 01 48 93 81 23 - Plus d'informations sur www.ghtimmo.fr (réf. 940050244)
Informations sur l’immeuble
Type de vente
Propriétaire occupant
Type de bien
Local commercial
Surface de l’immeuble
517 m²
Prix
1 497 000 €
Prix par m²
2 895,55 €
1 1
1 sur 7
Vidéos
Visite extérieure 3D Matterport
Visite 3D
Photos
Street view
Rue
Carte
1 sur 1
Présenté par
"83490 Le Muy"
Vous êtes déjà membre ? Connectez-vous
Hum, une erreur s’est produite lors de l’envoi de votre message. Veuillez réessayer.
Merci ! Votre message a été envoyé.
