Votre e-mail a été envoyé.
44350 Guérande Local commercial | | 368 000 € par lot | À vendre



Description
A VENDRE CELLULE COMMERCIALE située à Guérande au coeur d'un nouvel ensemble immobilier mixte logements/commerces. Le programme "KAER LODGE" est une résidence de 37 logements et 50 logements supplémentaires seront construits + 56 stationnements.5 Cette cellule commerciale d''une surface totale d'environ 235 m² est livrée brut de béton, fluides en attente et vitrine posée. Possibilité de diviser la cellule en deux lots distincts 2 places de parking peuvent être attribuées à ce lot : 8 000 Euros HT / Parking Places de stationnements publics en façade USAGE : tous commerces. Local idéal pour accueillir une boulangerie, un restaurant, une supérette, épicerie fine mais aussi parfaitement adapté pour du services, des professions libérales, etc... INFOS: des gaines d'extraction sont prévue en toiture Disponible immédiatement. PRIX DE VENTE : 368 000 Euros HT. Votre futur professionnel se dessine avec nous. Organisez une visite dès maintenant et découvrez cette opportunité pour votre entreprise. Clémence LEPINE - LOIRE OCEAN EXPANSION - www.loireocean-expansion.fr - 02.40.20.63.11
2 Lots disponibles
- Lot
- Surface du lot
- Usage du lot en coprop.
- Prix
- RNE
| Type de vente | Propriétaire occupant | Frais d’agence | 8,00 % du prix de vente |
| Type de vente | Propriétaire occupant |
| Frais d’agence | 8,00 % du prix de vente |
| Type de vente | Propriétaire occupant | Frais d’agence | 8,00 % du prix de vente |
| Type de vente | Propriétaire occupant |
| Frais d’agence | 8,00 % du prix de vente |
| Lot | Surface du lot | Usage du lot en coprop. | Prix | RNE |
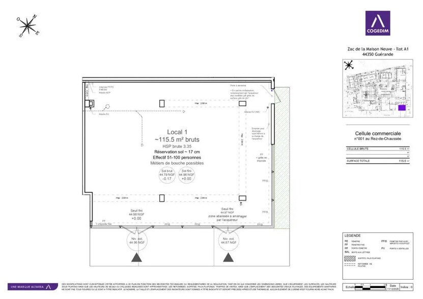
| Lot CELLULE 1 | 115 m² | Local commercial | 187 000 € (1 627,20 €/m²) | - |
| Lot CELLULE 2 | 120 m² | Local commercial | 181 000 € (1 509,12 €/m²) | - |
Lot CELLULE 1
| Surface du lot |
| 115 m² |
| Usage du lot en coprop. |
| Local commercial |
| Prix |
| 187 000 € (1 627,20 €/m²) |
| RNE |
| - |
Lot CELLULE 2
| Surface du lot |
| 120 m² |
| Usage du lot en coprop. |
| Local commercial |
| Prix |
| 181 000 € (1 509,12 €/m²) |
| RNE |
| - |
Lot CELLULE 1
| Surface du lot | 115 m² |
| Usage du lot en coprop. | Local commercial |
| Prix | 187 000 € (1 627,20 €/m²) |
| RNE | - |
| Type de vente | Propriétaire occupant |
| Frais d’agence | 8,00 % du prix de vente |
Lot CELLULE 2
| Surface du lot | 120 m² |
| Usage du lot en coprop. | Local commercial |
| Prix | 181 000 € (1 509,12 €/m²) |
| RNE | - |
| Type de vente | Propriétaire occupant |
| Frais d’agence | 8,00 % du prix de vente |
Informations sur l’immeuble
| Prix | 368 000 € | Surface totale de l’immeuble | 235 m² |
| Surface du lot | 115 - 120 m² | Type de bien | Local commercial |
| Nb de lots | 2 |
| Prix | 368 000 € |
| Surface du lot | 115 - 120 m² |
| Nb de lots | 2 |
| Surface totale de l’immeuble | 235 m² |
| Type de bien | Local commercial |
Présenté par
"44350 Guérande"
Hum, une erreur s’est produite lors de l’envoi de votre message. Veuillez réessayer.
Merci ! Votre message a été envoyé.
Renseignez ces informations pour appeler le broker
