Connectez-vous/S’inscrire
Votre e-mail a été envoyé.
13440 Cabannes Local d'activités À vendre 2 000 000 € (1 715,27 €/m²)


Notes sur la vente
EOL vous propose un projet clés en mains à la location ou à l'acquisition sur la commune de Cabannes (13).
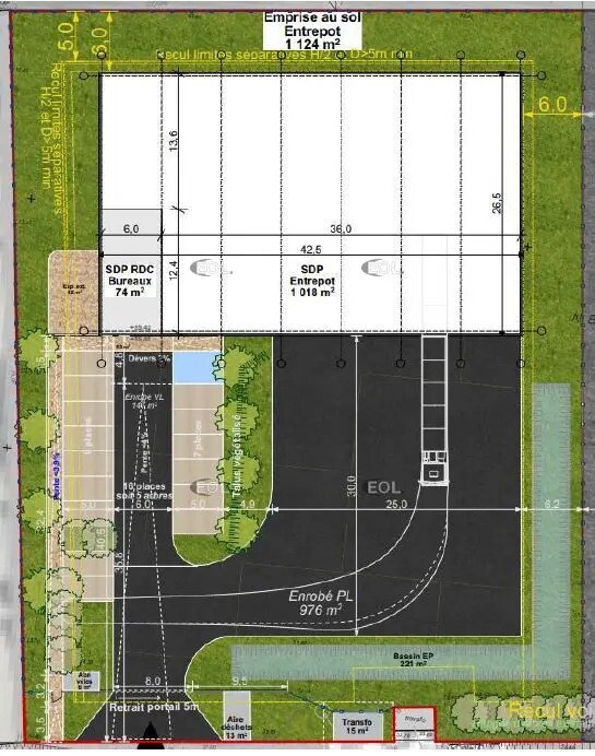
Nous vous proposons un terrain de 4 129 m² sur lequel nous avons la possibilité de construire un bâtiment d'environ 1 166 m² de SDP avec des accès de plain pied ou quais .
Exemple de construction :
1 166 m² dont 148 m² de bureaux
35 places de parking
Logistique et messagerie autorisée
Toiture exploitable à 100 % en panneaux photovoltaïques
Hauteur : 8 m
Voierie lourde
Informatique :
Fibre optique raccordée, Plinthes périphériques
Technique :
Faux plafonds, Double vitrage, Accès PMR
Nous vous proposons un terrain de 4 129 m² sur lequel nous avons la possibilité de construire un bâtiment d'environ 1 166 m² de SDP avec des accès de plain pied ou quais .
Exemple de construction :
1 166 m² dont 148 m² de bureaux
35 places de parking
Logistique et messagerie autorisée
Toiture exploitable à 100 % en panneaux photovoltaïques
Hauteur : 8 m
Voierie lourde
Informatique :
Fibre optique raccordée, Plinthes périphériques
Technique :
Faux plafonds, Double vitrage, Accès PMR
Informations sur l’immeuble
| Prix | 2 000 000 € | Type de bien | Local d'activités |
| Prix par m² | 1 715,27 € | Surface utile brute | 1 166 m² |
| Type de vente | Propriétaire occupant |
| Prix | 2 000 000 € |
| Prix par m² | 1 715,27 € |
| Type de vente | Propriétaire occupant |
| Type de bien | Local d'activités |
| Surface utile brute | 1 166 m² |
1 1
1 sur 3
Vidéos
Visite extérieure 3D Matterport
Visite 3D
Photos
Street view
Rue
Carte
1 sur 1
Présenté par
"13440 Cabannes"
Vous êtes déjà membre ? Connectez-vous
Hum, une erreur s’est produite lors de l’envoi de votre message. Veuillez réessayer.
Merci ! Votre message a été envoyé.
