Votre e-mail a été envoyé.
 
                                                    
					40600 Biscarrosse Local d’activités | 76 m² | 240 000 € | À vendre



 
                                
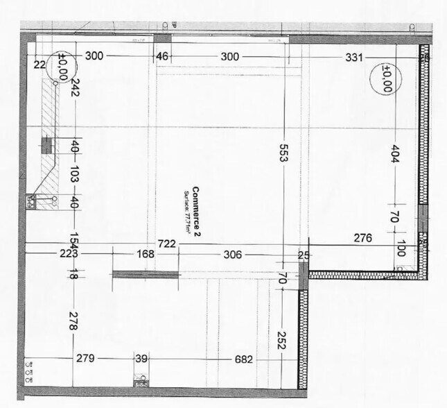
            DESCRIPTION
LOCAL COMMERCIAL À SAISIR À BISCARROSSE ! Démarrez votre succès ! Ce local de 76 m² offre un emplacement idéal et un potentiel énorme pour concrétiser tous vos projets. PRIX CHOC : 240 000 Euros TTC (TVA récupérable !) À PRÉVOIR : Des travaux de finition sont nécessaires pour aménager l'espace selon vos besoins et maximiser votre rendement. LES CHARGES: - Charges de copropriété extrêmement faibles : 565 Euros/an - Taxe foncière minime : 609 Euros/an FRAIS D'AGENCE ACQUÉREUR : 6,5% TTC du prix de vente. VENEZ VISITER ! Contactez-nous sans tarder pour découvrir l'opportunité de votre future activité !"
INFORMATIONS SUR L’IMMEUBLE
| Prix | 240 000 € | Type de bien | Local d'activités (Lot en copropriété) | 
| Surface du lot | 76 m² | Type de vente | Investissement | 
| Nb de lots | 1 | 
| Prix | 240 000 € | 
| Surface du lot | 76 m² | 
| Nb de lots | 1 | 
| Type de bien | Local d'activités (Lot en copropriété) | 
| Type de vente | Investissement | 
1 LOT DISPONIBLE
| Surface du lot | 76 m² | Type de vente | Investissement | 
| Prix | 240 000 € | Frais d’agence | 6,50 % du prix de vente | 
| Prix par m² | 3 158,12 € | Taxe foncière | 8,01 € /m²/an | 
| Usage du lot en coprop. | Local d’activités | 
| Surface du lot | 76 m² | 
| Prix | 240 000 € | 
| Prix par m² | 3 158,12 € | 
| Usage du lot en coprop. | Local d’activités | 
| Type de vente | Investissement | 
| Frais d’agence | 6,50 % du prix de vente | 
| Taxe foncière | 8,01 € /m²/an | 
Présenté par
 
"40600 Biscarrosse"
Hum, une erreur s’est produite lors de l’envoi de votre message. Veuillez réessayer.
Merci ! Votre message a été envoyé.
