Votre e-mail a été envoyé.
74370 Annecy Bureau | | 570 000 € | À vendre



Description
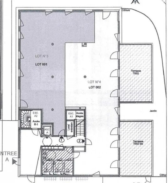
Disponible à l'acquisition, sur le secteur de Promery à Pringy (74370), un plateau de bureaux neufs en RDC ainsi que 5 places de stationnements en sous-sol (en sus du prix). Les locaux sont livrés finis, reste à prévoir le cloisonnement intérieur en fonction de votre concept et de vos besoins (nous proposons un accompagnement dans le chiffrage et de déploiement). Surface : 158m² privatif, 193 m² quotepart des parties communes incluses. Prix de vente : 570 000€ HT. Contact : nicolas.parroche@reseau-brokers.com - 06 32 74 60 62. RESEAU BROKERS® est le premier cabinet immobilier d'entreprise structuré en réseau de mandataires. Nous maillons avec notre équipe de 80 Brokers une grande partie du territoire national pour accompagner nos entreprises clientes dans leurs recherches de commerces, bureaux, locaux d'activités, immeubles et fonciers. www.reseau-brokers.com Honoraires à la charge du vendeur. DPE en cours. Les informations sur les risques auxquels ce bien est exposé sont disponibles sur le site Géorisques : georisques.gouv.fr. Votre conseiller AVINIM RESEAU BROKERS : Nicolas PARROCHE Agent commercial (Entreprise individuelle) RSAC 478800212 RCP 7953190/S17093745
Informations sur l’immeuble
| Prix | 570 000 € | Surface totale de l’immeuble | 193 m² |
| Surface du lot | 193 m² | Type de bien | Bureau (Lot en copropriété) |
| Nb de lots | 1 | Type de vente | Propriétaire occupant |
| Prix | 570 000 € |
| Surface du lot | 193 m² |
| Nb de lots | 1 |
| Surface totale de l’immeuble | 193 m² |
| Type de bien | Bureau (Lot en copropriété) |
| Type de vente | Propriétaire occupant |
1 Lot disponible
| Surface du lot | 193 m² | Usage du lot en coprop. | Bureau |
| Prix | 570 000 € | Type de vente | Propriétaire occupant |
| Prix par m² | 2 953,99 € |
| Surface du lot | 193 m² |
| Prix | 570 000 € |
| Prix par m² | 2 953,99 € |
| Usage du lot en coprop. | Bureau |
| Type de vente | Propriétaire occupant |
Présenté par
"74370 Annecy"
Hum, une erreur s’est produite lors de l’envoi de votre message. Veuillez réessayer.
Merci ! Votre message a été envoyé.
