Votre e-mail a été envoyé.
Certaines informations ont été traduites automatiquement.
Informations principales sur le parc
- Le Maryland Trade Center propose des bureaux et des espaces médicaux prêts à emménager d'une superficie d'environ 700 pieds carrés à des possibilités d'étage complet.
- Une connectivité de premier ordre avec un accès immédiat au périphérique de la capitale I-95/I-495, à la Baltimore Washington Parkway et à la Greenbelt Road/Route 193.
- Profitez des excellentes commodités du centre, telles qu'un centre de remise en forme, un Perfect Pita sur place, un grand parking, un hôtel pour séjours prolongés et des possibilités de signalisation.
- Profitez d'une vaste gamme de commodités à quelques minutes, notamment des hôtels, des restaurants et des magasins tels que Bally Total Fitness, Starbucks et CVS.
Faits sur le parc
| Espace total disponible | 12 514 m² | Type de parc | Parc de bureaux |
| Min. Divisible | 86 m² | Caractéristiques | Climatisation |
| Max. Contigu | 1 280 m² |
| Espace total disponible | 12 514 m² |
| Min. Divisible | 86 m² |
| Max. Contigu | 1 280 m² |
| Type de parc | Parc de bureaux |
| Caractéristiques | Climatisation |
Tous les espaces disponibles(29)
Afficher les loyers en
- Espace
- Surface
- Durée
- Loyer
- Type de bien
- Aménagement
- Disponible
- Entièrement aménagé comme Espace de santé
- Plan d’étage avec bureaux fermés
Photos: https://www.cambridgeus.com/wp-content/uploads/2024/02/MTCI-SUITE-220-4277-SF-1.zip
- Entièrement aménagé comme Bureau standard
- Convient pour 11 à 35 personnes
- Plan d’étage avec bureaux fermés
- Entièrement aménagé comme Bureau standard
- Convient pour 10 à 30 personnes
- Principalement open space
- Entièrement aménagé comme Bureau standard
- Convient pour 6 à 17 personnes
- Plan d’étage avec bureaux fermés
Photos: https://www.cambridgeus.com/wp-content/uploads/2024/02/MTCI-Suite-510-Photos.zip https://matterport.com/discover/space/VquZ6EvM4d1
- Entièrement aménagé comme Bureau standard
- Convient pour 11 à 35 personnes
- Plan d’étage avec bureaux fermés
- Entièrement aménagé comme Bureau standard
- Convient pour 9 à 28 personnes
- Principalement open space
- Entièrement aménagé comme Bureau standard
- Convient pour 6 à 19 personnes
- Principalement open space
- Entièrement aménagé comme Bureau standard
- Convient pour 30 à 95 personnes
- Entièrement aménagé comme Bureau standard
- Convient pour 12 à 38 personnes
- Plan d’étage avec bureaux fermés
- Entièrement aménagé comme Bureau standard
- Convient pour 9 à 28 personnes
- Plan d’étage avec bureaux fermés
- Entièrement aménagé comme Bureau standard
- Convient pour 3 à 8 personnes
- Plan d’étage avec bureaux fermés
- Convient pour 9 à 63 personnes
- Entièrement aménagé comme Bureau standard
- Convient pour 3 à 9 personnes
- Plan d’étage avec bureaux fermés
- Entièrement aménagé comme Bureau standard
- Convient pour 17 à 53 personnes
- Principalement open space
| Espace | Surface | Durée | Loyer | Type de bien | Aménagement | Disponible |
| Niveau inférieur, bureau 1 | 262 m² | Négociable | Sur demande Sur demande Sur demande Sur demande | Médical | Construction achevée | Maintenant |
| 2e étage, bureau 220 | 397 m² | Négociable | Sur demande Sur demande Sur demande Sur demande | Bureau | Construction achevée | Maintenant |
| 3e étage, bureau 301 | 347 m² | Négociable | Sur demande Sur demande Sur demande Sur demande | Bureaux/Médical | Construction achevée | Maintenant |
| 5e étage, bureau 500 | 194 m² | Négociable | Sur demande Sur demande Sur demande Sur demande | Bureau | Construction achevée | Maintenant |
| 5e étage, bureau 510 | 397 m² | Négociable | Sur demande Sur demande Sur demande Sur demande | Bureaux/Médical | Construction achevée | Maintenant |
| 6e étage, bureau 600 | 317 m² | Négociable | Sur demande Sur demande Sur demande Sur demande | Bureau | Construction achevée | Maintenant |
| 6e étage, bureau 630 | 213 m² | Négociable | Sur demande Sur demande Sur demande Sur demande | Bureau | Construction achevée | Maintenant |
| 7e étage | 1 094 m² | Négociable | Sur demande Sur demande Sur demande Sur demande | Bureau | Construction achevée | 30 jours |
| 8e étage, bureau 820 | 433 m² | Négociable | Sur demande Sur demande Sur demande Sur demande | Bureau | Construction achevée | Maintenant |
| 9e étage, bureau 900 | 318 m² | Négociable | Sur demande Sur demande Sur demande Sur demande | Bureau | Construction achevée | Maintenant |
| 9e étage, bureau 905 | 86 m² | Négociable | Sur demande Sur demande Sur demande Sur demande | Bureau | Construction achevée | Maintenant |
| 10e étage, bureau 1070 | 323 – 726 m² | Négociable | Sur demande Sur demande Sur demande Sur demande | Bureau | - | Maintenant |
| 11e étage, bureau 1125 | 101 m² | Négociable | Sur demande Sur demande Sur demande Sur demande | Bureaux/Médical | Construction achevée | Maintenant |
| 13e étage | 606 m² | Négociable | Sur demande Sur demande Sur demande Sur demande | Bureaux/Médical | Construction achevée | Maintenant |
7500 Greenway Center Dr - Niveau inférieur – Bureau 1
7500 Greenway Center Dr - 2e étage – Bureau 220
7500 Greenway Center Dr - 3e étage – Bureau 301
7500 Greenway Center Dr - 5e étage – Bureau 500
7500 Greenway Center Dr - 5e étage – Bureau 510
7500 Greenway Center Dr - 6e étage – Bureau 600
7500 Greenway Center Dr - 6e étage – Bureau 630
7500 Greenway Center Dr - 7e étage
7500 Greenway Center Dr - 8e étage – Bureau 820
7500 Greenway Center Dr - 9e étage – Bureau 900
7500 Greenway Center Dr - 9e étage – Bureau 905
7500 Greenway Center Dr - 10e étage – Bureau 1070
7500 Greenway Center Dr - 11e étage – Bureau 1125
7500 Greenway Center Dr - 13e étage
- Espace
- Surface
- Durée
- Loyer
- Type de bien
- Aménagement
- Disponible
- Entièrement aménagé comme Bureau standard
- Convient pour 7 à 21 personnes
- Plan d’étage avec bureaux fermés
Photos: https://www.cambridgeus.com/wp-content/uploads/2024/02/MTCII-SUITE-150-2875-SF-1.zip
- Entièrement aménagé comme Bureau standard
- Convient pour 8 à 23 personnes
- Principalement open space
- Entièrement aménagé comme Bureau standard
- Convient pour 16 à 52 personnes
- Plan d’étage avec bureaux fermés
5 windowed offices, 2 interior offices.
- Le loyer comprend les services publics, les services de l’immeuble et les frais immobiliers.
- Plan d’étage avec bureaux fermés
- Entièrement aménagé comme Bureau standard
- Convient pour 5 à 14 personnes
- Entièrement aménagé comme Bureau standard
- Convient pour 21 à 66 personnes
- Plan d’étage avec bureaux fermés
- Peut être associé à un ou plusieurs espaces supplémentaires pour obtenir jusqu’à 1 280 m² d’espace adjacent.
- Entièrement aménagé comme Bureau standard
- Convient pour 14 à 45 personnes
- Plan d’étage avec bureaux fermés
- Peut être associé à un ou plusieurs espaces supplémentaires pour obtenir jusqu’à 1 280 m² d’espace adjacent.
- Entièrement aménagé comme Bureau standard
- Convient pour 35 à 112 personnes
- Principalement open space
Photos: https://www.cambridgeus.com/wp-content/uploads/2024/02/MTC-II-SUITE-600-3412-SF.zip
- Entièrement aménagé comme Bureau standard
- Convient pour 11 à 33 personnes
- Plan d’étage avec bureaux fermés
- Entièrement aménagé comme Bureau standard
- Convient pour 4 à 13 personnes
- Plan d’étage avec bureaux fermés
https://my.matterport.com/show/?m=Ay5QWuXuXcL Photos: https://www.cambridgeus.com/wp-content/uploads/2024/02/MTCII-Suite-800-Photos.zip
- Entièrement aménagé comme Bureau standard
- Convient pour 25 à 80 personnes
- Plan d’étage avec bureaux fermés
- Peut être associé à un ou plusieurs espaces supplémentaires pour obtenir jusqu’à 1 122 m² d’espace adjacent.
Former server room for government contractor. Can be transformed into efficient office space for any general office user. Abundance of natural light, 3 windowed offices, reception area, and kitchenette.
- Le loyer comprend les services publics, les services de l’immeuble et les frais immobiliers.
- Principalement open space
- Peut être associé à un ou plusieurs espaces supplémentaires pour obtenir jusqu’à 1 122 m² d’espace adjacent.
- Entièrement aménagé comme Bureau de services professionnels
- Convient pour 6 à 17 personnes
- Entièrement aménagé comme Bureau standard
- Convient pour 12 à 36 personnes
- Principalement open space
- Peut être associé à un ou plusieurs espaces supplémentaires pour obtenir jusqu’à 1 111 m² d’espace adjacent.
https://www.cambridgeus.com/wp-content/uploads/2024/02/MTCII-SUITE-910-6152-SF.zip. https://my.matterport.com/show/?m=ikxr37Ubafw
- Entièrement aménagé comme Bureau standard
- Convient pour 16 à 50 personnes
- Peut être associé à un ou plusieurs espaces supplémentaires pour obtenir jusqu’à 1 111 m² d’espace adjacent.
- Open space
- Principalement open space
- 2 bureaux privés
- Hauts plafonds
- Entièrement aménagé comme Bureau standard
- Convient pour 4 à 12 personnes
- Disposition open space
- Peut être associé à un ou plusieurs espaces supplémentaires pour obtenir jusqu’à 1 111 m² d’espace adjacent.
- Entièrement aménagé comme Bureau standard
- Convient pour 12 à 38 personnes
- Plan d’étage avec bureaux fermés
| Espace | Surface | Durée | Loyer | Type de bien | Aménagement | Disponible |
| 1er étage, bureau 100 | 238 m² | Négociable | Sur demande Sur demande Sur demande Sur demande | Bureau | Construction achevée | Maintenant |
| 1er étage, bureau 150 | 267 m² | Négociable | Sur demande Sur demande Sur demande Sur demande | Bureau | Construction achevée | Maintenant |
| 2e étage, bureau 200 | 594 m² | Négociable | Sur demande Sur demande Sur demande Sur demande | Bureau | Construction achevée | 30 jours |
| 2e étage, bureau 203 | 157 m² | Négociable | Sur demande Sur demande Sur demande Sur demande | Bureaux/Médical | Construction achevée | Maintenant |
| 4e étage, bureau 401 | 761 m² | Négociable | Sur demande Sur demande Sur demande Sur demande | Bureau | Construction achevée | Maintenant |
| 4e étage, bureau 410 | 518 m² | Négociable | Sur demande Sur demande Sur demande Sur demande | Bureau | Construction achevée | Maintenant |
| 5e étage | 1 295 m² | Négociable | Sur demande Sur demande Sur demande Sur demande | Bureau | Construction achevée | Maintenant |
| 6e étage, bureau 600 | 380 m² | Négociable | Sur demande Sur demande Sur demande Sur demande | Bureau | Construction achevée | Maintenant |
| 7e étage, bureau 700B | 145 m² | Négociable | Sur demande Sur demande Sur demande Sur demande | Bureau | Construction achevée | Maintenant |
| 8e étage, bureau 800 | 925 m² | Négociable | Sur demande Sur demande Sur demande Sur demande | Bureau | Construction achevée | Maintenant |
| 8e étage, bureau 850 | 197 m² | Négociable | Sur demande Sur demande Sur demande Sur demande | Bureaux/Médical | Construction achevée | Maintenant |
| 9e étage, bureau 900 | 402 m² | Négociable | Sur demande Sur demande Sur demande Sur demande | Bureau | Construction achevée | 30 jours |
| 9e étage, bureau 910 | 572 m² | Négociable | Sur demande Sur demande Sur demande Sur demande | Bureau | Construction achevée | Maintenant |
| 9e étage, bureau 920 | 137 m² | Négociable | Sur demande Sur demande Sur demande Sur demande | Bureau | Construction achevée | Maintenant |
| 11e étage, bureau 1120 | 433 m² | Négociable | Sur demande Sur demande Sur demande Sur demande | Bureau | Construction achevée | Maintenant |
7474 Greenway Center Dr - 1er étage – Bureau 100
7474 Greenway Center Dr - 1er étage – Bureau 150
7474 Greenway Center Dr - 2e étage – Bureau 200
7474 Greenway Center Dr - 2e étage – Bureau 203
7474 Greenway Center Dr - 4e étage – Bureau 401
7474 Greenway Center Dr - 4e étage – Bureau 410
7474 Greenway Center Dr - 5e étage
7474 Greenway Center Dr - 6e étage – Bureau 600
7474 Greenway Center Dr - 7e étage – Bureau 700B
7474 Greenway Center Dr - 8e étage – Bureau 800
7474 Greenway Center Dr - 8e étage – Bureau 850
7474 Greenway Center Dr - 9e étage – Bureau 900
7474 Greenway Center Dr - 9e étage – Bureau 910
7474 Greenway Center Dr - 9e étage – Bureau 920
7474 Greenway Center Dr - 11e étage – Bureau 1120
7500 Greenway Center Dr - Niveau inférieur – Bureau 1
| Surface | 262 m² |
| Durée | Négociable |
| Loyer | Sur demande |
| Type de bien | Médical |
| Aménagement | Construction achevée |
| Disponible | Maintenant |
- Entièrement aménagé comme Espace de santé
- Plan d’étage avec bureaux fermés
7500 Greenway Center Dr - 2e étage – Bureau 220
| Surface | 397 m² |
| Durée | Négociable |
| Loyer | Sur demande |
| Type de bien | Bureau |
| Aménagement | Construction achevée |
| Disponible | Maintenant |
Photos: https://www.cambridgeus.com/wp-content/uploads/2024/02/MTCI-SUITE-220-4277-SF-1.zip
- Entièrement aménagé comme Bureau standard
- Plan d’étage avec bureaux fermés
- Convient pour 11 à 35 personnes
7500 Greenway Center Dr - 3e étage – Bureau 301
| Surface | 347 m² |
| Durée | Négociable |
| Loyer | Sur demande |
| Type de bien | Bureaux/Médical |
| Aménagement | Construction achevée |
| Disponible | Maintenant |
- Entièrement aménagé comme Bureau standard
- Principalement open space
- Convient pour 10 à 30 personnes
7500 Greenway Center Dr - 5e étage – Bureau 500
| Surface | 194 m² |
| Durée | Négociable |
| Loyer | Sur demande |
| Type de bien | Bureau |
| Aménagement | Construction achevée |
| Disponible | Maintenant |
- Entièrement aménagé comme Bureau standard
- Plan d’étage avec bureaux fermés
- Convient pour 6 à 17 personnes
7500 Greenway Center Dr - 5e étage – Bureau 510
| Surface | 397 m² |
| Durée | Négociable |
| Loyer | Sur demande |
| Type de bien | Bureaux/Médical |
| Aménagement | Construction achevée |
| Disponible | Maintenant |
Photos: https://www.cambridgeus.com/wp-content/uploads/2024/02/MTCI-Suite-510-Photos.zip https://matterport.com/discover/space/VquZ6EvM4d1
- Entièrement aménagé comme Bureau standard
- Plan d’étage avec bureaux fermés
- Convient pour 11 à 35 personnes
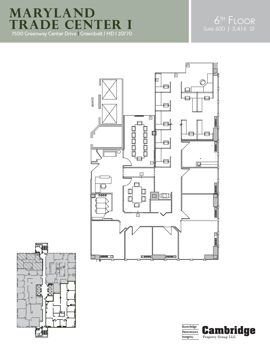
7500 Greenway Center Dr - 6e étage – Bureau 600
| Surface | 317 m² |
| Durée | Négociable |
| Loyer | Sur demande |
| Type de bien | Bureau |
| Aménagement | Construction achevée |
| Disponible | Maintenant |
- Entièrement aménagé comme Bureau standard
- Principalement open space
- Convient pour 9 à 28 personnes
7500 Greenway Center Dr - 6e étage – Bureau 630
| Surface | 213 m² |
| Durée | Négociable |
| Loyer | Sur demande |
| Type de bien | Bureau |
| Aménagement | Construction achevée |
| Disponible | Maintenant |
- Entièrement aménagé comme Bureau standard
- Principalement open space
- Convient pour 6 à 19 personnes
7500 Greenway Center Dr - 7e étage
| Surface | 1 094 m² |
| Durée | Négociable |
| Loyer | Sur demande |
| Type de bien | Bureau |
| Aménagement | Construction achevée |
| Disponible | 30 jours |
- Entièrement aménagé comme Bureau standard
- Convient pour 30 à 95 personnes
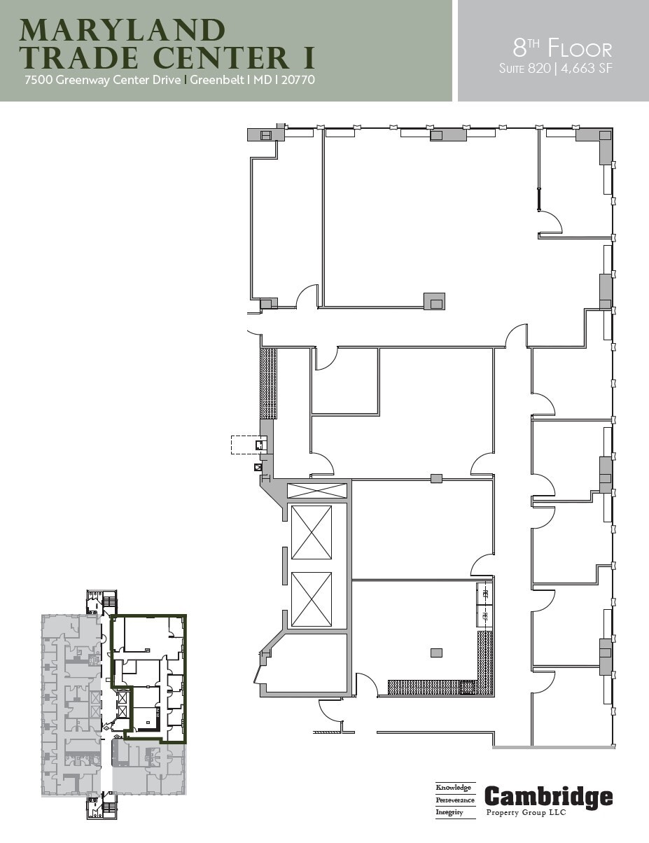
7500 Greenway Center Dr - 8e étage – Bureau 820
| Surface | 433 m² |
| Durée | Négociable |
| Loyer | Sur demande |
| Type de bien | Bureau |
| Aménagement | Construction achevée |
| Disponible | Maintenant |
- Entièrement aménagé comme Bureau standard
- Plan d’étage avec bureaux fermés
- Convient pour 12 à 38 personnes
7500 Greenway Center Dr - 9e étage – Bureau 900
| Surface | 318 m² |
| Durée | Négociable |
| Loyer | Sur demande |
| Type de bien | Bureau |
| Aménagement | Construction achevée |
| Disponible | Maintenant |
- Entièrement aménagé comme Bureau standard
- Plan d’étage avec bureaux fermés
- Convient pour 9 à 28 personnes
7500 Greenway Center Dr - 9e étage – Bureau 905
| Surface | 86 m² |
| Durée | Négociable |
| Loyer | Sur demande |
| Type de bien | Bureau |
| Aménagement | Construction achevée |
| Disponible | Maintenant |
- Entièrement aménagé comme Bureau standard
- Plan d’étage avec bureaux fermés
- Convient pour 3 à 8 personnes
7500 Greenway Center Dr - 10e étage – Bureau 1070
| Surface | 323 – 726 m² |
| Durée | Négociable |
| Loyer | Sur demande |
| Type de bien | Bureau |
| Aménagement | - |
| Disponible | Maintenant |
- Convient pour 9 à 63 personnes
7500 Greenway Center Dr - 11e étage – Bureau 1125
| Surface | 101 m² |
| Durée | Négociable |
| Loyer | Sur demande |
| Type de bien | Bureaux/Médical |
| Aménagement | Construction achevée |
| Disponible | Maintenant |
- Entièrement aménagé comme Bureau standard
- Plan d’étage avec bureaux fermés
- Convient pour 3 à 9 personnes
7500 Greenway Center Dr - 13e étage
| Surface | 606 m² |
| Durée | Négociable |
| Loyer | Sur demande |
| Type de bien | Bureaux/Médical |
| Aménagement | Construction achevée |
| Disponible | Maintenant |
- Entièrement aménagé comme Bureau standard
- Principalement open space
- Convient pour 17 à 53 personnes
7474 Greenway Center Dr - 1er étage – Bureau 100
| Surface | 238 m² |
| Durée | Négociable |
| Loyer | Sur demande |
| Type de bien | Bureau |
| Aménagement | Construction achevée |
| Disponible | Maintenant |
- Entièrement aménagé comme Bureau standard
- Plan d’étage avec bureaux fermés
- Convient pour 7 à 21 personnes
7474 Greenway Center Dr - 1er étage – Bureau 150
| Surface | 267 m² |
| Durée | Négociable |
| Loyer | Sur demande |
| Type de bien | Bureau |
| Aménagement | Construction achevée |
| Disponible | Maintenant |
Photos: https://www.cambridgeus.com/wp-content/uploads/2024/02/MTCII-SUITE-150-2875-SF-1.zip
- Entièrement aménagé comme Bureau standard
- Principalement open space
- Convient pour 8 à 23 personnes
7474 Greenway Center Dr - 2e étage – Bureau 200
| Surface | 594 m² |
| Durée | Négociable |
| Loyer | Sur demande |
| Type de bien | Bureau |
| Aménagement | Construction achevée |
| Disponible | 30 jours |
- Entièrement aménagé comme Bureau standard
- Plan d’étage avec bureaux fermés
- Convient pour 16 à 52 personnes
7474 Greenway Center Dr - 2e étage – Bureau 203
| Surface | 157 m² |
| Durée | Négociable |
| Loyer | Sur demande |
| Type de bien | Bureaux/Médical |
| Aménagement | Construction achevée |
| Disponible | Maintenant |
5 windowed offices, 2 interior offices.
- Le loyer comprend les services publics, les services de l’immeuble et les frais immobiliers.
- Entièrement aménagé comme Bureau standard
- Plan d’étage avec bureaux fermés
- Convient pour 5 à 14 personnes
7474 Greenway Center Dr - 4e étage – Bureau 401
| Surface | 761 m² |
| Durée | Négociable |
| Loyer | Sur demande |
| Type de bien | Bureau |
| Aménagement | Construction achevée |
| Disponible | Maintenant |
- Entièrement aménagé comme Bureau standard
- Plan d’étage avec bureaux fermés
- Convient pour 21 à 66 personnes
- Peut être associé à un ou plusieurs espaces supplémentaires pour obtenir jusqu’à 1 280 m² d’espace adjacent.
7474 Greenway Center Dr - 4e étage – Bureau 410
| Surface | 518 m² |
| Durée | Négociable |
| Loyer | Sur demande |
| Type de bien | Bureau |
| Aménagement | Construction achevée |
| Disponible | Maintenant |
- Entièrement aménagé comme Bureau standard
- Plan d’étage avec bureaux fermés
- Convient pour 14 à 45 personnes
- Peut être associé à un ou plusieurs espaces supplémentaires pour obtenir jusqu’à 1 280 m² d’espace adjacent.
7474 Greenway Center Dr - 5e étage
| Surface | 1 295 m² |
| Durée | Négociable |
| Loyer | Sur demande |
| Type de bien | Bureau |
| Aménagement | Construction achevée |
| Disponible | Maintenant |
- Entièrement aménagé comme Bureau standard
- Principalement open space
- Convient pour 35 à 112 personnes
7474 Greenway Center Dr - 6e étage – Bureau 600
| Surface | 380 m² |
| Durée | Négociable |
| Loyer | Sur demande |
| Type de bien | Bureau |
| Aménagement | Construction achevée |
| Disponible | Maintenant |
Photos: https://www.cambridgeus.com/wp-content/uploads/2024/02/MTC-II-SUITE-600-3412-SF.zip
- Entièrement aménagé comme Bureau standard
- Plan d’étage avec bureaux fermés
- Convient pour 11 à 33 personnes
7474 Greenway Center Dr - 7e étage – Bureau 700B
| Surface | 145 m² |
| Durée | Négociable |
| Loyer | Sur demande |
| Type de bien | Bureau |
| Aménagement | Construction achevée |
| Disponible | Maintenant |
- Entièrement aménagé comme Bureau standard
- Plan d’étage avec bureaux fermés
- Convient pour 4 à 13 personnes
7474 Greenway Center Dr - 8e étage – Bureau 800
| Surface | 925 m² |
| Durée | Négociable |
| Loyer | Sur demande |
| Type de bien | Bureau |
| Aménagement | Construction achevée |
| Disponible | Maintenant |
https://my.matterport.com/show/?m=Ay5QWuXuXcL Photos: https://www.cambridgeus.com/wp-content/uploads/2024/02/MTCII-Suite-800-Photos.zip
- Entièrement aménagé comme Bureau standard
- Plan d’étage avec bureaux fermés
- Convient pour 25 à 80 personnes
- Peut être associé à un ou plusieurs espaces supplémentaires pour obtenir jusqu’à 1 122 m² d’espace adjacent.
7474 Greenway Center Dr - 8e étage – Bureau 850
| Surface | 197 m² |
| Durée | Négociable |
| Loyer | Sur demande |
| Type de bien | Bureaux/Médical |
| Aménagement | Construction achevée |
| Disponible | Maintenant |
Former server room for government contractor. Can be transformed into efficient office space for any general office user. Abundance of natural light, 3 windowed offices, reception area, and kitchenette.
- Le loyer comprend les services publics, les services de l’immeuble et les frais immobiliers.
- Entièrement aménagé comme Bureau de services professionnels
- Principalement open space
- Convient pour 6 à 17 personnes
- Peut être associé à un ou plusieurs espaces supplémentaires pour obtenir jusqu’à 1 122 m² d’espace adjacent.
7474 Greenway Center Dr - 9e étage – Bureau 900
| Surface | 402 m² |
| Durée | Négociable |
| Loyer | Sur demande |
| Type de bien | Bureau |
| Aménagement | Construction achevée |
| Disponible | 30 jours |
- Entièrement aménagé comme Bureau standard
- Principalement open space
- Convient pour 12 à 36 personnes
- Peut être associé à un ou plusieurs espaces supplémentaires pour obtenir jusqu’à 1 111 m² d’espace adjacent.
7474 Greenway Center Dr - 9e étage – Bureau 910
| Surface | 572 m² |
| Durée | Négociable |
| Loyer | Sur demande |
| Type de bien | Bureau |
| Aménagement | Construction achevée |
| Disponible | Maintenant |
https://www.cambridgeus.com/wp-content/uploads/2024/02/MTCII-SUITE-910-6152-SF.zip. https://my.matterport.com/show/?m=ikxr37Ubafw
- Entièrement aménagé comme Bureau standard
- Principalement open space
- Convient pour 16 à 50 personnes
- 2 bureaux privés
- Peut être associé à un ou plusieurs espaces supplémentaires pour obtenir jusqu’à 1 111 m² d’espace adjacent.
- Hauts plafonds
- Open space
7474 Greenway Center Dr - 9e étage – Bureau 920
| Surface | 137 m² |
| Durée | Négociable |
| Loyer | Sur demande |
| Type de bien | Bureau |
| Aménagement | Construction achevée |
| Disponible | Maintenant |
- Entièrement aménagé comme Bureau standard
- Disposition open space
- Convient pour 4 à 12 personnes
- Peut être associé à un ou plusieurs espaces supplémentaires pour obtenir jusqu’à 1 111 m² d’espace adjacent.
7474 Greenway Center Dr - 11e étage – Bureau 1120
| Surface | 433 m² |
| Durée | Négociable |
| Loyer | Sur demande |
| Type de bien | Bureau |
| Aménagement | Construction achevée |
| Disponible | Maintenant |
- Entièrement aménagé comme Bureau standard
- Plan d’étage avec bureaux fermés
- Convient pour 12 à 38 personnes
Visites 3D Matterport
Sélectionner des occupants à ce bien
- Colleague Consulting LLC
- Société de conseil spécialisée dans l'administration des subventions, la gestion de programmes et de projets, dans le Maryland.
- Columbus Technologies & Services Inc
- Entreprise nationale spécialisée dans l'ingénierie, l'informatique et les logiciels, dont le siège social est situé à El Segundo, en Californie.
- Educational Systems Federal Credit Union
- Caisse de crédit fédérale locale située à Greenbelt, dans le Maryland, fondée en 1955.
- Hammers Co Inc
- Entreprise locale de développement de génie logiciel de haute technologie appartenant à des femmes, basée à Greenbelt, dans le Maryland.
- MidAtlantic Urology Associates, LLC
- Services locaux de soins urologiques basés à Greenbelt, dans le Maryland, fondés en 2006.
- Northrop Grumman
- Société de défense et de sécurité aérospatiales dont le siège social est situé à Falls Church, en Virginie, créée en 1939.
- SleepMed, Inc.
- Société internationale de technologie médicale créée en 2014 dont le siège social est à Paris, en France.
- Southern Maryland Medical Group
- Cabinet de médecine familiale local basé à Greenbelt, dans le Maryland, fondé en 2008.
- Vecna Technologies
- Société nationale de solutions de téléprésence et de robotique dont le siège social est situé à Burlington, dans le Massachusetts, depuis 1999.
- Village Settlements Inc
- Bureau des avocats chargés des règlements basé à Gaithersburg, dans le Maryland. Fondée en 1994.
Vue d’ensemble du parc
Le Maryland Trade Center situé aux 7474 et 7500 Greenway Center Drive propose des bureaux et des locaux médicaux de classe A dans une ville de banlieue animée. Ce centre de 128 820 pieds carrés de deux bâtiments bénéficie d'une combinaison d'un emplacement supérieur, d'une accessibilité pratique et d'une multitude de commodités accessibles à pied. Les locataires bénéficient des excellentes commodités du centre, telles que le centre de remise en forme, le café Perfect Pita sur place, un grand parking et un hôtel pour séjours prolongés. Les avantages supplémentaires de la propriété incluent des possibilités de signalisation de premier plan. Idéalement situé à l'intersection de la Baltimore-Washington Parkway et du périphérique de la capitale, le Maryland Trade Center permet de courts trajets et une connectivité facile. Le Maryland Trade Center se trouve à quelques pas du centre commercial Greenway, qui compte de nombreux restaurants, trois banques et Safeway Food. Les principales artères environnantes offrent des liaisons fluides vers Washington, DC, Annapolis, Baltimore, l'aéroport BWI et au-delà. Greenbelt est une banlieue pittoresque regorgeant de quartiers résidentiels, de parcs communautaires et d'une pléthore de boutiques, de restaurants et de services. De nombreux employeurs de premier plan, tels que le Goddard Space Flight Center de la NASA, le Centre de recherche du ministère de l'Agriculture et l'Université du Maryland, ont élu domicile dans la grande région de la ceinture de verdure. Profitez d'une visibilité exceptionnelle et d'une destination prisée de Greenbelt au Maryland Trade Center.
- Climatisation
Brochure du parc
À proximité
Hôpitaux |
|||
|---|---|---|---|
| Doctors Community Hospital | Soins intensifs | 4 min en voiture | 2,3 km |
| University of Maryland Prince George's Hospital Center | Soins intensifs | 11 min en voiture | 9,7 km |
| Adventist Healthcare White Oak Medical Center | Soins intensifs | 15 min en voiture | 12,5 km |
| Laurel Regional Medical Center | Soins intensifs | 17 min en voiture | 14,4 km |
| MedStar Washington Hospital Center | Soins intensifs | 21 min en voiture | 18,1 km |
Restaurants |
|||
|---|---|---|---|
| Perfect Pita | Pizza | €€€ | 0 min. à pied |
| IHOP | - | - | 4 min. à pied |
| bb.q Chicken | - | - | 4 min. à pied |
| Smoothie King | - | - | 4 min. à pied |
| TCBY | Boulangerie | - | 4 min. à pied |
| Subway | - | - | 4 min. à pied |
| Starbucks | Café | USD | 4 min. à pied |
| Willy K's | Café | €€ | 8 min. à pied |
Local commercial |
||
|---|---|---|
| DTLR | Chaussures | 4 min. à pied |
| Safeway | Supermarché | 4 min. à pied |
| Ross Dress for Less | Autres commerces | 4 min. à pied |
| Sola Salon Studios | Coiffeur/Barbier/Spa | 4 min. à pied |
| For Eyes | Optique | 4 min. à pied |
| Bath & Body Works | Parapharmacie | 4 min. à pied |
| Health Mart Pharmacy | Pharmacie | 9 min. à pied |
| United States Postal Service | Services commerciaux/Photocopies/Poste | 10 min. à pied |
Hôtels |
|
|---|---|
| WoodSpring Suites |
124 chambres
1 min en voiture
|
| Holiday Inn |
206 chambres
3 min en voiture
|
| Sonesta Select |
152 chambres
5 min en voiture
|
| Residence Inn |
120 chambres
6 min en voiture
|
Équipe de location
Ingo Mayr, CCIM, Executive Vice President
William Czekaj, Vice President
Il a débuté sa carrière dans l'immobilier commercial à l'été 2009. M. Czekaj possède plus de neuf ans d'expérience dans le domaine de l'immobilier commercial et a participé à des transactions de location d'une valeur de plus de 115 millions de dollars. Parmi les clients de M. Czekaj figurent General Electric Credit Equities, Inc., UBS, Northwestern Mutual Life, PS Business Parks, Avalon Bay, Bresler & Reiner, Inc., ainsi que des investisseurs/partenaires fortunés. Il est membre de la NAIOP Northern Virginia.
M. Czekaj a obtenu son baccalauréat en histoire au Rollins College.
Katherine G Czekaj, Senior Vice President
Mme Freehof a obtenu sa maîtrise en administration des affaires à la Crummer Graduate School of Business et un baccalauréat ès arts en études environnementales au Rollins College. Elle est membre de la National Association of Industrial and Office Properties (NAIOP Northern Virginia Chapter), de Commercial Real Estate Women (CREW Northern Virginia Chapter), de la Commercial Real Estate Brokerage Association (CREBA) et du Conseil international des centres commerciaux (ICSC).
À propos du propriétaire
Présenté par
Maryland Trade Center | Greenbelt, MD 20770
Hum, une erreur s’est produite lors de l’envoi de votre message. Veuillez réessayer.
Merci ! Votre message a été envoyé.


























































