Votre e-mail a été envoyé.
Certaines informations ont été traduites automatiquement.
Informations principales
- Dînez dans un cadre décontracté dans un patio extérieur agrémenté d'une cheminée en pierre en plein air au Strings Italian Cafe.
- Un système d'éclairage ultramoderne met en valeur le centre la nuit.
- Les franchisés et les propriétaires de petites entreprises adoreront la visibilité et le trafic piétonnier.
- Parking gratuit, pratique et spacieux.
- Les événements communautaires peuvent inclure un petit marché fermier et un festival gastronomique et artistique.
Disponibilité de l’espace (2)
Afficher le tarif en
- Espace
- Surface
- Durée
- Loyer
- Type de loyer
| Espace | Surface | Durée | Loyer | Type de loyer | ||
| 1er étage, bureau D | 230 m² | Négociable | 302,96 € /m²/an 25,25 € /m²/mois 69 801 € /an 5 817 € /mois | Brut modifié | ||
| 1er étage, bureau M | 14 – 208 m² | Négociable | 275,42 € /m²/an 22,95 € /m²/mois 57 315 € /an 4 776 € /mois | Brut modifié |
767 E Yosemite Ave - 1er étage – Bureau D
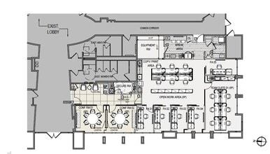
This suite sits in one of Merced’s strongest commercial hubs at Promenade Center, and it shows. The space was newly built out a little over a year ago, so everything still feels fresh, polished, and thoughtfully designed—with high-end finishes throughout and modern, high-tech features that support today’s businesses. The layout works for teams that need both privacy and collaboration. You’ll find five private offices, two smaller conference rooms perfect for focused meetings, and a large flex conference room that can easily support multiple workstations if you prefer an open setup. There’s also a central bullpen area that gives your team room to move, a comfortable breakroom, and even a dedicated wellness room—something clients and staff always appreciate. If you’re looking for a modern, turnkey space in a prime location where your business can grow, this one checks all the boxes.
- Il est possible que le loyer annoncé ne comprenne pas certains services publics, services d’immeuble et frais immobiliers.
- Entièrement aménagé comme Bureau de services financiers
- Convient pour 7 à 20 personnes
- 5 bureaux privés
- 2 salles de conférence
- 17 postes de travail
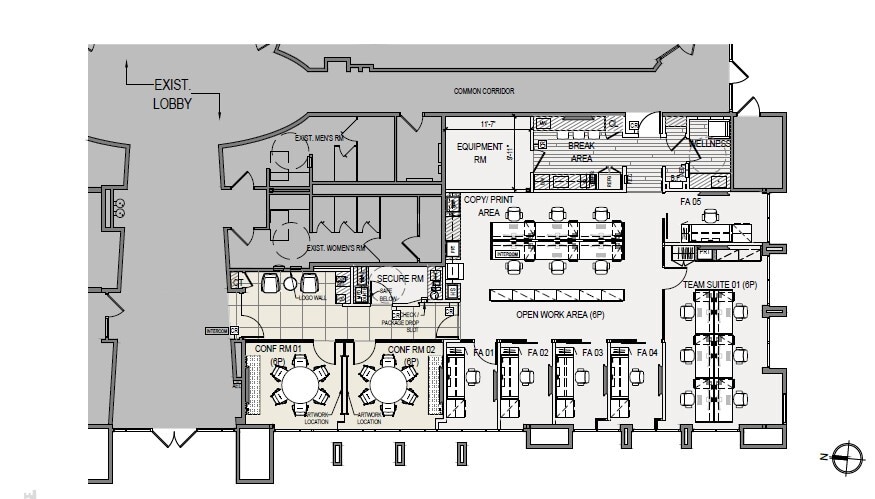
755 E Yosemite Ave - 1er étage – Bureau M
Located in the highly sought-after Promenade Center, Suite M offers a functional and versatile office layout perfect for growing businesses. This well-appointed space includes a private office for focused work, a spacious conference room ideal for meetings, and an expansive bullpen area designed to accommodate teams and collaborative work. With a central location and easy access to major roadways, this office space provides a professional environment that is sure to impress both clients and employees. Executive suite combinations are available for lease starting at 150 square feet. Perfect for businesses looking to establish a professional presence in North Merced. Schedule a tour today to see all this space has to offer!
- Il est possible que le loyer annoncé ne comprenne pas certains services publics, services d’immeuble et frais immobiliers.
- Entièrement aménagé comme Bureau standard
- Principalement open space
- 1 bureau privé
- 1 salle de conférence
- 40 postes de travail
- Espace en excellent état
Types de loyers
Le montant et le type de loyer que l’occupant (locataire) est tenu de payer au propriétaire (bailleur) sur la durée du bail sont négociés avant la signature du bail par les deux parties. Le type de loyer varie selon les services fournis. Par exemple, le prix d’un loyer triple net est habituellement inférieur à celui d’un bail à service complet puisque l’occupant est tenu d’assumer des dépenses supplémentaires par rapport au loyer de base. Contacter le broker chargé de l’annonce pour bien comprendre les coûts associés ou les dépenses supplémentaires pour chaque type de loyer.
1. Service complet: Un loyer qui comprend des services d’immeuble standards normaux fournis par le propriétaire dans le cadre d’une location annuelle de base.
2. Double net (NN): L’occupant paie seulement deux des frais de l’immeuble. Le propriétaire et l’occupant déterminent ces frais spécifiques avant la signature du bail.
3. Triple net (NNN): Un bail selon lequel l’occupant est responsable de tous les frais liés à sa part proportionnelle d’occupation de l’immeuble.
4. Brut modifié: Le brut modifié est un type général de bail dans lequel l’occupant est en général responsable de sa part proportionnelle d’une ou de plusieurs dépenses. C’est le propriétaire qui paie les frais restants. Consultez la liste ci-dessous pour connaître les structures de loyers bruts modifiés les plus courantes : 4. Plus services publics: Un type de bail brut modifié, où l’occupant est responsable à hauteur de sa part proportionnelle des services publics en plus du loyer. 4. Plus nettoyage: Un type de bail brut modifié, où l’occupant est responsable à hauteur de sa part proportionnelle du nettoyage en plus du loyer. 4. Plus électricité: Un type de bail brut modifié, où l’occupant est responsable à hauteur de sa part proportionnelle du coût de la consommation électrique en plus du loyer. 4. Plus électricité et nettoyage: Un type de bail brut modifié, où l’occupant est responsable à hauteur de sa part proportionnelle du coût de la consommation électrique et du nettoyage en plus du loyer. 4. Plus services publics et charges: Un type de bail brut modifié où l’occupant est responsable à hauteur de sa part proportionnelle des services publics et du coût de nettoyage en plus du loyer. 4. Bail industriel brut: Un type de bail brut modifié dans lequel l’occupant paie un ou plusieurs des frais en plus du loyer. Le propriétaire et l’occupant déterminent ces frais spécifiques avant la signature du bail.
5. Électricité à la charge de l’occupant: Le propriétaire paie pour tous les services et l’occupant est responsable de sa propre utilisation de l’éclairage et des prises électriques dans l’espace qu’il occupe.
6. Négociable ou sur demande: Cette option est utilisée lorsque le contact de location n’indique pas le type de loyer ou de service.
7. À déterminer: À déterminer : utilisé pour les immeubles dont le type de services ou de loyer n’est pas connu, souvent quand l’immeuble n’est pas encore construit.
Sélectionner des occupants à Promenade Center
- Educational Employees Credit Union
- Port of Subs
- Quickly
- Strings Italian Cafe
- Teriyaki Don
- Wing Stop Restaurants, Inc
Informations sur l’immeuble
| Espace total disponible | 439 m² | Magasins | 1 |
| Min. Divisible | 14 m² | Biens du centre | 4 |
| Type de centre | Centre de quartier | Surface commerciale utile | 3 739 m² |
| Stationnement | 206 places | Surface totale du terrain | 0,67 ha |
| Espace total disponible | 439 m² |
| Min. Divisible | 14 m² |
| Type de centre | Centre de quartier |
| Stationnement | 206 places |
| Magasins | 1 |
| Biens du centre | 4 |
| Surface commerciale utile | 3 739 m² |
| Surface totale du terrain | 0,67 ha |
À propos du bien
The Promenade est la principale destination de shopping et de restauration de North Merced, une communauté en pleine croissance qui a besoin de restaurants et de services de vente au détail. Ce centre de quartier fournit un excellent assortiment de magasins de détail et de boutiques spécialisées, de restaurants intérieurs et en plein air, d'un spa de jour et de cabinets médicaux dans la région de Merced depuis 2005. Détenus et gérés par Heritage Management, nous sommes impatients de répondre aux besoins de votre entreprise dans notre belle communauté. La Promenade est située à l'angle de Paulson Rd et de Yosemite Ave, à proximité de l'UC Merced, du Merced College et du Mercy Hospital. La Promenade est située à l'angle de Paulson Rd et de Yosemite Ave, à proximité de l'UC Merced, du Merced College et du Mercy Hospital.
Données démographiques
Données démographiques
Principaux commerces à proximité
Présenté par
Promenade Center | 731-779 E Yosemite Ave
Hum, une erreur s’est produite lors de l’envoi de votre message. Veuillez réessayer.
Merci ! Votre message a été envoyé.










