Votre e-mail a été envoyé.
Certaines informations ont été traduites automatiquement.
Informations principales
- 315 Madison Avenue offers well-maintained offices for businesses of all sizes, with high-speed internet access and tenant-controlled air conditioning.
- Capitalize on a strategic location across from Grand Central Station and steps to Bryant Park, Times Square, the Theater District, and more.
- Enjoy a prestigious work environment with 24-hour access, an attended lobby, provided cleaning and maintenance, and an on-site superintendent.
- Employees benefit from immediate access to surrounding subway trains and bus lines, plus underground parking provides easy commutes for drivers.
Tous les espaces disponibles(11)
Afficher les loyers en
- Espace
- Surface
- Durée
- Loyer
- Type de bien
- Aménagement
- Disponible
- Loyer annoncé plus part proportionnelle des coûts de la consommation électrique
- Principalement open space
- Partiellement aménagé comme Bureau standard
- Espace en excellent état
- Loyer annoncé plus part proportionnelle des coûts de la consommation électrique
- Principalement open space
- Partiellement aménagé comme Bureau standard
- Espace en excellent état
- Loyer annoncé plus part proportionnelle des coûts de la consommation électrique
- Principalement open space
- Entièrement aménagé comme Bureau standard
- Espace en excellent état
- Loyer annoncé plus part proportionnelle des coûts de la consommation électrique
- Principalement open space
- Partiellement aménagé comme Bureau standard
- Espace en excellent état
- Loyer annoncé plus part proportionnelle des coûts de la consommation électrique
- Principalement open space
- Partiellement aménagé comme Bureau standard
- Espace en excellent état
Dental Space
- Loyer annoncé plus part proportionnelle des coûts de la consommation électrique
- Principalement open space
- Partiellement aménagé comme Cabinet dentaire
- Espace en excellent état
- Loyer annoncé plus part proportionnelle des coûts de la consommation électrique
- Principalement open space
- Partiellement aménagé comme Bureau standard
- Espace en excellent état
- Loyer annoncé plus part proportionnelle des coûts de la consommation électrique
- Principalement open space
- Partiellement aménagé comme Bureau standard
- Espace en excellent état
- Loyer annoncé plus part proportionnelle des coûts de la consommation électrique
- Principalement open space
- Partiellement aménagé comme Bureau standard
- Espace en excellent état
- Loyer annoncé plus part proportionnelle des coûts de la consommation électrique
- Principalement open space
- Partiellement aménagé comme Bureau standard
- Espace en excellent état
- Loyer annoncé plus part proportionnelle des coûts de la consommation électrique
- Principalement open space
- Partiellement aménagé comme Bureau standard
- Espace en excellent état
| Espace | Surface | Durée | Loyer | Type de bien | Aménagement | Disponible |
| 7e étage, bureau 705 | 238 m² | Négociable | 552,75 € /m²/an 46,06 € /m²/mois 131 770 € /an 10 981 € /mois | Bureau | Construction partielle | Maintenant |
| 9e étage, bureau 900 | 220 m² | Négociable | 506,69 € /m²/an 42,22 € /m²/mois 111 704 € /an 9 309 € /mois | Bureau | Construction partielle | Maintenant |
| 12e étage, bureau 1201 | 211 m² | Négociable | 552,75 € /m²/an 46,06 € /m²/mois 116 364 € /an 9 697 € /mois | Bureau | Construction achevée | Maintenant |
| 13e étage, bureau 1301 | 188 m² | Négociable | 552,75 € /m²/an 46,06 € /m²/mois 104 091 € /an 8 674 € /mois | Bureau | Construction partielle | Maintenant |
| 13e étage, bureau 1304 | 93 m² | Négociable | 534,33 € /m²/an 44,53 € /m²/mois 49 492 € /an 4 124 € /mois | Bureau | Construction partielle | Maintenant |
| 13e étage, bureau 1308 | 73 m² | Négociable | 626,45 € /m²/an 52,20 € /m²/mois 45 512 € /an 3 793 € /mois | Bureaux/Médical | Construction partielle | Maintenant |
| 15e étage, bureau 1501A | 129 m² | Négociable | 534,33 € /m²/an 44,53 € /m²/mois 68 752 € /an 5 729 € /mois | Bureau | Construction partielle | Maintenant |
| 15e étage, bureau 1501B | 96 m² | Négociable | 543,54 € /m²/an 45,29 € /m²/mois 52 112 € /an 4 343 € /mois | Bureau | Construction partielle | Maintenant |
| 15e étage, bureau 1501C | 126 m² | Négociable | 552,75 € /m²/an 46,06 € /m²/mois 69 788 € /an 5 816 € /mois | Bureau | Construction partielle | Maintenant |
| 18e étage, bureau 1801 | 188 m² | Négociable | 543,54 € /m²/an 45,29 € /m²/mois 102 205 € /an 8 517 € /mois | Bureau | Construction partielle | Maintenant |
| 26e étage, bureau 2600 | 66 m² | Négociable | 442,20 € /m²/an 36,85 € /m²/mois 29 168 € /an 2 431 € /mois | Bureau | Construction partielle | Maintenant |
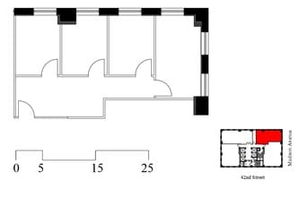
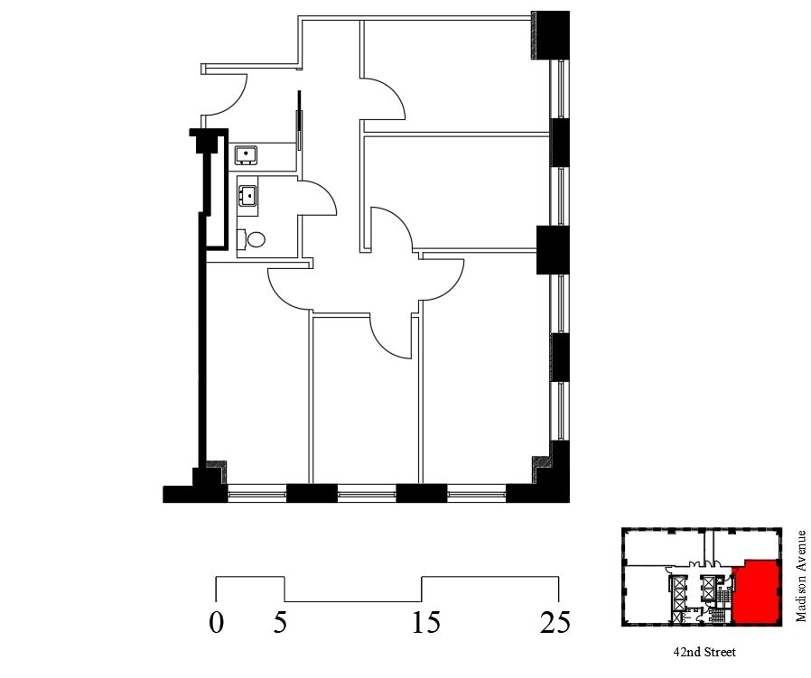
7e étage, bureau 705
| Surface |
| 238 m² |
| Durée |
| Négociable |
| Loyer |
| 552,75 € /m²/an 46,06 € /m²/mois 131 770 € /an 10 981 € /mois |
| Type de bien |
| Bureau |
| Aménagement |
| Construction partielle |
| Disponible |
| Maintenant |
9e étage, bureau 900
| Surface |
| 220 m² |
| Durée |
| Négociable |
| Loyer |
| 506,69 € /m²/an 42,22 € /m²/mois 111 704 € /an 9 309 € /mois |
| Type de bien |
| Bureau |
| Aménagement |
| Construction partielle |
| Disponible |
| Maintenant |
12e étage, bureau 1201
| Surface |
| 211 m² |
| Durée |
| Négociable |
| Loyer |
| 552,75 € /m²/an 46,06 € /m²/mois 116 364 € /an 9 697 € /mois |
| Type de bien |
| Bureau |
| Aménagement |
| Construction achevée |
| Disponible |
| Maintenant |
13e étage, bureau 1301
| Surface |
| 188 m² |
| Durée |
| Négociable |
| Loyer |
| 552,75 € /m²/an 46,06 € /m²/mois 104 091 € /an 8 674 € /mois |
| Type de bien |
| Bureau |
| Aménagement |
| Construction partielle |
| Disponible |
| Maintenant |
13e étage, bureau 1304
| Surface |
| 93 m² |
| Durée |
| Négociable |
| Loyer |
| 534,33 € /m²/an 44,53 € /m²/mois 49 492 € /an 4 124 € /mois |
| Type de bien |
| Bureau |
| Aménagement |
| Construction partielle |
| Disponible |
| Maintenant |
13e étage, bureau 1308
| Surface |
| 73 m² |
| Durée |
| Négociable |
| Loyer |
| 626,45 € /m²/an 52,20 € /m²/mois 45 512 € /an 3 793 € /mois |
| Type de bien |
| Bureaux/Médical |
| Aménagement |
| Construction partielle |
| Disponible |
| Maintenant |
15e étage, bureau 1501A
| Surface |
| 129 m² |
| Durée |
| Négociable |
| Loyer |
| 534,33 € /m²/an 44,53 € /m²/mois 68 752 € /an 5 729 € /mois |
| Type de bien |
| Bureau |
| Aménagement |
| Construction partielle |
| Disponible |
| Maintenant |
15e étage, bureau 1501B
| Surface |
| 96 m² |
| Durée |
| Négociable |
| Loyer |
| 543,54 € /m²/an 45,29 € /m²/mois 52 112 € /an 4 343 € /mois |
| Type de bien |
| Bureau |
| Aménagement |
| Construction partielle |
| Disponible |
| Maintenant |
15e étage, bureau 1501C
| Surface |
| 126 m² |
| Durée |
| Négociable |
| Loyer |
| 552,75 € /m²/an 46,06 € /m²/mois 69 788 € /an 5 816 € /mois |
| Type de bien |
| Bureau |
| Aménagement |
| Construction partielle |
| Disponible |
| Maintenant |
18e étage, bureau 1801
| Surface |
| 188 m² |
| Durée |
| Négociable |
| Loyer |
| 543,54 € /m²/an 45,29 € /m²/mois 102 205 € /an 8 517 € /mois |
| Type de bien |
| Bureau |
| Aménagement |
| Construction partielle |
| Disponible |
| Maintenant |
26e étage, bureau 2600
| Surface |
| 66 m² |
| Durée |
| Négociable |
| Loyer |
| 442,20 € /m²/an 36,85 € /m²/mois 29 168 € /an 2 431 € /mois |
| Type de bien |
| Bureau |
| Aménagement |
| Construction partielle |
| Disponible |
| Maintenant |
7e étage, bureau 705
| Surface | 238 m² |
| Durée | Négociable |
| Loyer | 552,75 € /m²/an |
| Type de bien | Bureau |
| Aménagement | Construction partielle |
| Disponible | Maintenant |
- Loyer annoncé plus part proportionnelle des coûts de la consommation électrique
- Partiellement aménagé comme Bureau standard
- Principalement open space
- Espace en excellent état
9e étage, bureau 900
| Surface | 220 m² |
| Durée | Négociable |
| Loyer | 506,69 € /m²/an |
| Type de bien | Bureau |
| Aménagement | Construction partielle |
| Disponible | Maintenant |
- Loyer annoncé plus part proportionnelle des coûts de la consommation électrique
- Partiellement aménagé comme Bureau standard
- Principalement open space
- Espace en excellent état
12e étage, bureau 1201
| Surface | 211 m² |
| Durée | Négociable |
| Loyer | 552,75 € /m²/an |
| Type de bien | Bureau |
| Aménagement | Construction achevée |
| Disponible | Maintenant |
- Loyer annoncé plus part proportionnelle des coûts de la consommation électrique
- Entièrement aménagé comme Bureau standard
- Principalement open space
- Espace en excellent état
13e étage, bureau 1301
| Surface | 188 m² |
| Durée | Négociable |
| Loyer | 552,75 € /m²/an |
| Type de bien | Bureau |
| Aménagement | Construction partielle |
| Disponible | Maintenant |
- Loyer annoncé plus part proportionnelle des coûts de la consommation électrique
- Partiellement aménagé comme Bureau standard
- Principalement open space
- Espace en excellent état
13e étage, bureau 1304
| Surface | 93 m² |
| Durée | Négociable |
| Loyer | 534,33 € /m²/an |
| Type de bien | Bureau |
| Aménagement | Construction partielle |
| Disponible | Maintenant |
- Loyer annoncé plus part proportionnelle des coûts de la consommation électrique
- Partiellement aménagé comme Bureau standard
- Principalement open space
- Espace en excellent état
13e étage, bureau 1308
| Surface | 73 m² |
| Durée | Négociable |
| Loyer | 626,45 € /m²/an |
| Type de bien | Bureaux/Médical |
| Aménagement | Construction partielle |
| Disponible | Maintenant |
Dental Space
- Loyer annoncé plus part proportionnelle des coûts de la consommation électrique
- Partiellement aménagé comme Cabinet dentaire
- Principalement open space
- Espace en excellent état
15e étage, bureau 1501A
| Surface | 129 m² |
| Durée | Négociable |
| Loyer | 534,33 € /m²/an |
| Type de bien | Bureau |
| Aménagement | Construction partielle |
| Disponible | Maintenant |
- Loyer annoncé plus part proportionnelle des coûts de la consommation électrique
- Partiellement aménagé comme Bureau standard
- Principalement open space
- Espace en excellent état
15e étage, bureau 1501B
| Surface | 96 m² |
| Durée | Négociable |
| Loyer | 543,54 € /m²/an |
| Type de bien | Bureau |
| Aménagement | Construction partielle |
| Disponible | Maintenant |
- Loyer annoncé plus part proportionnelle des coûts de la consommation électrique
- Partiellement aménagé comme Bureau standard
- Principalement open space
- Espace en excellent état
15e étage, bureau 1501C
| Surface | 126 m² |
| Durée | Négociable |
| Loyer | 552,75 € /m²/an |
| Type de bien | Bureau |
| Aménagement | Construction partielle |
| Disponible | Maintenant |
- Loyer annoncé plus part proportionnelle des coûts de la consommation électrique
- Partiellement aménagé comme Bureau standard
- Principalement open space
- Espace en excellent état
18e étage, bureau 1801
| Surface | 188 m² |
| Durée | Négociable |
| Loyer | 543,54 € /m²/an |
| Type de bien | Bureau |
| Aménagement | Construction partielle |
| Disponible | Maintenant |
- Loyer annoncé plus part proportionnelle des coûts de la consommation électrique
- Partiellement aménagé comme Bureau standard
- Principalement open space
- Espace en excellent état
26e étage, bureau 2600
| Surface | 66 m² |
| Durée | Négociable |
| Loyer | 442,20 € /m²/an |
| Type de bien | Bureau |
| Aménagement | Construction partielle |
| Disponible | Maintenant |
- Loyer annoncé plus part proportionnelle des coûts de la consommation électrique
- Partiellement aménagé comme Bureau standard
- Principalement open space
- Espace en excellent état
Aperçu du bien
Le 315 Madison Avenue est une tour de bureaux de 26 étages située en face de Grand Central Station et à un pâté de maisons de Bryant Park. Cet immeuble idéalement situé offre un accès 24h/24, un agent d'accueil présent en permanence dans le hall, un surintendant sur place, ainsi que des services de nettoyage et d'entretien assurés par le propriétaire. Des bureaux de tailles variées sont disponibles pour une occupation immédiate. Ces espaces de travail disposent de plans modernes, principalement ouverts, et sont proposés avec des conditions de bail négociables. Les locataires peuvent profiter d'un accès à Internet haut débit et d'une climatisation contrôlée par les occupants. Avec un emplacement privilégié au cœur de Midtown, le 315 Madison Avenue se trouve à quelques minutes à pied de Times Square, du quartier des théâtres, ainsi que d'une multitude de boutiques et de restaurants situés sur les avenues Lexington, Park, Madison et Fifth. Le terminal de bus Port Authority est à 12 minutes de marche, et la gare de New York Penn Station est à 20 minutes à pied de la propriété. De plus, plusieurs lignes de bus desservent la zone, offrant des options supplémentaires pour les trajets : les lignes M2, M3 et M4 sur Lexington Avenue, les lignes M42 et M104 sur la 42e rue, ainsi que les lignes M27 et M50 sur la 49e rue pour les trajets transversaux. Le 315 Madison Avenue combine un emplacement emblématique avec des caractéristiques axées sur les locataires, offrant un espace de travail pratique et prestigieux au cœur de New York.
- Accès 24 h/24
- Internet par fibre optique
Informations sur l’immeuble
Occupants
- Chick-Fil-A
- Restaurant de restauration rapide mondial servant du poulet frit basé à College Park, en Géorgie, depuis 1967.
- Jay Suites, Inc.
- Fournisseur de bureaux proposant des suites de luxe, des plans de bureaux virtuels et des salles de conférence à la demande.
- Lakhani & Jordan Engineers Pc
- Société de conseil qui fournit des services de conception mécanique, de protection incendie et électrique.
- Manhattan Center For Cognitive Behavioral Therapy
- Centre de traitement thérapeutique qui fournit des services psychologiques aux personnes atteintes de maladies.
- MOCEAN
- Clinique de physiothérapie locale à New York, NY, offrant une approche holistique unique en son genre.
- T-Mobile
- Entreprise mondiale de télécommunications mobiles dont le siège social est situé à Bellevue, dans l'État de Washington, fondée en 1994.
À proximité
Hôpitaux |
|||
|---|---|---|---|
| New York University Langone Medical Center | Soins intensifs | 4 min en voiture | 2 km |
| Bellevue Hospital Center | Soins intensifs | 5 min en voiture | 2,4 km |
| Mount Sinai St. Luke's Roosevelt Hospital | Soins intensifs | 4 min en voiture | 2,9 km |
| New York Eye and Ear Infirmary of Mount Sinai | Soins intensifs | 6 min en voiture | 2,9 km |
| Mount Sinai Beth Israel | Soins intensifs | 6 min en voiture | 3,2 km |
Restaurants |
|||
|---|---|---|---|
| Just Salad | Soupe | USD | dans l’immeuble |
| Dunkin' | Café | - | 3 min. à pied |
| Little Beet | Américain | €€€ | 3 min. à pied |
| Starbucks | Café | USD | 3 min. à pied |
| CAVA | - | - | 3 min. à pied |
Local commercial |
||
|---|---|---|
| FedEx Office | Services commerciaux/Photocopies/Poste | 1 min. à pied |
| Chase Bank | Banque | 2 min. à pied |
| Apple Store | Électronique grand public | 3 min. à pied |
| United States Postal Service | Services commerciaux/Photocopies/Poste | 6 min. à pied |
| CVS Pharmacy | Pharmacie | 5 min. à pied |
Hôtels |
|
|---|---|
| Hilton Garden Inn |
282 chambres
8 min. à pied
|
| Westin |
774 chambres
7 min. à pied
|
| Hilton Grand Vacations |
161 chambres
7 min. à pied
|
| Sonesta Hotel |
325 chambres
8 min. à pied
|
| Tempo by Hilton |
661 chambres
14 min. à pied
|
À propos du quartier Grand Central
Le quartier de Grand Central est considéré comme l'un des sites de bureaux les plus importants au monde. Il abrite des immeubles de bureaux emblématiques comme le Chrysler Building et des sites historiques comme le Grand Central Terminal, qui relie Manhattan aux enclaves suburbaines du comté de Westchester et du Connecticut. Une situation centrale, une connectivité élevée et une pléthore d'immeubles de bureaux de qualité attirent une demande constante dans la région.
L'adoption du plan de zonage de Midtown East contribue à façonner l'avenir de Grand Central. Alors que Grand Central abrite déjà des immeubles de bureaux historiques, la nouvelle initiative de rezonage permettra désormais aux promoteurs d'acheter les droits aériens des bâtiments historiques adjacents afin de pouvoir construire des tours de bureaux plus hautes et plus modernes. One Vanderbilt est le premier projet à bénéficier de cet effort de rezonage et constitue désormais l'immeuble le plus haut de Midtown.
Avec les nouveaux projets prévus, un accès facile aux transports en commun pour les usagers du train et du métro et la proximité de Bryant Park, le quartier de Grand Central devrait continuer à susciter l'intérêt des locataires à l'avenir.
Agent de location
Billie Jean Hamel, Director of Operations
À propos du propriétaire
Autres biens dans le portefeuille ABRAMSON BROTHERS
Présenté par
315 Madison Ave
Hum, une erreur s’est produite lors de l’envoi de votre message. Veuillez réessayer.
Merci ! Votre message a été envoyé.

























