Votre e-mail a été envoyé.
Informations principales sur l'investissement
- Programme neuf
- Parking mutualisé
- Accès rapide A89
Résumé analytique
Le Parc du Viaduc est un programme neuf conçu pour accueillir des activités artisanales, industrielles légères ou de petites entreprises en recherche d’un environnement moderne et fonctionnel. L’ensemble se distingue par son architecture en structure bois et ses façades légères, apportant un cadre de travail qualitatif et durable. Les cellules sont pensées pour offrir une flexibilité importante, avec des volumes faciles à adapter et des hauteurs confortables permettant d’implanter aussi bien des machines que des espaces de travail. Le site intègre un parking mutualisé en nombre conséquent, garantissant une accessibilité facilitée pour les collaborateurs et les visiteurs. Le parc bénéficie d’une localisation stratégique à Tarare, à proximité immédiate de l’autoroute A89 et à moins de quarante-cinq minutes des principales gares lyonnaises. Cette situation permet de connecter aisément les différents bassins économiques de la région, tout en proposant un environnement calme et propice aux activités de production ou de logistique légère. La conception récente du site garantit un niveau de performance technique élevé et une qualité d’exploitation durable pour les entreprises souhaitant s’y implanter.
Informations sur l’immeuble
| Surface totale de l’immeuble | 1 966 m² | Étages | 2 |
| Type de bien | Local d'activités | Surface type par étage | 1 966 m² |
| Sous-type de bien | Manufacture légère | Année de construction | 2023 |
| Classe d’immeuble | B | Surface du lot | 0,18 ha |
| Surface totale de l’immeuble | 1 966 m² |
| Type de bien | Local d'activités |
| Sous-type de bien | Manufacture légère |
| Classe d’immeuble | B |
| Étages | 2 |
| Surface type par étage | 1 966 m² |
| Année de construction | 2023 |
| Surface du lot | 0,18 ha |
Caractéristiques
- Accès 24 h/24
- Accès contrôlé
- Accessible fauteuils roulants
- Système de plancher surélevé
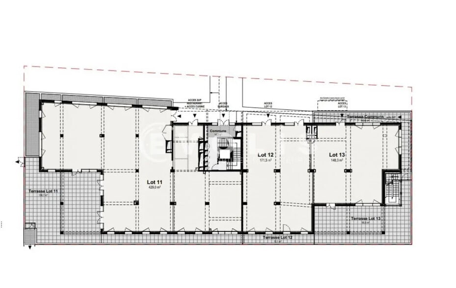
8 Lots disponibles
Lot c1
| Surface du lot | 421 m² | Type de vente | Propriétaire occupant |
| Usage du lot en coprop. | Local d’activités |
| Surface du lot | 421 m² |
| Usage du lot en coprop. | Local d’activités |
| Type de vente | Propriétaire occupant |
Description
Activités:
. Parking mutualisé (168 places)
. Charpente ossature bois
Façades légères à ossature métallique
. Hauteur libre sous plafond 5,70 mètres
. Hauteur libre sous mezzanine 2,50 mètres
Bureaux :
. Hauteur sous plafond des bureaux 2,70 mètres
. Modularité du cloisonnement basée sur un tramage tous les 2,70 mètres
. Traitement hygiénique par ventilation mécanique d'air à double flux
. Production calorifique / frigorifique : système PAC DRV 2 tubes dans local technique au niveau 0
Commerces :
. Bâtiment en ERP catégorie 5 non définie
bâtiment en ERP catégorie 3 type N (lot 11 uniquement)
. Niveau 0 : Hauteur sous poutre 2,80 mètres
. Niveau 1 : Hauteur sous poutre 3,30 mètres
. Modularité du cloisonnement basée sur un tramage tous les 2,70 mètres
. Prédisposition pour équipement technique en attente en sous-sol
Surface RDC : 3912 m²
Notes sur la vente
Evolis vous présente le Parc du Viaduc à Tarare, lots de 160 à 300m² disponibles à la vente et/ou la location, comprenant un total de 5 207 m² dans l'ensemble du parc d'activité. Idéalement situé, ce parc neuf propose de belles prestations, à seulement 20 min de la TECHLID ! Locaux en charpente bois, livrés bruts, fluides en attente. Idéal pour des activités artisanales, startup, stockage. Des bureaux sont également disponibles à la vente sur le parc.
Interior Photo
Interior Photo
Interior Photo
Interior Photo
Interior Photo
Interior Photo
Interior Photo
Interior Photo
Interior Photo
Interior Photo
Interior Photo
Interior Photo
Interior Photo
Interior Photo
Interior Photo
Interior Photo
Interior Photo
Lot c2
| Surface du lot | 336 m² | Type de vente | Propriétaire occupant |
| Usage du lot en coprop. | Local d’activités |
| Surface du lot | 336 m² |
| Usage du lot en coprop. | Local d’activités |
| Type de vente | Propriétaire occupant |
Description
Activités:
. Parking mutualisé (168 places)
. Charpente ossature bois
Façades légères à ossature métallique
. Hauteur libre sous plafond 5,70 mètres
. Hauteur libre sous mezzanine 2,50 mètres
Bureaux :
. Hauteur sous plafond des bureaux 2,70 mètres
. Modularité du cloisonnement basée sur un tramage tous les 2,70 mètres
. Traitement hygiénique par ventilation mécanique d'air à double flux
. Production calorifique / frigorifique : système PAC DRV 2 tubes dans local technique au niveau 0
Commerces :
. Bâtiment en ERP catégorie 5 non définie
bâtiment en ERP catégorie 3 type N (lot 11 uniquement)
. Niveau 0 : Hauteur sous poutre 2,80 mètres
. Niveau 1 : Hauteur sous poutre 3,30 mètres
. Modularité du cloisonnement basée sur un tramage tous les 2,70 mètres
. Prédisposition pour équipement technique en attente en sous-sol
Surface RDC : 3912 m²
Notes sur la vente
Evolis vous présente le Parc du Viaduc à Tarare, lots de 160 à 300m² disponibles à la vente et/ou la location, comprenant un total de 5 207 m² dans l'ensemble du parc d'activité. Idéalement situé, ce parc neuf propose de belles prestations, à seulement 20 min de la TECHLID ! Locaux en charpente bois, livrés bruts, fluides en attente. Idéal pour des activités artisanales, startup, stockage. Des bureaux sont également disponibles à la vente sur le parc.
Interior Photo
Interior Photo
Interior Photo
Interior Photo
Interior Photo
Interior Photo
Interior Photo
Interior Photo
Interior Photo
Interior Photo
Interior Photo
Interior Photo
Interior Photo
Interior Photo
Interior Photo
Interior Photo
Interior Photo
Lot c3
| Surface du lot | 442 m² | Type de vente | Propriétaire occupant |
| Usage du lot en coprop. | Local d’activités |
| Surface du lot | 442 m² |
| Usage du lot en coprop. | Local d’activités |
| Type de vente | Propriétaire occupant |
Description
Activités:
. Parking mutualisé (168 places)
. Charpente ossature bois
Façades légères à ossature métallique
. Hauteur libre sous plafond 5,70 mètres
. Hauteur libre sous mezzanine 2,50 mètres
Bureaux :
. Hauteur sous plafond des bureaux 2,70 mètres
. Modularité du cloisonnement basée sur un tramage tous les 2,70 mètres
. Traitement hygiénique par ventilation mécanique d'air à double flux
. Production calorifique / frigorifique : système PAC DRV 2 tubes dans local technique au niveau 0
Commerces :
. Bâtiment en ERP catégorie 5 non définie
bâtiment en ERP catégorie 3 type N (lot 11 uniquement)
. Niveau 0 : Hauteur sous poutre 2,80 mètres
. Niveau 1 : Hauteur sous poutre 3,30 mètres
. Modularité du cloisonnement basée sur un tramage tous les 2,70 mètres
. Prédisposition pour équipement technique en attente en sous-sol
Surface RDC : 3912 m²
Notes sur la vente
Evolis vous présente le Parc du Viaduc à Tarare, lots de 160 à 300m² disponibles à la vente et/ou la location, comprenant un total de 5 207 m² dans l'ensemble du parc d'activité. Idéalement situé, ce parc neuf propose de belles prestations, à seulement 20 min de la TECHLID ! Locaux en charpente bois, livrés bruts, fluides en attente. Idéal pour des activités artisanales, startup, stockage. Des bureaux sont également disponibles à la vente sur le parc.
Interior Photo
Interior Photo
Interior Photo
Interior Photo
Interior Photo
Interior Photo
Interior Photo
Interior Photo
Interior Photo
Interior Photo
Interior Photo
Interior Photo
Interior Photo
Interior Photo
Interior Photo
Interior Photo
Interior Photo
Lot c4
| Surface du lot | 421 m² | Type de vente | Propriétaire occupant |
| Usage du lot en coprop. | Local d’activités |
| Surface du lot | 421 m² |
| Usage du lot en coprop. | Local d’activités |
| Type de vente | Propriétaire occupant |
Description
Activités:
. Parking mutualisé (168 places)
. Charpente ossature bois
Façades légères à ossature métallique
. Hauteur libre sous plafond 5,70 mètres
. Hauteur libre sous mezzanine 2,50 mètres
Bureaux :
. Hauteur sous plafond des bureaux 2,70 mètres
. Modularité du cloisonnement basée sur un tramage tous les 2,70 mètres
. Traitement hygiénique par ventilation mécanique d'air à double flux
. Production calorifique / frigorifique : système PAC DRV 2 tubes dans local technique au niveau 0
Commerces :
. Bâtiment en ERP catégorie 5 non définie
bâtiment en ERP catégorie 3 type N (lot 11 uniquement)
. Niveau 0 : Hauteur sous poutre 2,80 mètres
. Niveau 1 : Hauteur sous poutre 3,30 mètres
. Modularité du cloisonnement basée sur un tramage tous les 2,70 mètres
. Prédisposition pour équipement technique en attente en sous-sol
Surface RDC : 3912 m²
Notes sur la vente
Evolis vous présente le Parc du Viaduc à Tarare, lots de 160 à 300m² disponibles à la vente et/ou la location, comprenant un total de 5 207 m² dans l'ensemble du parc d'activité. Idéalement situé, ce parc neuf propose de belles prestations, à seulement 20 min de la TECHLID ! Locaux en charpente bois, livrés bruts, fluides en attente. Idéal pour des activités artisanales, startup, stockage. Des bureaux sont également disponibles à la vente sur le parc.
Interior Photo
Interior Photo
Interior Photo
Interior Photo
Interior Photo
Interior Photo
Interior Photo
Interior Photo
Interior Photo
Interior Photo
Interior Photo
Interior Photo
Interior Photo
Interior Photo
Interior Photo
Interior Photo
Interior Photo
Lot c1
| Surface du lot | 120 m² | Type de vente | Propriétaire occupant |
| Usage du lot en coprop. | Bureau |
| Surface du lot | 120 m² |
| Usage du lot en coprop. | Bureau |
| Type de vente | Propriétaire occupant |
Description
Activités:
. Parking mutualisé (168 places)
. Charpente ossature bois
Façades légères à ossature métallique
. Hauteur libre sous plafond 5,70 mètres
. Hauteur libre sous mezzanine 2,50 mètres
Bureaux :
. Hauteur sous plafond des bureaux 2,70 mètres
. Modularité du cloisonnement basée sur un tramage tous les 2,70 mètres
. Traitement hygiénique par ventilation mécanique d'air à double flux
. Production calorifique / frigorifique : système PAC DRV 2 tubes dans local technique au niveau 0
Commerces :
. Bâtiment en ERP catégorie 5 non définie
bâtiment en ERP catégorie 3 type N (lot 11 uniquement)
. Niveau 0 : Hauteur sous poutre 2,80 mètres
. Niveau 1 : Hauteur sous poutre 3,30 mètres
. Modularité du cloisonnement basée sur un tramage tous les 2,70 mètres
. Prédisposition pour équipement technique en attente en sous-sol
Surface RDC : 3912 m²
Notes sur la vente
Evolis vous présente le Parc du Viaduc à Tarare, lots de 160 à 300m² disponibles à la vente et/ou la location, comprenant un total de 5 207 m² dans l'ensemble du parc d'activité. Idéalement situé, ce parc neuf propose de belles prestations, à seulement 20 min de la TECHLID ! Locaux en charpente bois, livrés bruts, fluides en attente. Idéal pour des activités artisanales, startup, stockage. Des bureaux sont également disponibles à la vente sur le parc.
Interior Photo
Interior Photo
Interior Photo
Interior Photo
Interior Photo
Interior Photo
Interior Photo
Interior Photo
Interior Photo
Interior Photo
Interior Photo
Interior Photo
Interior Photo
Interior Photo
Interior Photo
Interior Photo
Interior Photo
Lot c2
| Surface du lot | 106 m² | Type de vente | Propriétaire occupant |
| Usage du lot en coprop. | Bureau |
| Surface du lot | 106 m² |
| Usage du lot en coprop. | Bureau |
| Type de vente | Propriétaire occupant |
Description
Activités:
. Parking mutualisé (168 places)
. Charpente ossature bois
Façades légères à ossature métallique
. Hauteur libre sous plafond 5,70 mètres
. Hauteur libre sous mezzanine 2,50 mètres
Bureaux :
. Hauteur sous plafond des bureaux 2,70 mètres
. Modularité du cloisonnement basée sur un tramage tous les 2,70 mètres
. Traitement hygiénique par ventilation mécanique d'air à double flux
. Production calorifique / frigorifique : système PAC DRV 2 tubes dans local technique au niveau 0
Commerces :
. Bâtiment en ERP catégorie 5 non définie
bâtiment en ERP catégorie 3 type N (lot 11 uniquement)
. Niveau 0 : Hauteur sous poutre 2,80 mètres
. Niveau 1 : Hauteur sous poutre 3,30 mètres
. Modularité du cloisonnement basée sur un tramage tous les 2,70 mètres
. Prédisposition pour équipement technique en attente en sous-sol
Surface RDC : 3912 m²
Notes sur la vente
Evolis vous présente le Parc du Viaduc à Tarare, lots de 160 à 300m² disponibles à la vente et/ou la location, comprenant un total de 5 207 m² dans l'ensemble du parc d'activité. Idéalement situé, ce parc neuf propose de belles prestations, à seulement 20 min de la TECHLID ! Locaux en charpente bois, livrés bruts, fluides en attente. Idéal pour des activités artisanales, startup, stockage. Des bureaux sont également disponibles à la vente sur le parc.
Interior Photo
Interior Photo
Interior Photo
Interior Photo
Interior Photo
Interior Photo
Interior Photo
Interior Photo
Interior Photo
Interior Photo
Interior Photo
Interior Photo
Interior Photo
Interior Photo
Interior Photo
Interior Photo
Interior Photo
Lot c3
| Surface du lot | 106 m² | Type de vente | Propriétaire occupant |
| Usage du lot en coprop. | Bureau |
| Surface du lot | 106 m² |
| Usage du lot en coprop. | Bureau |
| Type de vente | Propriétaire occupant |
Description
Activités:
. Parking mutualisé (168 places)
. Charpente ossature bois
Façades légères à ossature métallique
. Hauteur libre sous plafond 5,70 mètres
. Hauteur libre sous mezzanine 2,50 mètres
Bureaux :
. Hauteur sous plafond des bureaux 2,70 mètres
. Modularité du cloisonnement basée sur un tramage tous les 2,70 mètres
. Traitement hygiénique par ventilation mécanique d'air à double flux
. Production calorifique / frigorifique : système PAC DRV 2 tubes dans local technique au niveau 0
Commerces :
. Bâtiment en ERP catégorie 5 non définie
bâtiment en ERP catégorie 3 type N (lot 11 uniquement)
. Niveau 0 : Hauteur sous poutre 2,80 mètres
. Niveau 1 : Hauteur sous poutre 3,30 mètres
. Modularité du cloisonnement basée sur un tramage tous les 2,70 mètres
. Prédisposition pour équipement technique en attente en sous-sol
Surface RDC : 3912 m²
Notes sur la vente
Evolis vous présente le Parc du Viaduc à Tarare, lots de 160 à 300m² disponibles à la vente et/ou la location, comprenant un total de 5 207 m² dans l'ensemble du parc d'activité. Idéalement situé, ce parc neuf propose de belles prestations, à seulement 20 min de la TECHLID ! Locaux en charpente bois, livrés bruts, fluides en attente. Idéal pour des activités artisanales, startup, stockage. Des bureaux sont également disponibles à la vente sur le parc.
Interior Photo
Interior Photo
Interior Photo
Interior Photo
Interior Photo
Interior Photo
Interior Photo
Interior Photo
Interior Photo
Interior Photo
Interior Photo
Interior Photo
Interior Photo
Interior Photo
Interior Photo
Interior Photo
Interior Photo
Lot c4
| Surface du lot | 120 m² | Type de vente | Propriétaire occupant |
| Usage du lot en coprop. | Bureau |
| Surface du lot | 120 m² |
| Usage du lot en coprop. | Bureau |
| Type de vente | Propriétaire occupant |
Description
Activités:
. Parking mutualisé (168 places)
. Charpente ossature bois
Façades légères à ossature métallique
. Hauteur libre sous plafond 5,70 mètres
. Hauteur libre sous mezzanine 2,50 mètres
Bureaux :
. Hauteur sous plafond des bureaux 2,70 mètres
. Modularité du cloisonnement basée sur un tramage tous les 2,70 mètres
. Traitement hygiénique par ventilation mécanique d'air à double flux
. Production calorifique / frigorifique : système PAC DRV 2 tubes dans local technique au niveau 0
Commerces :
. Bâtiment en ERP catégorie 5 non définie
bâtiment en ERP catégorie 3 type N (lot 11 uniquement)
. Niveau 0 : Hauteur sous poutre 2,80 mètres
. Niveau 1 : Hauteur sous poutre 3,30 mètres
. Modularité du cloisonnement basée sur un tramage tous les 2,70 mètres
. Prédisposition pour équipement technique en attente en sous-sol
Surface RDC : 3912 m²
Notes sur la vente
Evolis vous présente le Parc du Viaduc à Tarare, lots de 160 à 300m² disponibles à la vente et/ou la location, comprenant un total de 5 207 m² dans l'ensemble du parc d'activité. Idéalement situé, ce parc neuf propose de belles prestations, à seulement 20 min de la TECHLID ! Locaux en charpente bois, livrés bruts, fluides en attente. Idéal pour des activités artisanales, startup, stockage. Des bureaux sont également disponibles à la vente sur le parc.
Interior Photo
Interior Photo
Interior Photo
Interior Photo
Interior Photo
Interior Photo
Interior Photo
Interior Photo
Interior Photo
Interior Photo
Interior Photo
Interior Photo
Interior Photo
Interior Photo
Interior Photo
Interior Photo
Interior Photo
Présenté par
17 Rue De Paris
Hum, une erreur s’est produite lors de l’envoi de votre message. Veuillez réessayer.
Merci ! Votre message a été envoyé.





