Connectez-vous/S’inscrire
Votre e-mail a été envoyé.
Proposed BTS (Paragon Business Park) Taylor Rd Industriel/Logistique | 1 312 m² | À louer | Romeoville, IL 60446

Certaines informations ont été traduites automatiquement.
Informations principales
- Idéalement situé le long de W Taylor Rd.
- Situé à l'entrée du parc d'affaires Paragon.
Caractéristiques
Hauteur libre
6,10 m
Accès plain-pied
4
Portes de quai de chargement extérieures
4
Places de stationnement standard
31
Tous les espace disponibles(1)
Afficher les loyers en
- Espace
- Surface
- Durée
- Loyer
- Type de bien
- Aménagement
- Disponible
Customize this space to suit your needs.
- Espace en excellent état
| Espace | Surface | Durée | Loyer | Type de bien | Aménagement | Disponible |
| 1er étage | 1 312 m² | Négociable | Sur demande Sur demande Sur demande Sur demande | Industriel/Logistique | Meublé et équipé | 01/08/2026 |
1er étage
| Surface |
| 1 312 m² |
| Durée |
| Négociable |
| Loyer |
| Sur demande Sur demande Sur demande Sur demande |
| Type de bien |
| Industriel/Logistique |
| Aménagement |
| Meublé et équipé |
| Disponible |
| 01/08/2026 |
1 sur 1
Vidéos
Visite extérieure 3D Matterport
Visite 3D
Photos
Street view
Rue
Carte
1er étage
| Surface | 1 312 m² |
| Durée | Négociable |
| Loyer | Sur demande |
| Type de bien | Industriel/Logistique |
| Aménagement | Meublé et équipé |
| Disponible | 01/08/2026 |
Customize this space to suit your needs.
- Espace en excellent état
Aperçu du bien
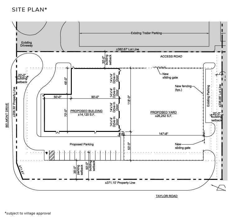
Bâtiment de 14 120 pieds carrés proposé pour convenir à un bâtiment avec une cour de 26 252 pieds carrés.
Faits sur l’installation entrepôt
Surface de l’immeuble
1 312 m²
Surface du lot
0,86 ha
Année de construction
2027
Développement et livraisons
Métal
Zonage
I - Industriel
1 1
Somewhat walkable
30/100
Exceptionally drivable
90/100
Fairly bikeable
50/100
1 sur 2
Vidéos
Visite extérieure 3D Matterport
Visite 3D
Photos
Street view
Rue
Carte
1 sur 1
Présenté par
Proposed BTS (Paragon Business Park) | Taylor Rd
Vous êtes déjà membre ? Connectez-vous
Hum, une erreur s’est produite lors de l’envoi de votre message. Veuillez réessayer.
Merci ! Votre message a été envoyé.


