Votre e-mail a été envoyé.
Harpur Crewe House Swarkestone Rd Local commercial | 143 m² | À louer | Derby DE73 6UD



Certaines informations ont été traduites automatiquement.
Informations principales
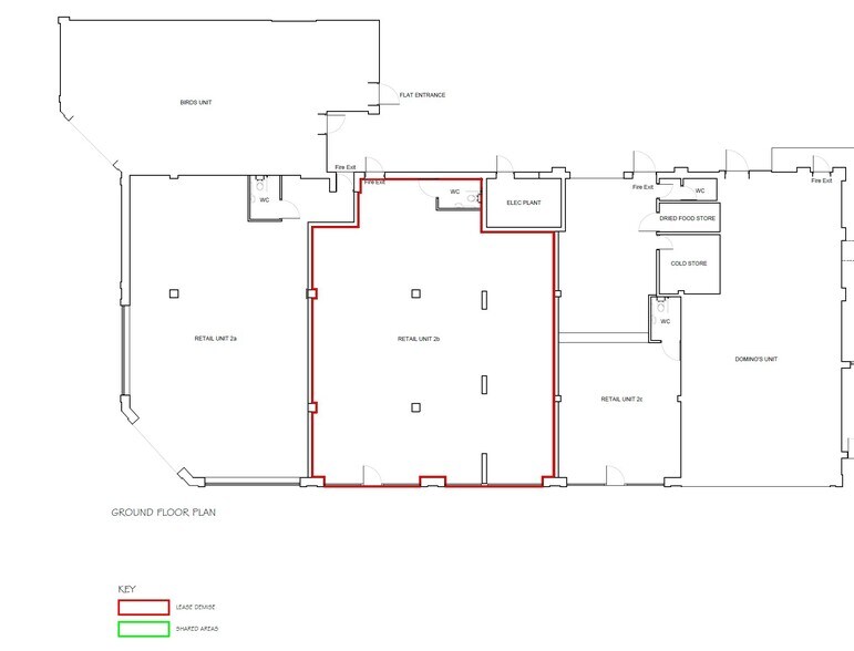
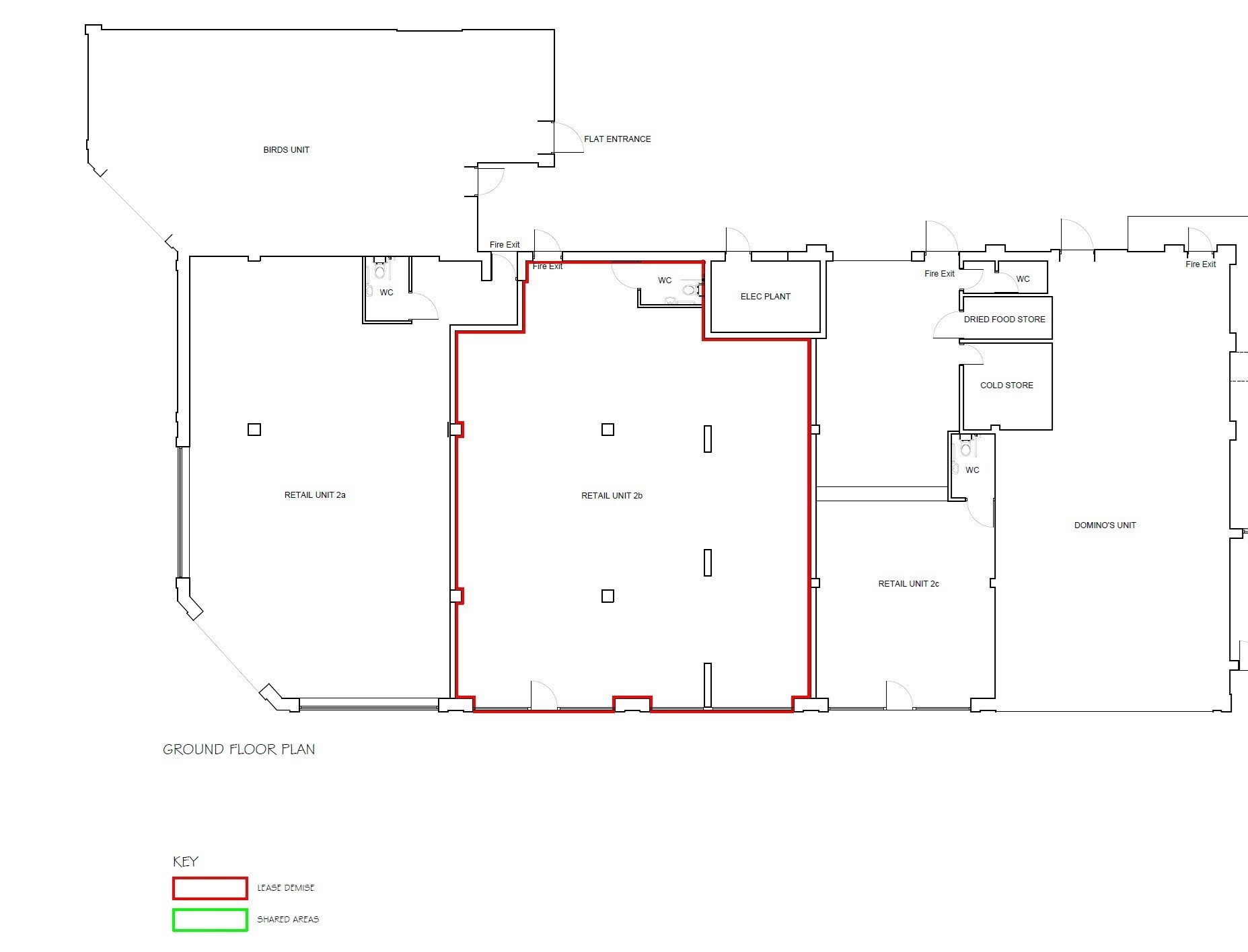
- Part of former Co-Op food store.
- Lat remaining unit.
- Neighbouring Birds and Domino's Pizza.
- Works underway to sub divide into 3 new units.
- Well located in neighbourhood centre.
- Suitable for a variety of high street uses.
Disponibilité de l’espace (1)
Afficher le tarif en
- Espace
- Surface
- Durée
- Loyer
- Type
| Espace | Surface | Durée | Loyer | Type de loyer | ||
| RDC, bureau 2B | 143 m² | Négociable | 257,14 € /m²/an 21,43 € /m²/mois 36 885 € /an 3 074 € /mois | À déterminer |
RDC, bureau 2B
The units are available individually or combined. See plan attached. Rents are based on £13 per sq ft. The units are available by way of a new lease for a term of years to be agreed.
- Classe d’utilisation : E
- Contigu et aligné avec d’autres locaux commerciaux
- Suitable for a range of uses
- Excellent position within centre
- High profile location
Types de service
Le montant du loyer et le type de service que l’occupant (locataire) est tenu de payer au propriétaire (bailleur) sur la durée du bail sont négociés avant la signature du bail par les deux parties. Le type de service varie en fonction des services fournis. Contacter le broker chargé de l’annonce pour bien comprendre les coûts associés ou les dépenses supplémentaires pour chaque type de service.
1. Toutes réparations et assurance: Toutes les obligations de réparation et d’assurance du bien (ou de leur part de bien) à l’interne et à l’externe.
2. Réparations internes seulement: L'occupant est responsable des réparations internes seulement. Le propriétaire est responsable des réparations structurelles et externes.
3. Réparations internes et assurance: L'occupant est responsable des réparations internes et de l'assurance pour les parties internes du bien seulement. Le propriétaire est responsable des réparations structurelles et externes.
4. Négociable ou à déterminer: Cette option est utilisée lorsque le contact de location ne fournit pas le type de service.
Sélectionner des occupants à Harpur Crewe House
- Occupant
- Description
- GB localisations
- Couverture
- Birds Bakery
- Boulangerie
- 59
- Régional
- Co-op
- Supermarché
- 3 827
- National
| Occupant | Description | GB localisations | Couverture |
| Birds Bakery | Boulangerie | 59 | Régional |
| Co-op | Supermarché | 3 827 | National |
Informations sur l’immeuble
| Espace total disponible | 143 m² | Surface commerciale utile | 413 m² |
| Type de bien | Local commercial | Année de construction | 1980 |
| Espace total disponible | 143 m² |
| Type de bien | Local commercial |
| Surface commerciale utile | 413 m² |
| Année de construction | 1980 |
À propos du bien
The property is situated in a prominent position at the corner of Swarkestone Road (A514) and High Street, Chellaston to the south of Derby and in close proximity of the Derby Southern Bypass (A50). The property forms much of the ground floor of the overall building known as Harpur Crewe House. Other retailers are Birds the Bakers and George’s Fish & Chips. Opposite adjacent to the property is a parade of shop units, all occupied by local businesses. Short distance further is a Tesco Express store and a short distance away in the opposite direction is a Lidl Supermarket.
Présenté par
Harpur Crewe House | Swarkestone Rd
Hum, une erreur s’est produite lors de l’envoi de votre message. Veuillez réessayer.
Merci ! Votre message a été envoyé.



