Votre e-mail a été envoyé.
 
                                                    
					94370 Sucy-en-Brie Bureau | 487-725 m² | 1 827 000 €-2 718 375 € par lot | À vendre



 
                                
            DESCRIPTION
CO EXCLUSIVITE- Située dans la zone d'activité "Les Portes de SUCY" à Sucy-en-Brie, à proximité immédiate du RER A station "Sucy-Bonneuil", Immprove vous offre une opportunité d'investissement dans un immeuble neuf en R+4. Nous mettons en vente des surfaces de bureaux d'une superficie totale de 3 272 m² non divisibles.Ces locaux sont accessibles par un ascenseur adapté aux Personnes à Mobilité Réduite (PMR), garantissant ainsi l'accessibilité pour tous. De plus, ils seront livrés aménagés prêts à accueillir votre activité professionnelle. Pour le confort de vos employés et visiteurs, plusieurs places de stationnement pour voitures et vélos seront également disponibles sur ce programme. La livraison de ces espaces est prévue pour 2026, vous permettant de planifier votre investissement avec anticipation. Pour de plus amples informations sur l'achat de ces bureaux, leurs caractéristiques spécifiques, ou pour discuter des détails de la Vente en l'État Futur d'Achèvement (VEFA), n'hésitez pas à contacter Immprove, l'agence immobilière spécialisée dans cette offre. Notre équipe est à votre disposition pour répondre à toutes vos questions et vous accompagner dans l'acquisition de votre espace professionnel.
INFORMATIONS SUR L’IMMEUBLE
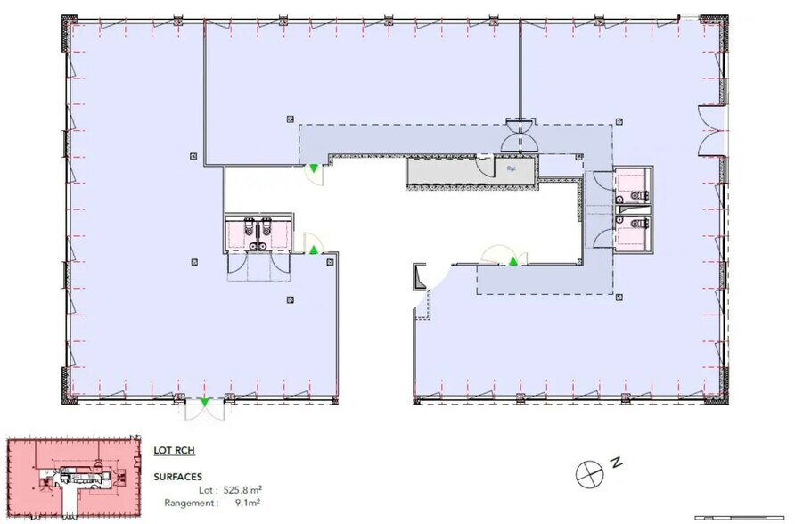
| Prix | 1 827 000 € – 2 718 375 € | Nb de lots | 5 | 
| Surface du lot | 487 - 725 m² | Type de bien | Bureau | 
| Prix | 1 827 000 € – 2 718 375 € | 
| Surface du lot | 487 - 725 m² | 
| Nb de lots | 5 | 
| Type de bien | Bureau | 
5 LOTS DISPONIBLES
| Surface du lot | 613 m² | Usage du lot en coprop. | Bureau | 
| Prix | 2 300 625 € | Type de vente | Investissement | 
| Prix par m² | 3 750,37 € | 
| Surface du lot | 613 m² | 
| Prix | 2 300 625 € | 
| Prix par m² | 3 750,37 € | 
| Usage du lot en coprop. | Bureau | 
| Type de vente | Investissement | 
| Surface du lot | 724 m² | Usage du lot en coprop. | Bureau | 
| Prix | 2 713 500 € | Type de vente | Investissement | 
| Prix par m² | 3 750,37 € | 
| Surface du lot | 724 m² | 
| Prix | 2 713 500 € | 
| Prix par m² | 3 750,37 € | 
| Usage du lot en coprop. | Bureau | 
| Type de vente | Investissement | 
| Surface du lot | 724 m² | Usage du lot en coprop. | Bureau | 
| Prix | 2 713 500 € | Type de vente | Investissement | 
| Prix par m² | 3 750,37 € | 
| Surface du lot | 724 m² | 
| Prix | 2 713 500 € | 
| Prix par m² | 3 750,37 € | 
| Usage du lot en coprop. | Bureau | 
| Type de vente | Investissement | 
| Surface du lot | 725 m² | Usage du lot en coprop. | Bureau | 
| Prix | 2 718 375 € | Type de vente | Investissement | 
| Prix par m² | 3 750,36 € | 
| Surface du lot | 725 m² | 
| Prix | 2 718 375 € | 
| Prix par m² | 3 750,36 € | 
| Usage du lot en coprop. | Bureau | 
| Type de vente | Investissement | 
| Surface du lot | 487 m² | Usage du lot en coprop. | Bureau | 
| Prix | 1 827 000 € | Type de vente | Investissement | 
| Prix par m² | 3 750,13 € | 
| Surface du lot | 487 m² | 
| Prix | 1 827 000 € | 
| Prix par m² | 3 750,13 € | 
| Usage du lot en coprop. | Bureau | 
| Type de vente | Investissement | 
Présenté par
 
"94370 Sucy-en-Brie"
Hum, une erreur s’est produite lors de l’envoi de votre message. Veuillez réessayer.
Merci ! Votre message a été envoyé.
