Votre e-mail a été envoyé.
Certaines informations ont été traduites automatiquement.
Informations principales sur la sous-location
- Good Road Connections
- Planning Application for 6 Padel Courts
- Physiotherapist On Site
Disponibilité de l’espace (1)
Afficher le tarif en
- Espace
- Surface
- Durée
- Loyer
- Type
| Espace | Surface | Durée | Loyer | Type de loyer | ||
| 1er étage | 122 m² | Négociable | 151,19 € /m²/an 12,60 € /m²/mois 18 442 € /an 1 537 € /mois | À déterminer |
1er étage
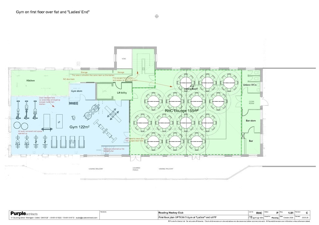
First floor gymnasium space to let within Reading Cricket & Hockey Club which has approximately 1,000 members. The facilities include changing rooms, showers and ample free parking. There will be a physiotherapist on site and a planning application has been submitted for 6 padel courts. Sports, wellbeing and health related businesses only. There is an option for tenant to run the club catering and bar. Also, there is an additional space of up to 1,669 sq ft available by separate arrangement.
- Classe d’utilisation : E
- Espace en sous-location disponible auprès de l’occupant actuel
- L’espace est une parcelle indépendante de ce bien
- Climatisation centrale
- Douches
- Facilites Include Changing Rooms
- Onsite Showers
- Ample Free Parking
Types de service
Le montant du loyer et le type de service que l’occupant (locataire) est tenu de payer au propriétaire (bailleur) sur la durée du bail sont négociés avant la signature du bail par les deux parties. Le type de service varie en fonction des services fournis. Contacter le broker chargé de l’annonce pour bien comprendre les coûts associés ou les dépenses supplémentaires pour chaque type de service.
1. Toutes réparations et assurance: Toutes les obligations de réparation et d’assurance du bien (ou de leur part de bien) à l’interne et à l’externe.
2. Réparations internes seulement: L'occupant est responsable des réparations internes seulement. Le propriétaire est responsable des réparations structurelles et externes.
3. Réparations internes et assurance: L'occupant est responsable des réparations internes et de l'assurance pour les parties internes du bien seulement. Le propriétaire est responsable des réparations structurelles et externes.
4. Négociable ou à déterminer: Cette option est utilisée lorsque le contact de location ne fournit pas le type de service.
Informations sur l’immeuble
| Espace total disponible | 122 m² | Surface commerciale utile | 277 m² |
| Type de bien | Local commercial | Année de construction | 1940 |
| Sous-type de bien | Club de santé | Ratio de stationnement | 2,33/1 000 m² |
| Espace total disponible | 122 m² |
| Type de bien | Local commercial |
| Sous-type de bien | Club de santé |
| Surface commerciale utile | 277 m² |
| Année de construction | 1940 |
| Ratio de stationnement | 2,33/1 000 m² |
À propos du bien
Reading Cricket & Hockey Club is located on Sonning Lane just off the A4 Bath road, 7 miles south of Henley and 4 miles north of Reading, Bracknell is 11 miles east. The M4 motorway (junction10) is just a 10 minute drive.
- Climatisation
Principaux commerces à proximité
Présenté par
Reading Cricket & Hockey Club | Sonning Lane
Hum, une erreur s’est produite lors de l’envoi de votre message. Veuillez réessayer.
Merci ! Votre message a été envoyé.






