Votre e-mail a été envoyé.
AllianceCalifornia Northgate San Bernardino, CA 92408 Espace disponible | 5 832–45 754 m² | Industriel/Logistique


Certaines informations ont été traduites automatiquement.
Informations principales sur le parc
- Centre de commerce et de logistique certifié LEED
Faits sur le parc
| Espace total disponible | 45 754 m² | Type de parc | Parc industriel |
| Espace total disponible | 45 754 m² |
| Type de parc | Parc industriel |
Tous les espaces disponibles(4)
Afficher les loyers en
- Espace
- Surface
- Durée
- Loyer
- Type de bien
- Aménagement
- Disponible
±3,000 SF spec office. 30 FC LED speed bay lighting; 1 FC LED warehouse lighting. 2,000 amp service; (277/480-volt, 3-phase, 4-wire).
- Comprend 279 m² d’espace de bureau dédié
- 17 quais de chargement
- Hauteur libre de 36 pieds
- Espacement entre les colonnes de 56 pi x 60 pi ; 60 pi dans les aires de rassemblement
- Dalle de construction : 7 pouces d'épaisseur ; 4 000 psi
- 1 accès plain-pied
- Bureaux cloisonnés
- Terrain pour camions de 135 pieds
- 17 portes de quai ; 8 niveleurs de quai
- Système d'arrosage ESFR
| Espace | Surface | Durée | Loyer | Type de bien | Aménagement | Disponible |
| 1er étage | 9 232 m² | Négociable | Sur demande Sur demande Sur demande Sur demande | Industriel/Logistique | - | Maintenant |
SEC 3rd St and Tippecanoe Ave - 1er étage
- Espace
- Surface
- Durée
- Loyer
- Type de bien
- Aménagement
- Disponible
±3,266 SF spec office. 30 FC LED speed bay lighting; 1 FC LED warehouse lighting. 1,200 amp service; (277/480-volt, 3-phase, 4-wire).
- Comprend 303 m² d’espace de bureau dédié
- 27 quais de chargement
- Hauteur libre de 36 pieds
- Espacement entre les colonnes de 56 pi x 60 pi ; 60 pi dans les aires de rassemblement
- Dalle de construction : 7 pouces d'épaisseur ; 4 000 psi
- 2 accès plain-pied
- Bureaux cloisonnés
- Terrain pour camions de 135 pieds
- 27 - portes de quai
- Système d'arrosage ESFR
| Espace | Surface | Durée | Loyer | Type de bien | Aménagement | Disponible |
| 1er étage | 13 636 m² | Négociable | Sur demande Sur demande Sur demande Sur demande | Industriel/Logistique | - | Maintenant |
1301 E 3rd St - 1er étage
- Espace
- Surface
- Durée
- Loyer
- Type de bien
- Aménagement
- Disponible
±3,266 SF spec office. 30 FC LED speed bay lighting; 1 FC LED warehouse lighting. 800 amp service; (277/480-volt, 3-phase, 4-wire).
- Comprend 303 m² d’espace de bureau dédié
- 9 quais de chargement
- Hauteur libre de 32 pieds
- Espacement entre les colonnes de 52 pi x 60 pi ; 60 pi dans les aires de rassemblement
- Dalle de construction : 6 pouces d'épaisseur ; 4 000 psi
- 2 accès plain-pied
- Bureaux cloisonnés
- Terrain pour camions de 130 pieds
- 9 - portes de quai
- Système d'arrosage ESFR
| Espace | Surface | Durée | Loyer | Type de bien | Aménagement | Disponible |
| 1er étage | 5 832 m² | Négociable | Sur demande Sur demande Sur demande Sur demande | Industriel/Logistique | - | Maintenant |
1480 E Art Townsend Dr - 1er étage
- Espace
- Surface
- Durée
- Loyer
- Type de bien
- Aménagement
- Disponible
±3,248 SF spec office. 30 FC LED speed bay lighting; 1 FC LED warehouse lighting. 1,200 amp service; (277/480-volt, 3-phase, 4-wire).
- Comprend 302 m² d’espace de bureau dédié
- 26 quais de chargement
- Hauteur libre de 36 pieds
- Espacement entre les colonnes de 56 pi x 60 pi ; 60 pi dans les aires de rassemblement
- Dalle de construction : 7 pouces d'épaisseur ; 4 000 psi
- 2 accès plain-pied
- Bureaux cloisonnés
- Terrain pour camions de 135 pieds
- 26 - portes de quai
- Système d'arrosage ESFR
| Espace | Surface | Durée | Loyer | Type de bien | Aménagement | Disponible |
| 1er étage | 17 054 m² | Négociable | Sur demande Sur demande Sur demande Sur demande | Industriel/Logistique | - | Maintenant |
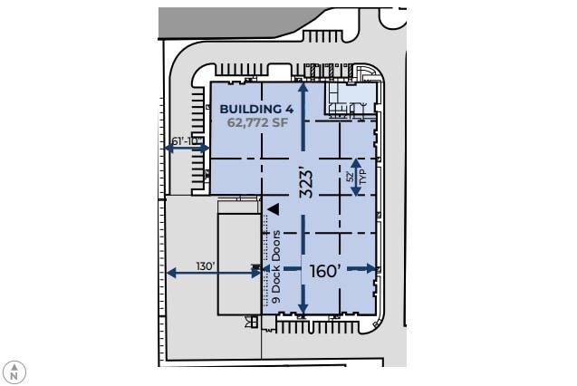
108 N Del Rosa Dr - 1er étage
SEC 3rd St and Tippecanoe Ave - 1er étage
| Surface | 9 232 m² |
| Durée | Négociable |
| Loyer | Sur demande |
| Type de bien | Industriel/Logistique |
| Aménagement | - |
| Disponible | Maintenant |
±3,000 SF spec office. 30 FC LED speed bay lighting; 1 FC LED warehouse lighting. 2,000 amp service; (277/480-volt, 3-phase, 4-wire).
- Comprend 279 m² d’espace de bureau dédié
- 1 accès plain-pied
- 17 quais de chargement
- Bureaux cloisonnés
- Hauteur libre de 36 pieds
- Terrain pour camions de 135 pieds
- Espacement entre les colonnes de 56 pi x 60 pi ; 60 pi dans les aires de rassemblement
- 17 portes de quai ; 8 niveleurs de quai
- Dalle de construction : 7 pouces d'épaisseur ; 4 000 psi
- Système d'arrosage ESFR
1301 E 3rd St - 1er étage
| Surface | 13 636 m² |
| Durée | Négociable |
| Loyer | Sur demande |
| Type de bien | Industriel/Logistique |
| Aménagement | - |
| Disponible | Maintenant |
±3,266 SF spec office. 30 FC LED speed bay lighting; 1 FC LED warehouse lighting. 1,200 amp service; (277/480-volt, 3-phase, 4-wire).
- Comprend 303 m² d’espace de bureau dédié
- 2 accès plain-pied
- 27 quais de chargement
- Bureaux cloisonnés
- Hauteur libre de 36 pieds
- Terrain pour camions de 135 pieds
- Espacement entre les colonnes de 56 pi x 60 pi ; 60 pi dans les aires de rassemblement
- 27 - portes de quai
- Dalle de construction : 7 pouces d'épaisseur ; 4 000 psi
- Système d'arrosage ESFR
1480 E Art Townsend Dr - 1er étage
| Surface | 5 832 m² |
| Durée | Négociable |
| Loyer | Sur demande |
| Type de bien | Industriel/Logistique |
| Aménagement | - |
| Disponible | Maintenant |
±3,266 SF spec office. 30 FC LED speed bay lighting; 1 FC LED warehouse lighting. 800 amp service; (277/480-volt, 3-phase, 4-wire).
- Comprend 303 m² d’espace de bureau dédié
- 2 accès plain-pied
- 9 quais de chargement
- Bureaux cloisonnés
- Hauteur libre de 32 pieds
- Terrain pour camions de 130 pieds
- Espacement entre les colonnes de 52 pi x 60 pi ; 60 pi dans les aires de rassemblement
- 9 - portes de quai
- Dalle de construction : 6 pouces d'épaisseur ; 4 000 psi
- Système d'arrosage ESFR
108 N Del Rosa Dr - 1er étage
| Surface | 17 054 m² |
| Durée | Négociable |
| Loyer | Sur demande |
| Type de bien | Industriel/Logistique |
| Aménagement | - |
| Disponible | Maintenant |
±3,248 SF spec office. 30 FC LED speed bay lighting; 1 FC LED warehouse lighting. 1,200 amp service; (277/480-volt, 3-phase, 4-wire).
- Comprend 302 m² d’espace de bureau dédié
- 2 accès plain-pied
- 26 quais de chargement
- Bureaux cloisonnés
- Hauteur libre de 36 pieds
- Terrain pour camions de 135 pieds
- Espacement entre les colonnes de 56 pi x 60 pi ; 60 pi dans les aires de rassemblement
- 26 - portes de quai
- Dalle de construction : 7 pouces d'épaisseur ; 4 000 psi
- Système d'arrosage ESFR
Plan du site
Vue d’ensemble du parc
AllianceCalifornia est le centre commercial et logistique par excellence au cœur de la Californie du Sud, qui offre aux entreprises l'espace le plus compétitif au service de l'Inland Empire. Avec un accès inégalé au transport aérien, ferroviaire et interétatique, c'est la destination idéale pour les entreprises qui cherchent à améliorer leurs opérations. L'intersection de l'I-10, de l'I-215 et de l'I-210 fournit un réseau de transport robuste, facilitant le transport de marchandises pour les utilisateurs potentiels. Les installations Northgate d'AllianceCalifornia sont situées à proximité de l'aéroport international de San Bernardino, offrant un accès rapide aux restaurants, aux points de vente et aux commodités de premier ordre pour les locataires. L'économie de l'Inland Empire est classée parmi les principales économies du pays. La MSA Riverside-San Bernardino est la troisième région la plus peuplée de Californie et la 13e du pays, comptant plus de 4,6 millions d'habitants et de nombreuses entreprises prospères. Entourée de locataires corporatifs de premier plan et d'une population importante, Northgate est bien placée pour bénéficier de la croissance continue de la région.
Présenté par
AllianceCalifornia Northgate | San Bernardino, CA 92408
Hum, une erreur s’est produite lors de l’envoi de votre message. Veuillez réessayer.
Merci ! Votre message a été envoyé.












