Connectez-vous/S’inscrire
Votre e-mail a été envoyé.
26190 Sainte-Eulalie-en-Royans Immeuble | Terrain | À vendre



NOTES SUR LA VENTE
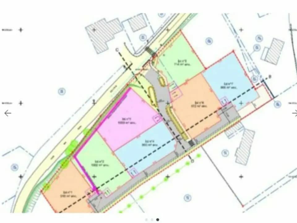
Nouvelle zone d'activités offrant 7 lots destinés à l'artisanat et aux professions libérales, avec obligation de construire. Voirie 5,5 m, cheminement piéton, bassin pluvial, réseaux eau/assainissement/télécoms/électricité, éclairage public et espaces végétalisés. Cadre paysager de qualité, au pied des Grands Goulets. Commune classée ZFRR, ouvrant droit, sous conditions, à des exonérations fiscales et sociales.
Surfaces : 7 lots de 714 à 1 009 m²
Prix : À partir de 35 Euros/m² HT
Voirie dimensionnée, réseau complet (eau, élec., télécoms, éclairage), bassin de rétention, cheminement piéton, espaces verts, cadre paysager qualitatif, constructibilité encadrée par la ZA.
Surfaces : 7 lots de 714 à 1 009 m²
Prix : À partir de 35 Euros/m² HT
Voirie dimensionnée, réseau complet (eau, élec., télécoms, éclairage), bassin de rétention, cheminement piéton, espaces verts, cadre paysager qualitatif, constructibilité encadrée par la ZA.
INFORMATIONS SUR L’IMMEUBLE
| Type de vente | Propriétaire occupant | Type de bien | Terrain |
| Type de vente | Propriétaire occupant |
| Type de bien | Terrain |
1 1
1 sur 4
VIDÉOS
VISITE EXTÉRIEURE 3D MATTERPORT
VISITE 3D
PHOTOS
STREET VIEW
RUE
CARTE
1 sur 1
Présenté par
Pôle Implantation Entreprises
"26190 Sainte-Eulalie-en-Royans"
Vous êtes déjà membre ? Connectez-vous
Hum, une erreur s’est produite lors de l’envoi de votre message. Veuillez réessayer.
Merci ! Votre message a été envoyé.

