Votre e-mail a été envoyé.
95310 SAINT-OUEN-L'AUMONE Immeuble | 1 453 127 pi² | Terrain | À vendre

Informations principales sur l'investissement
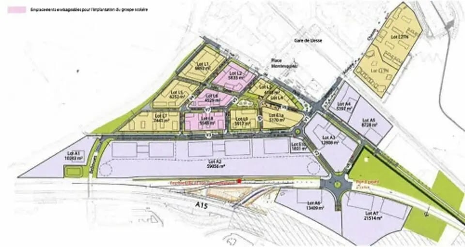
- Foncier économique de 13,5 ha divisé en 7 lots, avec un prix de vente attractif de 130?€/m² HT.
- Implantation dans une ZAC connectée, mixte et dynamique, au cœur d’un écosystème regroupant de nombreux acteurs industriels et tertiaires.
- Constructibilité totalement flexible?: aucune limite d’emprise au sol ni de hauteur, viabilisation prévue à mi-2024.
Notes sur la vente
Informations sur l’immeuble
| Type de vente | Propriétaire occupant | Type de bien | Terrain |
| Type de vente | Propriétaire occupant |
| Type de bien | Terrain |
À propos SAINT-OUEN-L'AUMONE, 95310
Cet ensemble foncier s’inscrit dans un territoire performant, directement connecté aux principaux axes de transport et situé en pied de gare, favorisant l’accessibilité pour les salariés comme pour les partenaires économiques. La ZAC, d’une superficie globale de 45,6 hectares, a été pensée pour accueillir des activités variées telles que services tertiaires, sièges sociaux industriels, bureaux d’études, centres de R&D ou unités de production. Les terrains bénéficient d’une constructibilité sans contrainte d’emprise au sol ni de hauteur maximale, offrant une grande liberté architecturale et programmatique. À proximité immédiate, un écosystème industriel et technologique est déjà présent, regroupant de grandes entreprises reconnues, renforçant l’attractivité et le potentiel de synergies pour les futurs implantés. Le site est raccordé en eau et s’inscrit dans une dynamique économique structurée par des parcs d’activités voisins particulièrement actifs.
Présenté par
Pôle Implantation Entreprises
"95310 SAINT-OUEN-L'AUMONE"
Hum, une erreur s’est produite lors de l’envoi de votre message. Veuillez réessayer.
Merci ! Votre message a été envoyé.
