Votre e-mail a été envoyé.
Queue De Sartan Local d’activités | 377-765 m² | 546 650 €-1 147 500 € par lot | À vendre | 83870 Signes



DESCRIPTION
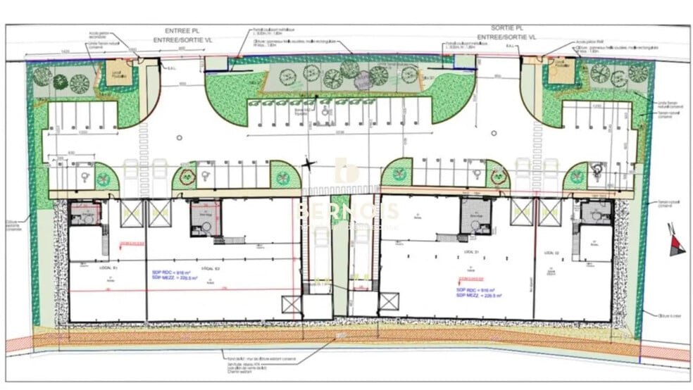
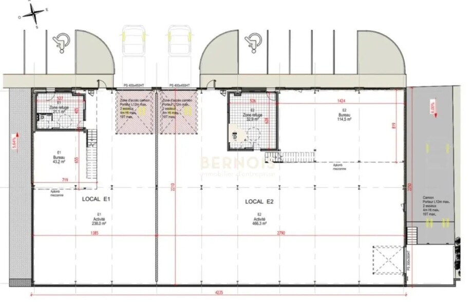
Situé dans la Zone d'activités de Signes - Circuit Paul Ricard Le Castellet, faisant partie d'un ensemble industriel de très grande qualité Technoparc La Queue de Sartan (avec trois bâtiments déjà construits et commercialisés et un hôtel 3 Etoiles "Adonis Le Castellet") et situé dans le Bâtiment E à construire de 1 142 m² , disponibilité de 2 entrepôts / locaux d'activités . Lot E1 de 377 m² composé d'une RDC de 302 m² et 75 m² de mezzanine avec 7 places de parking affectées. Lot E2 de 765 m² composé d'un RC de 614 m² et 151 m² de mezzanine avec 14 places de parking affectées. Dallage industriel en RDC de 2T/m² Mezzanine : 350 kg/m² Hauteur sous plafond : 6 à 6.8 m Hauteur sous mezzanine : 2.7 m Chauffage aérotherme électrique Eclairage Full LED 1 Bloc sanitaire : 1 WC PMR HSP : 6 à 6.8 m Mezzanine : 350 kg/m² 1 Accès PL de PP avec porte sectionnelle à doubles parois (3.15 x 3.55 m) avec commande manuelle par lot 1 Quai uniquement pour le lot E2 7 places de parkings pour le lot E1 et 14 places pour le lot E2 (3 500 euros HT/place) Portail copropriété automatique Immeuble indépendant Ossature : Métallique Murs périmétriques : Double bardage Couverture : Bac acier isolé Situation/Transports : A50 Sortie 11 : Signes - Le Castellet Prix de vente parking : 3 500 euros HT HD l'unité
INFORMATIONS SUR L’IMMEUBLE
| Prix | 546 650 € – 1 147 500 € | Nb de lots | 2 |
| Surface du lot | 377 - 765 m² | Type de bien | Industriel/Logistique |
| Prix | 546 650 € – 1 147 500 € |
| Surface du lot | 377 - 765 m² |
| Nb de lots | 2 |
| Type de bien | Industriel/Logistique |
2 LOTS DISPONIBLES
| Surface du lot | 377 m² | Usage du lot en coprop. | Local d’activités |
| Prix | 546 650 € | Type de vente | Propriétaire occupant |
| Prix par m² | 1 450,36 € |
| Surface du lot | 377 m² |
| Prix | 546 650 € |
| Prix par m² | 1 450,36 € |
| Usage du lot en coprop. | Local d’activités |
| Type de vente | Propriétaire occupant |
| Surface du lot | 765 m² | Usage du lot en coprop. | Local d’activités |
| Prix | 1 147 500 € | Type de vente | Propriétaire occupant |
| Prix par m² | 1 500,07 € |
| Surface du lot | 765 m² |
| Prix | 1 147 500 € |
| Prix par m² | 1 500,07 € |
| Usage du lot en coprop. | Local d’activités |
| Type de vente | Propriétaire occupant |
Présenté par
BERNOIS IMMOBILIER D’ENTREPRISE - TOULON
Queue De Sartan
Hum, une erreur s’est produite lors de l’envoi de votre message. Veuillez réessayer.
Merci ! Votre message a été envoyé.
