Votre e-mail a été envoyé.
 
                                                    
					77340 Pontault-Combault Local d’activités | 980 m² | À louer



 
                                
            INFORMATIONS PRINCIPALES
- Site clos, sécurisé avec portail électrique
- 20 places de parking VL et connectivité haut débit
- Accès rapide à Paris via A4 et visibilité depuis N104
CARACTÉRISTIQUES
TOUS LES ESPACE DISPONIBLES(1)
Afficher les loyers en
- ESPACE
- SURFACE
- DURÉE
- 
                            
                        LOYER
                            
                                
- TYPE DE BIEN
- ÉTAT
- DISPONIBLE
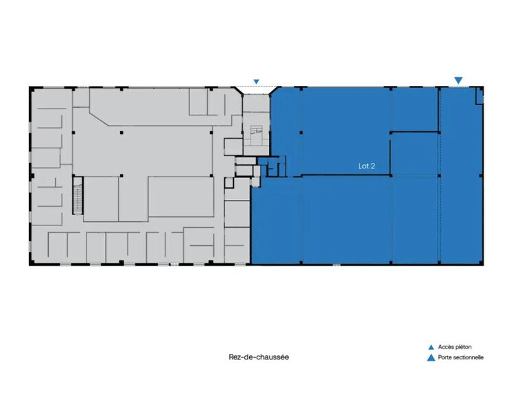
Ce bâtiment indépendant de 980 m² est conçu pour accueillir des activités industrielles ou logistiques. Il offre une hauteur libre de 6 mètres, un accès plain-pied via une porte sectionnelle, ainsi qu’une aire de manœuvre adaptée aux poids lourds. Le site est équipé d’un éclairage LED, d’un sol en béton, de cloisons amovibles et d’une cuisine, garantissant un environnement fonctionnel et modulable. La disponibilité est immédiate, permettant une mise en exploitation rapide.
- Frais d’agence : 15,00 % du loyer annuel
- Dépôt de garantie : 3 mois de loyer
- 1 accès plain-pied
- Plafonds finis: 6 mètres
- Équipements fonctionnels : LED, béton, cuisine
- 
Charges locatives :     0,02 € /m²/an 0,00 € /m²/mois 21,00 € /an 1,75 € /mois
- 
Taxe foncière :     21,94 € /m²/an 1,83 € /m²/mois 21 500 € /an 1 792 € /mois
- Bureaux cloisonnés
- Hauteur libre de 6 m et accès poids lourds
- Disponibilité immédiate pour installation rapide
| Espace | Surface | Durée | Loyer | Type de bien | État | Disponible | 
| - | 980 m² | 3/6/9 | 111,00 € HT-HC/m²/an 9,25 € HT-HC/m²/mois 108 780 € HT-HC/an 9 065 € HT-HC/mois | Local d’activités | - | Maintenant | 
-
| Surface | 
| 980 m² | 
| Durée | 
| 3/6/9 | 
| Loyer | 
| 111,00 € HT-HC/m²/an 9,25 € HT-HC/m²/mois 108 780 € HT-HC/an 9 065 € HT-HC/mois | 
| Type de bien | 
| Local d’activités | 
| État | 
| - | 
| Disponible | 
| Maintenant | 
-
| Surface | 980 m² | 
| Durée | 3/6/9 | 
| Loyer | 111,00 € HT-HC/m²/an | 
| Type de bien | Local d’activités | 
| État | - | 
| Disponible | Maintenant | 
Ce bâtiment indépendant de 980 m² est conçu pour accueillir des activités industrielles ou logistiques. Il offre une hauteur libre de 6 mètres, un accès plain-pied via une porte sectionnelle, ainsi qu’une aire de manœuvre adaptée aux poids lourds. Le site est équipé d’un éclairage LED, d’un sol en béton, de cloisons amovibles et d’une cuisine, garantissant un environnement fonctionnel et modulable. La disponibilité est immédiate, permettant une mise en exploitation rapide.
- Frais d’agence : 15,00 % du loyer annuel
- 
Charges locatives :     0,02 € /m²/an 0,00 € /m²/mois 21,00 € /an 1,75 € /mois
- Dépôt de garantie : 3 mois de loyer
- 
Taxe foncière :     21,94 € /m²/an 1,83 € /m²/mois 21 500 € /an 1 792 € /mois
- 1 accès plain-pied
- Bureaux cloisonnés
- Plafonds finis: 6 mètres
- Hauteur libre de 6 m et accès poids lourds
- Équipements fonctionnels : LED, béton, cuisine
- Disponibilité immédiate pour installation rapide
APERÇU DU BIEN
Implanté sur un site clos et sécurisé, le bâtiment bénéficie d’une excellente visibilité depuis des axes routiers majeurs. Il est situé à proximité immédiate de la Francilienne N104 et de la départementale D361, à seulement 30 minutes de Paris via l’A4. Le portail électrique, les 20 places de stationnement VL et la connectivité internet (ADSL, fibre optique, câblage RJ45) renforcent l’attractivité du site pour les entreprises en quête d’accessibilité et de performance.
INFORMATIONS SUR L’IMMEUBLE
Présenté par
 
"77340 Pontault-Combault"
Hum, une erreur s’est produite lors de l’envoi de votre message. Veuillez réessayer.
Merci ! Votre message a été envoyé.
 
                                        