Votre e-mail a été envoyé.
77340 Pontault-Combault 100–300 m² | À louer
Informations principales
- Ossature métallique
- Facilement accessible
- Bâtiment mixte (activités & bureaux)
Caractéristiques
Tous les espaces disponibles(2)
Afficher les loyers en
- Espace
- Surface
- Durée
-
Loyer
- Type de bien
- Aménagement
- Disponible
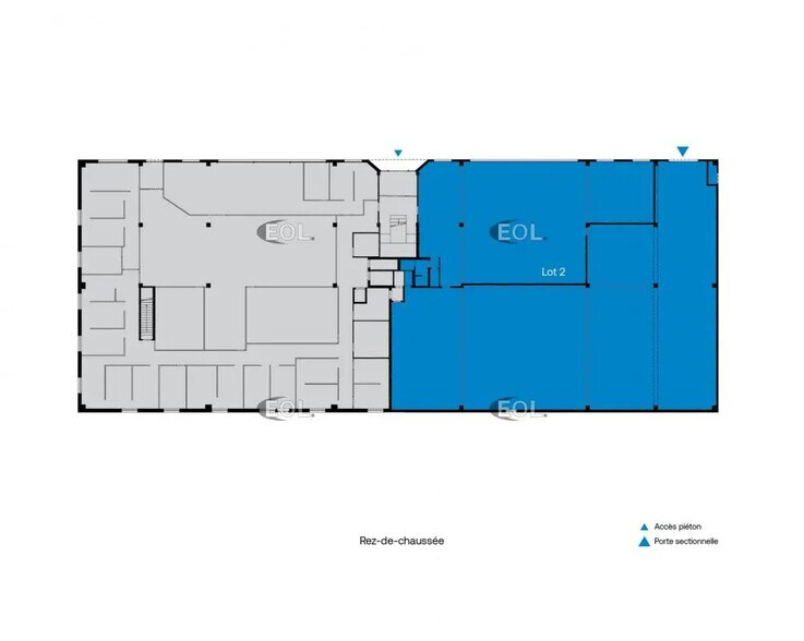
Ce local d’activités développe une surface totale de 300 m², répartie entre 200 m² d'espace d'activités en rez-de-chaussée et 100 m² de bureaux en étage. Les bureaux bénéficient d’un sol en parquet et d’un bon niveau de prestation, avec un système d’alarme et de détection incendie déjà en place. Le bien dispose également de places de parking à disposition, offrant un cadre fonctionnel pour des activités mixtes de production et de gestion.
- Frais d’agence : 15,00 % du loyer annuel
- Système de sécurité
- Bureaux à l'étage
-
Charges locatives : 21,00 € /m²/an 1,75 € /m²/mois 4 200 € /an 350,01 € /mois
- Parking à disposition
- Parquet au sol
Ce local d’activités développe une surface totale de 300 m², répartie entre 200 m² d'espace d'activités en rez-de-chaussée et 100 m² de bureaux en étage. Les bureaux bénéficient d’un sol en parquet et d’un bon niveau de prestation, avec un système d’alarme et de détection incendie déjà en place. Le bien dispose également de places de parking à disposition, offrant un cadre fonctionnel pour des activités mixtes de production et de gestion.
- Frais d’agence : 15,00 % du loyer annuel
- Partiellement aménagé comme Bureau standard
- Convient pour 3 à 9 personnes
- Local d'activités au rez-de-chaussée
-
Charges locatives : 21,00 € /m²/an 1,75 € /m²/mois 2 100 € /an 175,00 € /mois
- Principalement open space
- Parking à disposition
- Parquet au sol
| Espace | Surface | Durée | Loyer | Type de bien | Aménagement | Disponible |
| RDC | 200 m² | 3/6/9 | 111,00 € HT-HC/m²/an 9,25 € HT-HC/m²/mois 22 200 € HT-HC/an 1 850 € HT-HC/mois | Local d’activités | Construction partielle | Maintenant |
| 1er étage | 100 m² | 3/6/9 | 111,00 € HT-HC/m²/an 9,25 € HT-HC/m²/mois 11 100 € HT-HC/an 925,00 € HT-HC/mois | Bureau | Construction partielle | Maintenant |
RDC
| Surface |
| 200 m² |
| Durée |
| 3/6/9 |
|
Loyer
|
| 111,00 € HT-HC/m²/an 9,25 € HT-HC/m²/mois 22 200 € HT-HC/an 1 850 € HT-HC/mois |
| Type de bien |
| Local d’activités |
| Aménagement |
| Construction partielle |
| Disponible |
| Maintenant |
1er étage
| Surface |
| 100 m² |
| Durée |
| 3/6/9 |
|
Loyer
|
| 111,00 € HT-HC/m²/an 9,25 € HT-HC/m²/mois 11 100 € HT-HC/an 925,00 € HT-HC/mois |
| Type de bien |
| Bureau |
| Aménagement |
| Construction partielle |
| Disponible |
| Maintenant |
RDC
| Surface | 200 m² |
| Durée | 3/6/9 |
|
Loyer
|
111,00 € HT-HC/m²/an |
| Type de bien | Local d’activités |
| Aménagement | Construction partielle |
| Disponible | Maintenant |
Ce local d’activités développe une surface totale de 300 m², répartie entre 200 m² d'espace d'activités en rez-de-chaussée et 100 m² de bureaux en étage. Les bureaux bénéficient d’un sol en parquet et d’un bon niveau de prestation, avec un système d’alarme et de détection incendie déjà en place. Le bien dispose également de places de parking à disposition, offrant un cadre fonctionnel pour des activités mixtes de production et de gestion.
- Frais d’agence : 15,00 % du loyer annuel
-
Charges locatives : 21,00 € /m²/an 1,75 € /m²/mois 4 200 € /an 350,01 € /mois
- Système de sécurité
- Parking à disposition
- Bureaux à l'étage
- Parquet au sol
1er étage
| Surface | 100 m² |
| Durée | 3/6/9 |
|
Loyer
|
111,00 € HT-HC/m²/an |
| Type de bien | Bureau |
| Aménagement | Construction partielle |
| Disponible | Maintenant |
Ce local d’activités développe une surface totale de 300 m², répartie entre 200 m² d'espace d'activités en rez-de-chaussée et 100 m² de bureaux en étage. Les bureaux bénéficient d’un sol en parquet et d’un bon niveau de prestation, avec un système d’alarme et de détection incendie déjà en place. Le bien dispose également de places de parking à disposition, offrant un cadre fonctionnel pour des activités mixtes de production et de gestion.
- Frais d’agence : 15,00 % du loyer annuel
-
Charges locatives : 21,00 € /m²/an 1,75 € /m²/mois 2 100 € /an 175,00 € /mois
- Partiellement aménagé comme Bureau standard
- Principalement open space
- Convient pour 3 à 9 personnes
- Parking à disposition
- Local d'activités au rez-de-chaussée
- Parquet au sol
Aperçu du bien
Ce bâtiment d’activités d’environ 2?838 m² s’élève sur deux niveaux et repose sur un terrain de 3?323,98 m². Construit sur une ossature métallique, il offre un bon potentiel de modularité et bénéficie d’une possibilité d’extension. Situé au sein d’une zone d’activités en pleine croissance, il profite d’un emplacement stratégique avec un accès rapide aux grands axes autoroutiers. À seulement 50 minutes de Paris, il constitue une opportunité intéressante pour des entreprises à la recherche d’un site bien desservi, évolutif et adapté aux besoins logistiques ou industriels.
Informations sur l’immeuble
Présenté par
"77340 Pontault-Combault"
Hum, une erreur s’est produite lors de l’envoi de votre message. Veuillez réessayer.
Merci ! Votre message a été envoyé.


