Votre e-mail a été envoyé.
01960 Péronnas | 955 003 € par lot | À vendre



Description
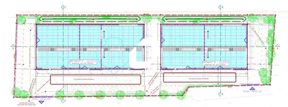
Situé stratégiquement entre Bourg-en-Bresse et la sortie n°7 de l'A40, à Bourg Sud, avec une visibilité exceptionnelle sur la RN75, IMMPROVE vous présente une opportunité rare d'acquisition ou de location d'un parc d'activités neuf. Érigé sur un vaste terrain de 6 277 m², ce complexe se compose de deux bâtiments. Il reste uniquement deux lots sur le bâtiment A totalisant 1 466 m², divisibles à partir de 714 m². . Disponibilité 2e semestre 2024 . Stationnement pré-équipé IRVE . Toiture préconçue centrale photovoltaïque . Proximité autoroute et accès poids lourds . Hauteur libre : 6 mètres . Portes vitrées pour l'accès piéton . Livraison : locaux bruts / fluides en attente Surface RDC : 1200 m² Surface terrain : 6277 Situation/Transports : Route N°7 Bourg-Sud à 5 min Les parkings sont inclus dans le prix de vente Conditions particulières à la vente : Les parkings sont inclus dans le prix de vente
Informations sur l’immeuble
| Prix | 955 003 € | Surface totale de l’immeuble | 1 466 m² |
| Surface du lot | 114 - 600 m² | Type de bien | Local d'activités |
| Nb de lots | 4 |
| Prix | 955 003 € |
| Surface du lot | 114 - 600 m² |
| Nb de lots | 4 |
| Surface totale de l’immeuble | 1 466 m² |
| Type de bien | Local d'activités |
4 Lots disponibles
| Surface du lot | 114 m² | Type de vente | Propriétaire occupant |
| Usage du lot en coprop. | Bureau |
| Surface du lot | 114 m² |
| Usage du lot en coprop. | Bureau |
| Type de vente | Propriétaire occupant |
| Surface du lot | 152 m² | Type de vente | Propriétaire occupant |
| Usage du lot en coprop. | Bureau |
| Surface du lot | 152 m² |
| Usage du lot en coprop. | Bureau |
| Type de vente | Propriétaire occupant |
| Surface du lot | 600 m² | Type de vente | Propriétaire occupant |
| Usage du lot en coprop. | Local d’activités |
| Surface du lot | 600 m² |
| Usage du lot en coprop. | Local d’activités |
| Type de vente | Propriétaire occupant |
| Surface du lot | 600 m² | Type de vente | Propriétaire occupant |
| Usage du lot en coprop. | Local d’activités |
| Surface du lot | 600 m² |
| Usage du lot en coprop. | Local d’activités |
| Type de vente | Propriétaire occupant |
Présenté par
"01960 Péronnas"
Hum, une erreur s’est produite lors de l’envoi de votre message. Veuillez réessayer.
Merci ! Votre message a été envoyé.
