Votre e-mail a été envoyé.
Park & Beaufort Development Opportunity Park Street Lot | Résidentiel | 0,54 ha | À vendre | 473 716 € | Columbia, SC 29201



Certaines informations ont été traduites automatiquement.
Informations principales sur l'investissement
- Development Opportunity
- Adjacent to planned greenway
- Prime Downtown Location
Résumé analytique
Informations sur l’immeuble
1 Lot disponible
Lot
| Prix | 473 716 € | Surface du lot | 0,54 ha |
| Prix par ha | 880 132,92 € |
| Prix | 473 716 € |
| Prix par ha | 880 132,92 € |
| Surface du lot | 0,54 ha |
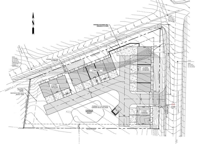
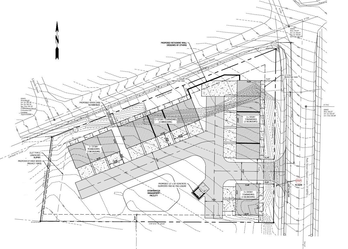
This parcel is located the intersection of Park Street and Beaufort Street in the desirable Earlewood area of downtown Columbia.
Description
Prime development opportunity in downtown Columbia. This corner parcel is in close proximity to the Central Business District, Bull Street mixed-use development, the Vista entertainment district, State House and the University of South Carolina. The site is zoned RM-2, which allows for single-family homes, duplexes, townhouses and apartments. There is no maximum density for townhomes and the site would allow up to 22 units for multi-family. Existing concept plans show a 15 unit townhome development or a 17 unit townhome development. Some preliminary approvals have been secured. Water and sewer service are available from the City of Columbia. No re-zoning required for development. See attached sales package and contact agent for more information.
Taxes foncières
| Numéro de parcelle | 09109-20-13 | Évaluation des aménagements | 431 € |
| Évaluation du terrain | 56 432 € | Évaluation totale | 56 863 € |
Taxes foncières
Présenté par
Park & Beaufort Development Opportunity | Park Street
Hum, une erreur s’est produite lors de l’envoi de votre message. Veuillez réessayer.
Merci ! Votre message a été envoyé.
