Votre e-mail a été envoyé.
Brannams Campus Oakwood Close Local commercial | 1 030 m² | À louer | Barnstaple EX31 3NJ



Certaines informations ont été traduites automatiquement.
Informations principales
- Prime Location
- EV charging
- The site will benefit form a new surface to the car park
- There will be new soft and hard landscaping
Disponibilité de l’espace (1)
Afficher le tarif en
- Espace
- Surface
- Durée
- Loyer
- Type
| Espace | Surface | Durée | Loyer | Type de loyer | ||
| RDC, bureau 003 | 1 030 m² | 15 Ans | 111,95 € /m²/an 9,33 € /m²/mois 115 266 € /an 9 605 € /mois | Toutes réparations et assurance |
RDC, bureau 003
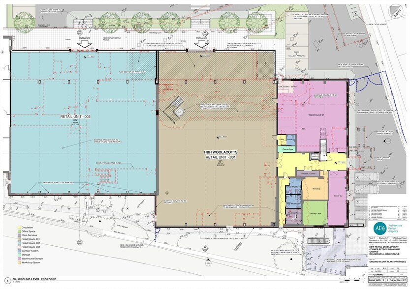
To be constructed, a 11,073 sq ft unit that forms part of a redevelopment of a former training college. The available premises is identified as Unit 003 on the adjacent images. The accommodation is available by way of a new 15-year lease, drawn on equivalent full repairing and insuring terms with a contribution to service charge for the maintenance of the common parts. Quoting rent at £100,000 PA.
- Classe d’utilisation : E
- Contigu et aligné avec d’autres locaux commerciaux
- Entreposage sécurisé
- Toilettes incluses dans le bail
- Newly created retail unit
- New full height glazed entrance
- Glazed canopy
- Class E(a) Use
Types de service
Le montant du loyer et le type de service que l’occupant (locataire) est tenu de payer au propriétaire (bailleur) sur la durée du bail sont négociés avant la signature du bail par les deux parties. Le type de service varie en fonction des services fournis. Contacter le broker chargé de l’annonce pour bien comprendre les coûts associés ou les dépenses supplémentaires pour chaque type de service.
1. Toutes réparations et assurance: Toutes les obligations de réparation et d’assurance du bien (ou de leur part de bien) à l’interne et à l’externe.
2. Réparations internes seulement: L'occupant est responsable des réparations internes seulement. Le propriétaire est responsable des réparations structurelles et externes.
3. Réparations internes et assurance: L'occupant est responsable des réparations internes et de l'assurance pour les parties internes du bien seulement. Le propriétaire est responsable des réparations structurelles et externes.
4. Négociable ou à déterminer: Cette option est utilisée lorsque le contact de location ne fournit pas le type de service.
Plan du site
Informations sur l’immeuble
| Espace total disponible | 1 030 m² | Année de construction/rénovation | 1979/2026 |
| Type de bien | Local commercial | Statut de la construction | En cours de rénovation |
| Surface commerciale utile | 5 844 m² |
| Espace total disponible | 1 030 m² |
| Type de bien | Local commercial |
| Surface commerciale utile | 5 844 m² |
| Année de construction/rénovation | 1979/2026 |
| Statut de la construction | En cours de rénovation |
À propos du bien
The new units will comprise a steel portal frame building with new composite cladding formed from colour coded metallic facia panels. The front elevation will include a new full height glazed entrance with glazed canopy with a trimmed and framed unit above for signage. Capped services will be installed. Externally, the site will benefit form a new surface to the car park providing in excess of 95 shared spaces with EV charging and designated disabled bays. In addition to this there will be new soft and hard landscaping. The scheme will benefit form estate signage to the rear of the premises facing the A391 and the Roundswell roundabout. The new retail development at Brannams Campus is located on this well established business park, that is situated in close proximity to the Roundswell roundabout, which forms part of the A39 and A361 North Devon link road. Access to J27 of the M5 motorway is approximately 35 miles to the East. Furthermore, Barnstaple is well served by rail links to Exeter. The scheme is in close proximity to Sainsburys and Lidl supermarkets.
Principaux commerces à proximité
Présenté par
Brannams Campus | Oakwood Close
Hum, une erreur s’est produite lors de l’envoi de votre message. Veuillez réessayer.
Merci ! Votre message a été envoyé.
