Connectez-vous/S’inscrire
Votre e-mail a été envoyé.
Moret, Caceres, Parte, 12 Lot | Terrain commercial | 1 ha | À vendre | 367 000 € | Cáceres, Cáceres 10003



Certaines informations ont été traduites automatiquement.
INFORMATIONS SUR L’IMMEUBLE
| Prix | 367 000 € | Type de bien | Terrain |
| Type de vente | Investissement ou propriétaire occupant | Sous-type de bien | Terrain commercial |
| Nb de lots | 1 | Surface totale du lot | 1 ha |
| Prix | 367 000 € |
| Type de vente | Investissement ou propriétaire occupant |
| Nb de lots | 1 |
| Type de bien | Terrain |
| Sous-type de bien | Terrain commercial |
| Surface totale du lot | 1 ha |
1 LOT DISPONIBLE
Lot
| Prix | 367 000 € | Surface du lot | 1 ha |
| Prix par ha | 367 000,57 € |
| Prix | 367 000 € |
| Prix par ha | 367 000,57 € |
| Surface du lot | 1 ha |
DESCRIPTION
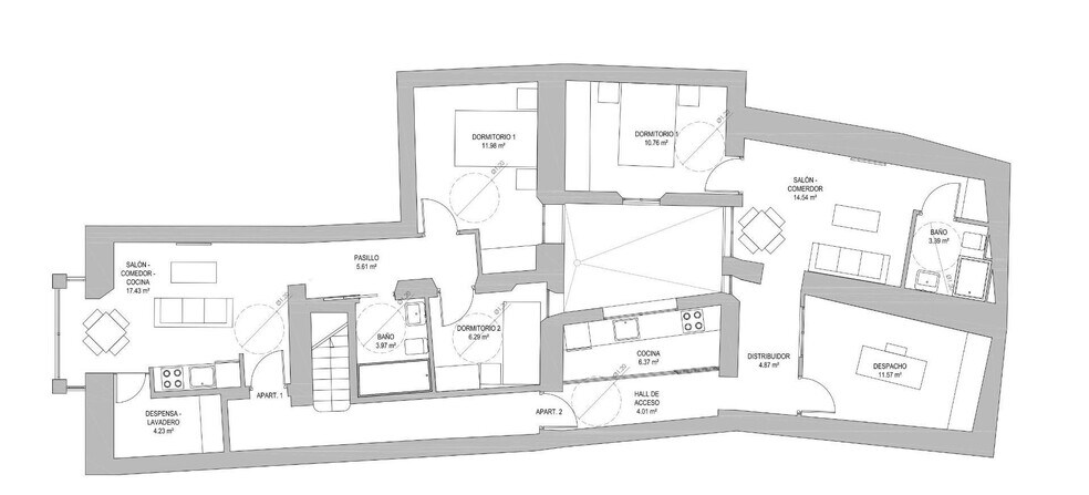
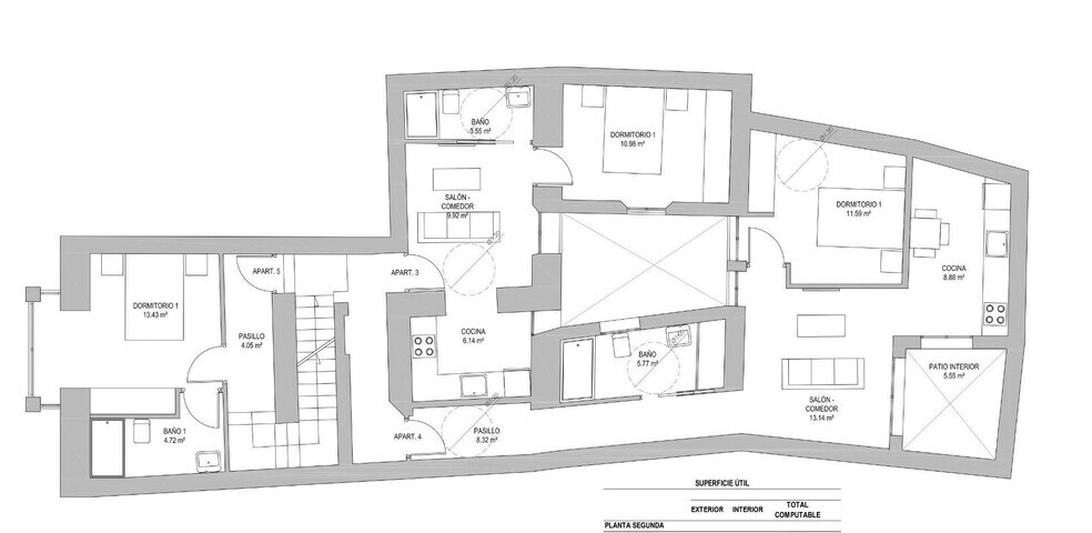
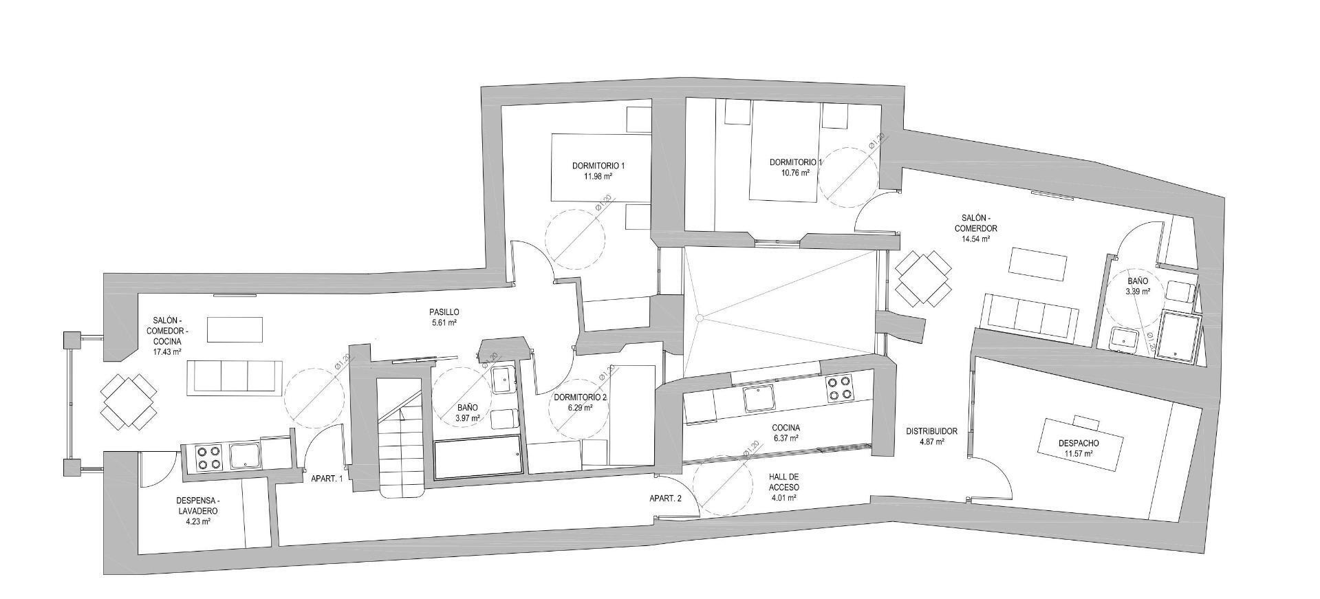
Se vende edificio entero de 3 plantas, perfecto para invertir y hacer apartamentos... En las fotografías se muestran los planos de los apartamentos... Ubicación privilegiada en el centro histórico de Cáceres... Oportunidad única:... Un inmueble con estas características y ubicación es difícil de encontrar. Déjate enamorar por su encanto y por el sinfín de posibilidades que ofrece... ¡Contáctanos en Inmobiliaria Fernández para más información o para concertar una visita!. Teléfono: Sara . Correo:
1 1
1 sur 4
VIDÉOS
VISITE EXTÉRIEURE 3D MATTERPORT
VISITE 3D
PHOTOS
STREET VIEW
RUE
CARTE
1 sur 1
Présenté par
Moret, Caceres, Parte, 12
Vous êtes déjà membre ? Connectez-vous
Hum, une erreur s’est produite lors de l’envoi de votre message. Veuillez réessayer.
Merci ! Votre message a été envoyé.
