Connectez-vous/S’inscrire
Votre e-mail a été envoyé.
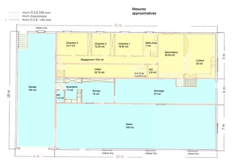
01300 Magnieu Local d'activités 514 m² À vendre 575 000 € (1 118,68 €/m²)



Informations principales sur l'investissement
- Logement attenant avec jardin et suite parentale.
- Cadre verdoyant conciliant vie pro et perso.
- Zone artisanale dynamique et bien desservie.
Résumé analytique
Cet ensemble professionnel se distingue par sa polyvalence et ses volumes généreux, offrant une surface totale de 514 m². Il comprend un atelier spacieux, des zones de stockage, un bureau fonctionnel et un garage, ainsi que des espaces supplémentaires modulables selon les besoins. Cette configuration permet d’accueillir des activités artisanales ou industrielles tout en offrant une grande flexibilité d’aménagement.
Taxes et frais d’exploitation (Réel - 2025) |
Annuel | Annuel par m² |
|---|---|---|
| Taxe foncière |
2 100 €
|
3,49 €
|
| Taxe bureaux |
-
|
-
|
| Frais d’exploitation |
-
|
-
|
| Total des frais |
2 100 €
|
3,49 €
|
Taxes et frais d’exploitation (Réel - 2025)
| Taxe foncière | |
|---|---|
| Annuel | 2 100 € |
| Annuel par m² | 3,49 € |
| Taxe bureaux | |
|---|---|
| Annuel | - |
| Annuel par m² | - |
| Frais d’exploitation | |
|---|---|
| Annuel | - |
| Annuel par m² | - |
| Total des frais | |
|---|---|
| Annuel | 2 100 € |
| Annuel par m² | 3,49 € |
Informations sur l’immeuble
| Prix | 575 000 € | Sous-type de bien | Manufacture légère |
| Prix par m² | 1 118,68 € | Classe d’immeuble | C |
| Frais d’agence | 6,00 % du prix de vente | Surface utile brute | < 1 000 m² |
| Type de vente | Propriétaire occupant | Année de construction | 2010 - 2019 |
| Condition de vente | Ventes de portefeuille | Occupation | Mono |
| Type de bien | Local d'activités |
| Prix | 575 000 € |
| Prix par m² | 1 118,68 € |
| Frais d’agence | 6,00 % du prix de vente |
| Type de vente | Propriétaire occupant |
| Condition de vente | Ventes de portefeuille |
| Type de bien | Local d'activités |
| Sous-type de bien | Manufacture légère |
| Classe d’immeuble | C |
| Surface utile brute | < 1 000 m² |
| Année de construction | 2010 - 2019 |
| Occupation | Mono |
1 1
1 sur 26
Vidéos
Visite extérieure 3D Matterport
Visite 3D
Photos
Street view
Rue
Carte
1 sur 1
Présenté par
"01300 Magnieu"
Vous êtes déjà membre ? Connectez-vous
Hum, une erreur s’est produite lors de l’envoi de votre message. Veuillez réessayer.
Merci ! Votre message a été envoyé.
