Votre e-mail a été envoyé.
Calle de Santa María Magdalena Bureaux/Local commercial | 357 m² | À louer | Chamartín, Madrid 28016



Certaines informations ont été traduites automatiquement.
Informations principales
- Inmueble de uso terciario en el distrito de Chamartín, Madrid.
- Accesos mediante metro, autobuses urbanos y vías principales como la M-30.
- Entorno próximo a Parque de Berlín y Auditorio Nacional de Música.
Tous les espace disponibles(1)
Afficher les loyers en
- Espace
- Surface
- Durée
-
Loyer
- Type de bien
- Aménagement
- Disponible
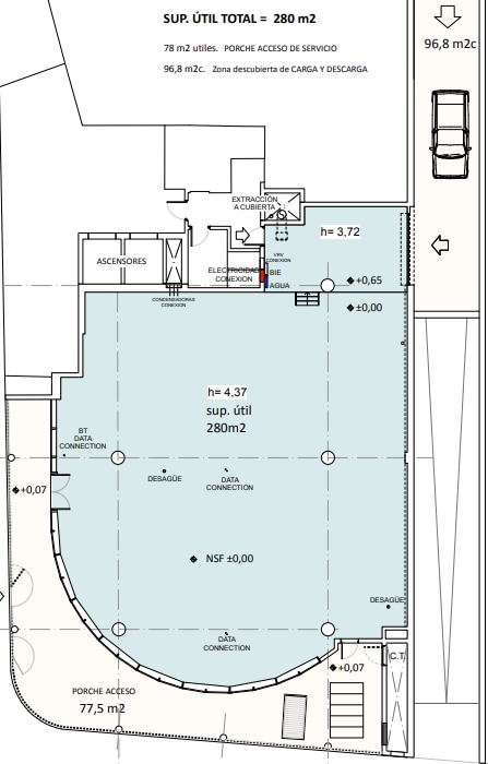
Oficina – Local en esquina con gran visibilidad y excelente luminosidad natural, situado en edificio exclusivo y representativo. El inmueble cuenta con una superficie de 357 m2, distribuida en un espacio completamente diáfano, lo que permite una gran versatilidad de implantación. Dispone de una altura libre de 3 metros, aportando amplitud y confort al espacio. Destaca por su fachada acristalada, que garantiza una magnífica entrada de luz natural durante toda la jornada, reforzando la visibilidad y presencia del activo al tratarse de un local en esquina. El edificio ofrece muelle de carga propio, con acceso directo desde la calle al inmueble, así como dos plazas de aparcamiento incluidas. El espacio se encuentra en buen estado de conservación y está equipado con falso techo modular con luminarias LED empotradas, suelo técnico elevado para cableado, red de datos por suelo técnico, y fibra óptica. Dispone de sistema de climatización individual, sistema de protección contra incendios, seguridad 24 horas con control de accesos, dos ascensores y montacargas. Además, cuenta con cocina y está totalmente adaptado para personas con movilidad reducida. Una excelente oportunidad para empresas que buscan un espacio moderno, funcional y altamente representativo, con visibilidad, luz natural y excelentes prestaciones técnicas.
- Taxes et charges incluses dans le loyer
- Disposition open space
- Espace d’angle
- Lumière naturelle
- Open space
- En esquina con fachada acristalada.
- Suelo técnico elevado y falso techo.
- Dos plazas de aparcamiento incluidas.
- Entièrement aménagé comme Local commercial standard
- Climatisation centrale
- Plafonds suspendus
- Toilettes incluses dans le bail
- Superficie diáfana de 357 m2.
- Altura libre interior de 3 m.
- Muelle de carga con acceso directo.
| Espace | Surface | Durée | Loyer | Type de bien | Aménagement | Disponible |
| RDC | 357 m² | Négociable | 353,94 € /m²/an INCL 29,50 € /m²/mois INCL 126 358 € /an INCL 10 530 € /mois INCL | Bureaux/Local commercial | Construction achevée | Maintenant |
RDC
| Surface |
| 357 m² |
| Durée |
| Négociable |
|
Loyer
|
| 353,94 € /m²/an INCL 29,50 € /m²/mois INCL 126 358 € /an INCL 10 530 € /mois INCL |
| Type de bien |
| Bureaux/Local commercial |
| Aménagement |
| Construction achevée |
| Disponible |
| Maintenant |
RDC
| Surface | 357 m² |
| Durée | Négociable |
|
Loyer
|
353,94 € /m²/an INCL |
| Type de bien | Bureaux/Local commercial |
| Aménagement | Construction achevée |
| Disponible | Maintenant |
Oficina – Local en esquina con gran visibilidad y excelente luminosidad natural, situado en edificio exclusivo y representativo. El inmueble cuenta con una superficie de 357 m2, distribuida en un espacio completamente diáfano, lo que permite una gran versatilidad de implantación. Dispone de una altura libre de 3 metros, aportando amplitud y confort al espacio. Destaca por su fachada acristalada, que garantiza una magnífica entrada de luz natural durante toda la jornada, reforzando la visibilidad y presencia del activo al tratarse de un local en esquina. El edificio ofrece muelle de carga propio, con acceso directo desde la calle al inmueble, así como dos plazas de aparcamiento incluidas. El espacio se encuentra en buen estado de conservación y está equipado con falso techo modular con luminarias LED empotradas, suelo técnico elevado para cableado, red de datos por suelo técnico, y fibra óptica. Dispone de sistema de climatización individual, sistema de protección contra incendios, seguridad 24 horas con control de accesos, dos ascensores y montacargas. Además, cuenta con cocina y está totalmente adaptado para personas con movilidad reducida. Una excelente oportunidad para empresas que buscan un espacio moderno, funcional y altamente representativo, con visibilidad, luz natural y excelentes prestaciones técnicas.
- Taxes et charges incluses dans le loyer
- Entièrement aménagé comme Local commercial standard
- Disposition open space
- Climatisation centrale
- Espace d’angle
- Plafonds suspendus
- Lumière naturelle
- Toilettes incluses dans le bail
- Open space
- Superficie diáfana de 357 m2.
- En esquina con fachada acristalada.
- Altura libre interior de 3 m.
- Suelo técnico elevado y falso techo.
- Muelle de carga con acceso directo.
- Dos plazas de aparcamiento incluidas.
Aperçu du bien
Local-bureau à louer situé calle de Santa María Magdalena, à Madrid. Dans l’environnement proche se trouvent des espaces urbains et des équipements de référence tels que le parc de Berlin, l’Auditorium national de musique et l’axe du paseo de la Castellana. À proximité, on trouve également des bâtiments institutionnels, des établissements scolaires, des infrastructures de santé et des zones commerciales de proximité, ainsi que des bureaux et des services liés à l’activité tertiaire du district. Les liaisons s’appuient sur le réseau de transport public de Madrid, avec des stations de métro proches comme Colombia (lignes 8 et 9) et Concha Espina (ligne 9), ainsi que plusieurs lignes de bus de l’EMT qui desservent différents points de la ville. L’accès en transport privé se fait par des axes principaux tels que le paseo de la Castellana et la M-30, qui facilite la connexion avec le reste du réseau routier métropolitain.
- Ligne d’autobus
- Métro
- Système de sécurité
- Proche transports en commun
- Accessible fauteuils roulants
- Wi-Fi
- Ascenseur
- Éclairage encastré
- Salle de bain privée
- Climatisation
Informations sur l’immeuble
Présenté par
Calle de Santa María Magdalena
Hum, une erreur s’est produite lors de l’envoi de votre message. Veuillez réessayer.
Merci ! Votre message a été envoyé.



