Connectez-vous/S’inscrire
			
		Votre e-mail a été envoyé.
 
                                                    
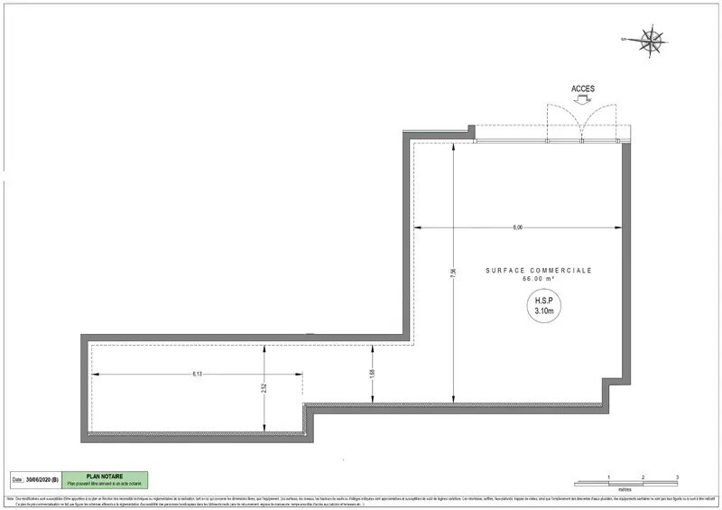
					06110 Le Cannet Local commercial 66 m² À vendre 210 000 € (3 181,82 €/m²)


 
                                
            RÉSUMÉ ANALYTIQUE
            
A VENDRE - Immeuble neuf livré, Le Cannet - Boulevard Carnot,
Local commercial de 66 m², brut, fluides en attente,
Belle vitrine, hauteur sous plafond 3m10,
Cave,
Possibilité d'acquérir en sus, Garage "commandé" (2 places),
Nombre de lots de la copropriété : 188, Montant moyen annuel de la quote-part de charges (budget prévisionnel)(Estimation) : 1080€ soit 90€ par mois. Les honoraires sont à la charge du vendeur.
Les informations sur les risques auxquels ce bien est exposé sont disponibles sur le site Géorisques : www. georisques. gouv. fr.
Réseau Immobilier CAPIFRANCE - Votre agent commercial (RSAC N°524 641 636 - Greffe de NICE) Christian ARIONE Entrepreneur Individuel 06 72 32 13 76 - Réf.923733
    Local commercial de 66 m², brut, fluides en attente,
Belle vitrine, hauteur sous plafond 3m10,
Cave,
Possibilité d'acquérir en sus, Garage "commandé" (2 places),
Nombre de lots de la copropriété : 188, Montant moyen annuel de la quote-part de charges (budget prévisionnel)(Estimation) : 1080€ soit 90€ par mois. Les honoraires sont à la charge du vendeur.
Les informations sur les risques auxquels ce bien est exposé sont disponibles sur le site Géorisques : www. georisques. gouv. fr.
Réseau Immobilier CAPIFRANCE - Votre agent commercial (RSAC N°524 641 636 - Greffe de NICE) Christian ARIONE Entrepreneur Individuel 06 72 32 13 76 - Réf.923733
| BILAN FINANCIER (RÉEL - 2025) | ANNUEL | ANNUEL PAR m² | 
|---|---|---|
| Taxe foncière | 1 000 €   | 0,10 €   | 
| Taxe bureaux | -   | -   | 
| Frais d’exploitation | -   | -   | 
| Total des frais | 1 000 €   | 0,10 €   | 
BILAN FINANCIER (RÉEL - 2025)
| Taxe foncière | |
|---|---|
| Annuel | 1 000 € | 
| Annuel par m² | 0,10 € | 
| Taxe bureaux | |
|---|---|
| Annuel | - | 
| Annuel par m² | - | 
| Frais d’exploitation | |
|---|---|
| Annuel | - | 
| Annuel par m² | - | 
| Total des frais | |
|---|---|
| Annuel | 1 000 € | 
| Annuel par m² | 0,10 € | 
INFORMATIONS SUR L’IMMEUBLE
											Type de vente
										
										
												Investissement
											
										
											Type de bien
										
										
												Local commercial
											
										
											Sous-type de bien
										
										
												Local commercial
											
										
											Surface de l’immeuble
										
										
												< 1 000 m²
											
										
											Classe d’immeuble
										
										
												B
											
										
											Classement LoopNet
										
										
												4 Étoiles
											
										
											Année de construction
										
										
												2020 - 2025
											
										
											Prix
										
										
												210 000 €
											
										
											Prix par m²
										
										
												3 181,82 €
											
										CARACTÉRISTIQUES
- Balcon
- Commerces sur place
- Transports en commun
- Entrée avec clé électronique
DISPONIBILITÉ DE L’ESPACE
- ESPACE
- SURFACE
- TYPE DE BIEN
- POSTE
- DISPONIBLE
- -
- 66 m²
- Local commercial
- -
- Maintenant
| Espace | Surface | Type de bien | Poste | Disponible | 
| - | 66 m² | Local commercial | - | Maintenant | 
-
| Surface | 
| 66 m² | 
| Type de bien | 
| Local commercial | 
| Poste | 
| - | 
| Disponible | 
| Maintenant | 
                    1  1
            
            
        PRINCIPAUX COMMERCES À PROXIMITÉ
 
							 
							 
							 
							 
							 
							 
							 
							 
							 
							1 sur 3
            
                
                    VIDÉOS
                    VISITE EXTÉRIEURE 3D MATTERPORT
			        VISITE 3D
			        PHOTOS
			        
				        STREET VIEW
				        RUE
			        
			        CARTE
                
            
            
			
		
                    1 sur 1
            
            
        Présenté par
 
"06110 Le Cannet"
Vous êtes déjà membre ? Connectez-vous
		Hum, une erreur s’est produite lors de l’envoi de votre message. Veuillez réessayer.
Merci ! Votre message a été envoyé.
