Votre e-mail a été envoyé.
14123 Ifs Bureau | 339-340 m² | À vendre


Description
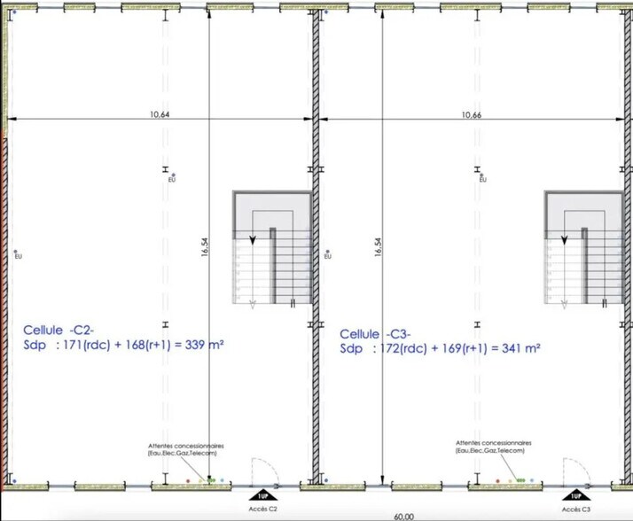
"A vendre, livré brut de béton, en pré-aménagé ou clé en main, des bureaux en R+1 avec mezzanine et parkings, au sein d'un village d'entreprises en construction, composé de plusieurs locaux d'activités et tertiaires, sur une parcelle de 4 500 m², situés sur la ville de Ifs, sur la nouvelle zone d'activités ""OBJECTIF SUD"". Ces bureaux vous sont proposés par Cushman & Wakefield spécialisé dans la vente et la location de bureaux, commerces, locaux d'activité et entrepôts sur Le Havre, Caen, Rouen et la Normandie." En plein coeur de l'agglomération Caennaise. Avec une visibilité directe du rond-point en entrée de ZAC. Ensemble de bâtiments répondant à vos besoins puisqu'ils sont entièrement modulables avec des places de stationnements. Bureaux en R+1 LOT C2 = 171 RDC & 168 en R+1 LOT C3 = 172 RDC & 169 en R+1 LOT C4 = 172 RDC & 169 en R+1 Livré brut de béton, en pré-aménagé ou clé en main 11 places de parking = 55 000 euros Possibilité de location
Informations sur l’immeuble
| Surface du lot | 339 - 340 m² | Type de bien | Bureau |
| Nb de lots | 3 |
| Surface du lot | 339 - 340 m² |
| Nb de lots | 3 |
| Type de bien | Bureau |
3 Lots disponibles
| Surface du lot | 339 m² | Type de vente | Propriétaire occupant |
| Usage du lot en coprop. | Bureau |
| Surface du lot | 339 m² |
| Usage du lot en coprop. | Bureau |
| Type de vente | Propriétaire occupant |
| Surface du lot | 340 m² | Type de vente | Propriétaire occupant |
| Usage du lot en coprop. | Bureau |
| Surface du lot | 340 m² |
| Usage du lot en coprop. | Bureau |
| Type de vente | Propriétaire occupant |
| Surface du lot | 340 m² | Type de vente | Propriétaire occupant |
| Usage du lot en coprop. | Bureau |
| Surface du lot | 340 m² |
| Usage du lot en coprop. | Bureau |
| Type de vente | Propriétaire occupant |
Présenté par
"14123 Ifs"
Hum, une erreur s’est produite lors de l’envoi de votre message. Veuillez réessayer.
Merci ! Votre message a été envoyé.
