Connectez-vous/S’inscrire
Votre e-mail a été envoyé.
69740 Genas Local d'activités À vendre 1 324 400 € (529,76 €/m²)



Notes sur la vente
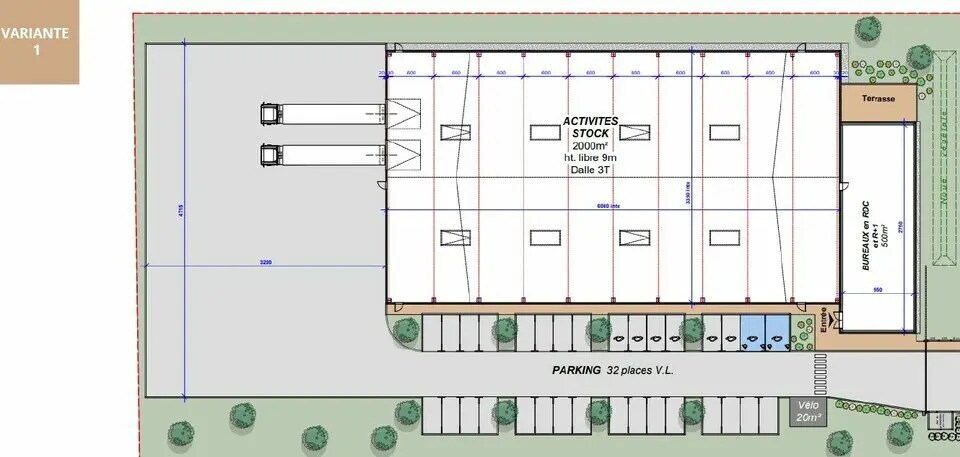
CGI REAL ESTATE LYON vous propose l'acquisition d'un bâtiment indépendant d'environ 2 500 m², implanté sur un terrain de 6 637 m², situé à GENAS, au coeur de l'Est lyonnais. Le site bénéficie d'un accès poids lourds, d'une vaste aire de manoeuvre et d'une excellente desserte via les grands axes autoroutiers.
Possibilité de division en 4 lots de taille équivalente, offrant flexibilité et modularité pour s'adapter à vos besoins. Une opportunité rare pour investisseurs ou utilisateurs en recherche de visibilité et de fonctionnalité.
- Accès PL
- Aire de Manoeurvre
- Façade bardage double peau
- Nbre Parkings extérieurs : 32
- Portes sectionnelles :
- Structure métallique
- Dalle 3T
Possibilité de division en 4 lots de taille équivalente, offrant flexibilité et modularité pour s'adapter à vos besoins. Une opportunité rare pour investisseurs ou utilisateurs en recherche de visibilité et de fonctionnalité.
- Accès PL
- Aire de Manoeurvre
- Façade bardage double peau
- Nbre Parkings extérieurs : 32
- Portes sectionnelles :
- Structure métallique
- Dalle 3T
Informations sur l’immeuble
| Prix | 1 324 400 € | Type de bien | Local d'activités |
| Prix par m² | 529,76 € | Surface utile brute | 2 500 m² |
| Type de vente | Propriétaire occupant |
| Prix | 1 324 400 € |
| Prix par m² | 529,76 € |
| Type de vente | Propriétaire occupant |
| Type de bien | Local d'activités |
| Surface utile brute | 2 500 m² |
1 1
1 sur 7
Vidéos
Visite extérieure 3D Matterport
Visite 3D
Photos
Street view
Rue
Carte
1 sur 1
Présenté par
CGI Real Estate
"69740 Genas"
Vous êtes déjà membre ? Connectez-vous
Hum, une erreur s’est produite lors de l’envoi de votre message. Veuillez réessayer.
Merci ! Votre message a été envoyé.
Votre message a été envoyé !
Activez votre compte LoopNet dès maintenant pour suivre les biens, recevoir des alertes en temps réel, gagner du temps sur vos futures demandes et bien plus encore.
