Votre e-mail a été envoyé.
14460 Colombelles Local commercial | | 201 996 € par lot | À vendre


Description
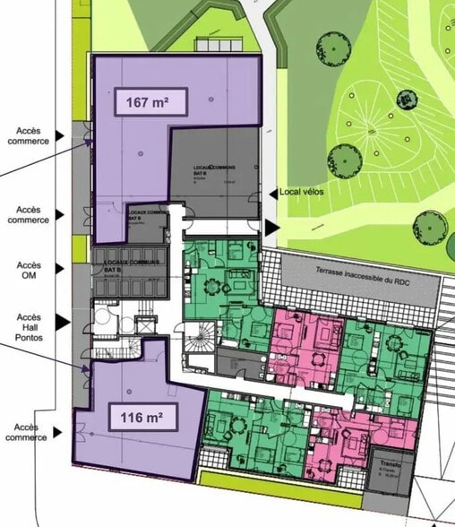
Au sein d'un programme neuf en cours de construction, deux cellules commerciales vendues en VEFA, situées dans un environnement en plein développement à proximité immédiate des axes principaux. Surface totale possible d'environ 283 m², divisible à partir de 116 m². Deux surfaces disponibles : 167 m² et 116 m². Il est encore possible de fusionner les deux locaux pour former un seul espace en modifiant l'implantation du local vélos. Les cellules sont situées en rez-de-chaussée d'un ensemble immobilier neuf à usage mixte. Ces locaux vous sont proposés à la vente par PROLOCAUX. Prestations - équipements : A vendre, local commercial d'environ 283 m² divisible à partir de 116 m² o Locaux livrés brutso Fluides en attenteo Vitrines en attenteo Accès indépendantso 4 stationnements en sous-solo Construction neuveo Livraison prévisionnelle : 3ème trimestre 2026o Possibilité d'adaptation des façades vitrées selon projet Sofia OLIVEIRA, agent commercial PROLOCAUX - inscrite au RSAC d'EVREUX sour le numéro 838 485 571
2 Lots disponibles
- Lot
- Surface du lot
- Usage du lot en coprop.
- Prix
- RNE
| Type de vente | Propriétaire occupant | Frais d’agence | 8,00 % du prix de vente |
| Type de vente | Propriétaire occupant |
| Frais d’agence | 8,00 % du prix de vente |
| Type de vente | Propriétaire occupant | Frais d’agence | 8,00 % du prix de vente |
| Type de vente | Propriétaire occupant |
| Frais d’agence | 8,00 % du prix de vente |
| Lot | Surface du lot | Usage du lot en coprop. | Prix | RNE |
| Lot :null | 167 m² | Local commercial | 290 804 € (1 741,90 €/m²) | - |
| Lot :null | 116 m² | Local commercial | 201 996 € (1 742,20 €/m²) | - |
Lot :null
| Surface du lot |
| 167 m² |
| Usage du lot en coprop. |
| Local commercial |
| Prix |
| 290 804 € (1 741,90 €/m²) |
| RNE |
| - |
Lot :null
| Surface du lot |
| 116 m² |
| Usage du lot en coprop. |
| Local commercial |
| Prix |
| 201 996 € (1 742,20 €/m²) |
| RNE |
| - |
Lot :null
| Surface du lot | 167 m² |
| Usage du lot en coprop. | Local commercial |
| Prix | 290 804 € (1 741,90 €/m²) |
| RNE | - |
| Type de vente | Propriétaire occupant |
| Frais d’agence | 8,00 % du prix de vente |
Lot :null
| Surface du lot | 116 m² |
| Usage du lot en coprop. | Local commercial |
| Prix | 201 996 € (1 742,20 €/m²) |
| RNE | - |
| Type de vente | Propriétaire occupant |
| Frais d’agence | 8,00 % du prix de vente |
Informations sur l’immeuble
| Prix | 201 996 € | Surface totale de l’immeuble | < 1 000 m² |
| Surface du lot | 116 - 167 m² | Type de bien | Local commercial |
| Nb de lots | 2 |
| Prix | 201 996 € |
| Surface du lot | 116 - 167 m² |
| Nb de lots | 2 |
| Surface totale de l’immeuble | < 1 000 m² |
| Type de bien | Local commercial |
Présenté par
"14460 Colombelles"
Hum, une erreur s’est produite lors de l’envoi de votre message. Veuillez réessayer.
Merci ! Votre message a été envoyé.
Renseignez ces informations pour appeler le broker
