Votre e-mail a été envoyé.
68000 Colmar Local commercial | 156 m² | 143 000 € | À vendre



Description
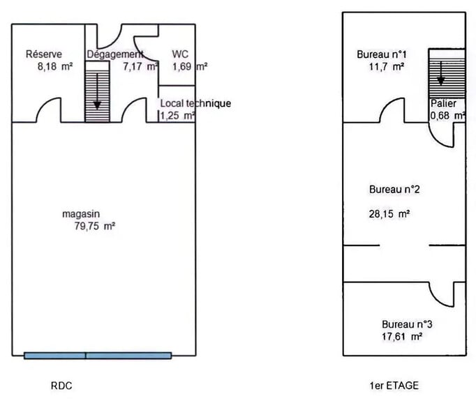
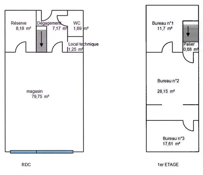
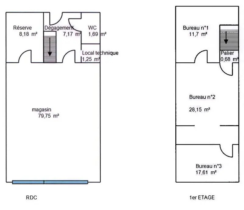
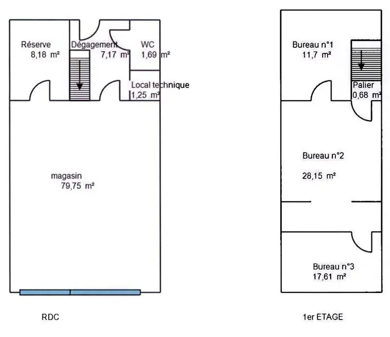
Optimhome vous présente : 68000 – COLMAR – LOCAL COMMERCIAL – BUREAUX COMMERCIAUX - PLAIN-PIED - ACCES PMR (Personnes à Mobilité Réduite) - 156 M² – ZONE COMMERCIALE DYNAMIQUE – PARKING À PROXIMITÉ Optimhome vous propose ce local commercial de 156,18 m² (loi Carrez), situé à Colmar, au cœur d'une zone commerciale dynamique regroupant divers commerces de proximité (pharmacie, opticien, alimentation, services…) et à deux pas de grandes enseignes très fréquentées. Ce local bénéficie d'une excellente visibilité grâce à sa situation privilégiée, à proximité immédiate des transports en commun et de l'hôpital Pasteur, ainsi qu'à la présence d'un grand parking facilitant l'accès de la clientèle. Vous apprécierez tout particulièrement : - La surface totale de 156 m² répartie sur deux niveaux - Accès de plain-pied adapté aux personnes à mobilité réduite (PMR) - Les deux entrées indépendantes : l'une dédiée à la clientèle, l'autre pour le personnel ou les livraisons - La localisation stratégique dans un secteur à fort passage, entouré de commerces complémentaires - Le potentiel d'activités variées : vente, alimentation spécialisée, épicerie fine, santé et bien-être, cosmétique, cabinet de consultation, showroom, etc. Le local s'organise comme suit : Rez-de-chaussée : - Magasin principal de près de 80m2 - Espace de rangement de 8m2 - Entrée avec accès à l'escalier - Local technique - WC séparés Étage : - Trois pièces supplémentaires (bureau ou rangement) de 11 à 28m2 Un local commercial idéal pour développer votre activité dans un emplacement stratégique et à fort potentiel de rendement, au cœur d'un quartier dynamique de Colmar. Nombre de lots : 23 Charges prévisionnelles annuelles : 580 € Les informations sur les risques auxquels ce bien est exposé sont disponibles sur le site Géorisques : www.georisques.gouv.fr Vous souhaitez prendre une rendez-vous via l'agenda en ligne ? Rendez-vous sur le site welmo.fr ou indiquer "Welmo local commercial Colmar" dans un moteur de recherche. Les honoraires d'agence sont à la charge de l'acquéreur, soit 5,92% TTC du prix hors honoraires. Les informations sur les risques auxquels ce bien est exposé sont disponibles sur le site Géorisques : www. georisques. gouv. fr. Contactez Fanny RAVENEL Entrepreneur Individuel, Agent commercial OptimHome (RSAC N°932 798 929 Greffe de COLMAR) 06 33 01 58 22 (réf. 592388 )
Informations sur l’immeuble
| Prix | 143 000 € | Type de bien | Local commercial (Lot en copropriété) |
| Surface du lot | 156 m² | Type de vente | Propriétaire occupant |
| Nb de lots | 1 |
| Prix | 143 000 € |
| Surface du lot | 156 m² |
| Nb de lots | 1 |
| Type de bien | Local commercial (Lot en copropriété) |
| Type de vente | Propriétaire occupant |
1 Lot disponible
| Surface du lot | 156 m² | Usage du lot en coprop. | Local commercial |
| Prix | 143 000 € | Type de vente | Propriétaire occupant |
| Prix par m² | 916,76 € |
| Surface du lot | 156 m² |
| Prix | 143 000 € |
| Prix par m² | 916,76 € |
| Usage du lot en coprop. | Local commercial |
| Type de vente | Propriétaire occupant |
Présenté par
Optimhome
"68000 Colmar"
Hum, une erreur s’est produite lors de l’envoi de votre message. Veuillez réessayer.
Merci ! Votre message a été envoyé.
