Votre e-mail a été envoyé.
69630 Chaponost Local d’activités | 271 m² | À louer



Informations principales
- Bâtiment récent
- Ossature métallique
- Dalle quartzée
Caractéristiques
Tous les espace disponibles(1)
Afficher les loyers en
- Espace
- Surface
- Durée
-
Loyer
- Type de bien
- Aménagement
- Disponible
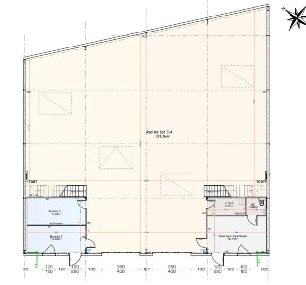
Cushman & Wakefield vous propose un local industriel neuf à la location de 271 m², situé dans la zone industrielle de Taffignon sur la commune de Chaponost. Ce bien rare sur le secteur comprend 58 m² de bureaux modernes et fonctionnels, ainsi que plusieurs places de parking. À quelques encablures de la route de Brignais, ce local bénéficie d'une excellente accessibilité. Le local industriel, construit avec des matériaux de qualité, offre des espaces de travail optimisés pour répondre aux besoins des entreprises modernes. Les bureaux, lumineux et bien aménagés, sont parfaits pour accueillir votre équipe dans un cadre confortable et professionnel. La zone industrielle de Taffignon est réputée pour son dynamisme et son environnement propice au développement des activités industrielles et commerciales. L'accessibilité est un atout majeur de ce bien. Situé à proximité immédiate des principaux axes routiers, notamment la route de Brignais, l'autoroute A450 et la rocade Est, ce local permet des déplacements faciles vers Lyon et les autres grandes villes de la région. De plus, la zone est bien desservie par les transports en commun, avec plusieurs lignes de bus à proximité, facilitant l'accès pour vos employés et visiteurs. Ce local industriel est une opportunité unique pour une entreprise souhaitant s'implanter dans une zone stratégique, offrant à la fois des espaces de production et des bureaux modernes et fonctionnels. Profitez de cette occasion rare pour développer votre activité dans un environnement propice à la croissance et à l'innovation. Ne manquez pas cette opportunité exceptionnelle de vous installer dans un local industriel de qualité à Chaponost. Contactez-nous dès aujourd'hui pour découvrir ce bien ! Bâtiment récent Contrôle d'accès Porte plain pied Portes sectionnelle Skydomes Dalle quartzée Ossature métallique Couverture bac acier Triphasée Aire de manoeuvre Parking VL Accueil Bureaux climatisés Eclairage LED Surface RDC : 240 m²
- Dépôt de garantie : 3 mois de loyer
- Espace en excellent état
- Climatisation centrale
- Aire de manoeuvre
- Contrôle d'accès
- Comprend 31 m² d’espace de bureau dédié
- 2 accès plain-pied
- Entreposage sécurisé
- Bureaux climatisés
| Espace | Surface | Durée | Loyer | Type de bien | Aménagement | Disponible |
| RDC – 4 | 271 m² | 6-10 Ans | 269,40 € HT-HC/m²/an 22,45 € HT-HC/m²/mois 73 007 € HT-HC/an 6 084 € HT-HC/mois | Local d’activités | Construction achevée | Maintenant |
RDC – 4
| Surface |
| 271 m² |
| Durée |
| 6-10 Ans |
|
Loyer
|
| 269,40 € HT-HC/m²/an 22,45 € HT-HC/m²/mois 73 007 € HT-HC/an 6 084 € HT-HC/mois |
| Type de bien |
| Local d’activités |
| Aménagement |
| Construction achevée |
| Disponible |
| Maintenant |
RDC – 4
| Surface | 271 m² |
| Durée | 6-10 Ans |
|
Loyer
|
269,40 € HT-HC/m²/an |
| Type de bien | Local d’activités |
| Aménagement | Construction achevée |
| Disponible | Maintenant |
Cushman & Wakefield vous propose un local industriel neuf à la location de 271 m², situé dans la zone industrielle de Taffignon sur la commune de Chaponost. Ce bien rare sur le secteur comprend 58 m² de bureaux modernes et fonctionnels, ainsi que plusieurs places de parking. À quelques encablures de la route de Brignais, ce local bénéficie d'une excellente accessibilité. Le local industriel, construit avec des matériaux de qualité, offre des espaces de travail optimisés pour répondre aux besoins des entreprises modernes. Les bureaux, lumineux et bien aménagés, sont parfaits pour accueillir votre équipe dans un cadre confortable et professionnel. La zone industrielle de Taffignon est réputée pour son dynamisme et son environnement propice au développement des activités industrielles et commerciales. L'accessibilité est un atout majeur de ce bien. Situé à proximité immédiate des principaux axes routiers, notamment la route de Brignais, l'autoroute A450 et la rocade Est, ce local permet des déplacements faciles vers Lyon et les autres grandes villes de la région. De plus, la zone est bien desservie par les transports en commun, avec plusieurs lignes de bus à proximité, facilitant l'accès pour vos employés et visiteurs. Ce local industriel est une opportunité unique pour une entreprise souhaitant s'implanter dans une zone stratégique, offrant à la fois des espaces de production et des bureaux modernes et fonctionnels. Profitez de cette occasion rare pour développer votre activité dans un environnement propice à la croissance et à l'innovation. Ne manquez pas cette opportunité exceptionnelle de vous installer dans un local industriel de qualité à Chaponost. Contactez-nous dès aujourd'hui pour découvrir ce bien ! Bâtiment récent Contrôle d'accès Porte plain pied Portes sectionnelle Skydomes Dalle quartzée Ossature métallique Couverture bac acier Triphasée Aire de manoeuvre Parking VL Accueil Bureaux climatisés Eclairage LED Surface RDC : 240 m²
- Dépôt de garantie : 3 mois de loyer
- Comprend 31 m² d’espace de bureau dédié
- Espace en excellent état
- 2 accès plain-pied
- Climatisation centrale
- Entreposage sécurisé
- Aire de manoeuvre
- Bureaux climatisés
- Contrôle d'accès
Aperçu du bien
Cushman & Wakefield vous propose un local industriel neuf à la location de 271 m², situé dans la zone industrielle de Taffignon sur la commune de Chaponost. Ce bien rare sur le secteur comprend 58 m² de bureaux modernes et fonctionnels, ainsi que plusieurs places de parking. À quelques encablures de la route de Brignais, ce local bénéficie d'une excellente accessibilité. Le local industriel, construit avec des matériaux de qualité, offre des espaces de travail optimisés pour répondre aux besoins des entreprises modernes. Les bureaux, lumineux et bien aménagés, sont parfaits pour accueillir votre équipe dans un cadre confortable et professionnel. La zone industrielle de Taffignon est réputée pour son dynamisme et son environnement propice au développement des activités industrielles et commerciales. L'accessibilité est un atout majeur de ce bien. Situé à proximité immédiate des principaux axes routiers, notamment la route de Brignais, l'autoroute A450 et la rocade Est, ce local permet des déplacements faciles vers Lyon et les autres grandes villes de la région. De plus, la zone est bien desservie par les transports en commun, avec plusieurs lignes de bus à proximité, facilitant l'accès pour vos employés et visiteurs. Ce local industriel est une opportunité unique pour une entreprise souhaitant s'implanter dans une zone stratégique, offrant à la fois des espaces de production et des bureaux modernes et fonctionnels. Profitez de cette occasion rare pour développer votre activité dans un environnement propice à la croissance et à l'innovation. Ne manquez pas cette opportunité exceptionnelle de vous installer dans un local industriel de qualité à Chaponost. Contactez-nous dès aujourd'hui pour découvrir ce bien ! Bâtiment récent Contrôle d'accès Porte plain pied Portes sectionnelle Skydomes Dalle quartzée Ossature métallique Couverture bac acier Triphasée Aire de manoeuvre Parking VL Accueil Bureaux climatisés Eclairage LED Surface RDC : 240 m²
Informations sur l’immeuble
Présenté par
"69630 Chaponost"
Hum, une erreur s’est produite lors de l’envoi de votre message. Veuillez réessayer.
Merci ! Votre message a été envoyé.


