Votre e-mail a été envoyé.
77240 Cesson Local d’activités | 118 m² | 212 400 € | À vendre



Description
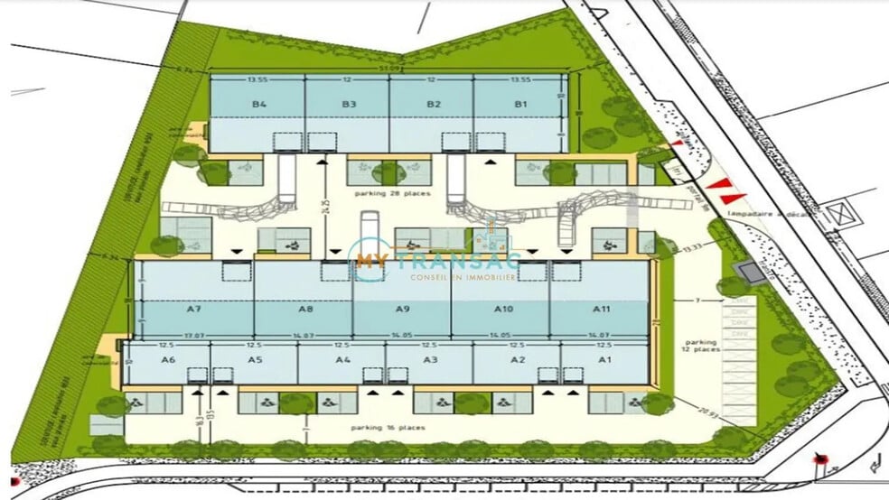
My Transac vous propose à la VENTE des locaux d'activités neufs comprenant 15 cellules sur 2 bâtiments surface à partir de 117m², 333m² et 442m² Possibilité de réunir plusieurs surfaces Prestations Activité : - Hauteur libre : 7m50 - Porte sectionnelle : 2,7m x 3,5m - Électricité : tarif bleu ou jaune selon la cellule - Dallage en béton surfacé quartz (surcharge 3T/m²) - Voirie lourde pour les aires de manœuvre et decirculation - Site clos et sécurisé - Accès par un portail coulissant motorisé réglé sur horloge - Système d'interphone et commande du portail actionnable par téléphone depuis chaque lot - Label BiodiverCity - Certification BREEAM Prestations Mezzanine : - Desservie par escalier en béton, main courante métallique et marches carrelées - Plancher béton dimensionné pour 250 kg/m² de surcharge utile et 100 kg/m² de charge constante - Chauffage électrique par convecteurs radiants électriques - Revêtement du sol en moquette en dalles 50x50 cm - Faux-plafonds en dalles minérales 600x600 mm montées sur ossature métallique - Eclairage par luminaires LED de 600x600 mm intégré au faux-plafond, 300 lux moyen Accès : Autoroute A5 sortie n°12 Cesson – Vert Saint Denis (6 min) Francilienne N104 via A5b (10 min) RER D « Gare de CESSON » (15min) Bus 31 et 36 arrêts Montdauphin et Fontaine Ronde (5min) Conditions financières : Prix de vente : 1800 Euros HT/m²en fonction des lots Honoraire de commercialisation : 5% HT du prix net vendeur
Informations sur l’immeuble
| Prix | 212 400 € | Type de bien | Local d'activités (Lot en copropriété) |
| Surface du lot | 118 m² | Type de vente | Propriétaire occupant |
| Nb de lots | 1 |
| Prix | 212 400 € |
| Surface du lot | 118 m² |
| Nb de lots | 1 |
| Type de bien | Local d'activités (Lot en copropriété) |
| Type de vente | Propriétaire occupant |
1 Lot disponible
| Surface du lot | 118 m² | Usage du lot en coprop. | Local d’activités |
| Prix | 212 400 € | Type de vente | Propriétaire occupant |
| Prix par m² | 1 800,20 € |
| Surface du lot | 118 m² |
| Prix | 212 400 € |
| Prix par m² | 1 800,20 € |
| Usage du lot en coprop. | Local d’activités |
| Type de vente | Propriétaire occupant |
Présenté par
"77240 Cesson"
Hum, une erreur s’est produite lors de l’envoi de votre message. Veuillez réessayer.
Merci ! Votre message a été envoyé.
