Partager cette annonce

Message

942 caractères restants

Hum, une erreur s’est produite lors de l’envoi de votre message. Veuillez réessayer.

Votre e-mail a été envoyé.

Toujours intéressé ?

Contactez le courtier pour plus d'informations sur cette propriété

Description

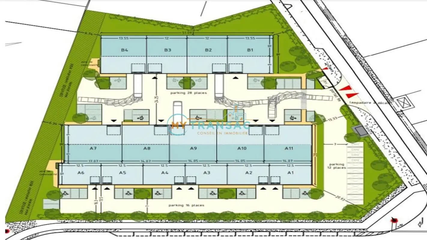
My Transac vous propose à la VENTE des locaux d'activités neufs comprenant 15 cellules sur 2 bâtiments surface à partir de 117m², 333m² et 442m² Possibilité de réunir plusieurs surfaces Prestations Activité : - Hauteur libre : 7m50 - Porte sectionnelle : 2,7m x 3,5m - Électricité : tarif bleu ou jaune selon la cellule - Dallage en béton surfacé quartz (surcharge 3T/m²) - Voirie lourde pour les aires de manœuvre et decirculation - Site clos et sécurisé - Accès par un portail coulissant motorisé réglé sur horloge - Système d'interphone et commande du portail actionnable par téléphone depuis chaque lot - Label BiodiverCity - Certification BREEAM Prestations Mezzanine : - Desservie par escalier en béton, main courante métallique et marches carrelées - Plancher béton dimensionné pour 250 kg/m² de surcharge utile et 100 kg/m² de charge constante - Chauffage électrique par convecteurs radiants électriques - Revêtement du sol en moquette en dalles 50x50 cm - Faux-plafonds en dalles minérales 600x600 mm montées sur ossature métallique - Eclairage par luminaires LED de 600x600 mm intégré au faux-plafond, 300 lux moyen Accès : Autoroute A5 sortie n°12 Cesson – Vert Saint Denis (6 min) Francilienne N104 via A5b (10 min) RER D « Gare de CESSON » (15min) Bus 31 et 36 arrêts Montdauphin et Fontaine Ronde (5min) Conditions financières : Prix de vente : 1800 Euros HT/m²en fonction des lots Honoraire de commercialisation : 5% HT du prix net vendeur

Informations sur l’immeuble

Prix 210 600 €
Surface du lot 117 m²
Nb de lots 1
Type de bien Local d'activités (Lot en copropriété)
Type de vente Propriétaire occupant

1 Lot disponible

Surface du lot 117 m²
Prix 210 600 €
Prix par m² 1 800,54 €
Usage du lot en coprop. Local d’activités
Type de vente Propriétaire occupant
  • ID de l’annonce: 37531311

  • Date de mise sur le marché: 19/09/2025

  • Dernière mise à jour:

  • Adresse: 77240 Cesson

Lien copié
Votre compte LoopNet a été créé !

Veuillez partager vos commentaires

Nous vous invitons à nous faire part de vos commentaires sur la façon dont nous pouvons améliorer LoopNet afin de mieux répondre à vos besoins.
X
{{ getErrorText(feedbackForm.starRating, "Ce notation") }}
255 caractères max. ({{ remainingChars() }} caractèrecaractères restantsur)
{{ getErrorText(feedbackForm.msg, "Ce notation") }}
{{ getErrorText(feedbackForm.fname, "Ce prénom") }}
{{ getErrorText(feedbackForm.lname, "Ce nom") }}
{{ getErrorText(feedbackForm.phone, "Ce numéro de téléphone") }}
{{ getErrorText(feedbackForm.phonex, "Cette extension de téléphone") }}
{{ getErrorText(feedbackForm.email, "Cet email") }}