Votre e-mail a été envoyé.
33560 Carbon-Blanc Local d’activités | | 180 000 € par lot | À vendre



Description
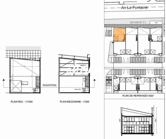
OPPORTUNITÉ Parc d'Activité de l'Estey - Carbon-Blanc (33) Situé en bordure de l'avenue de la Fontaine, avec une visibilité exceptionnelle et un accès direct à l'autoroute A10, le nouveau Parc de l'Estey propose 9 193 m² de surfaces mixtes répartis sur 8 bâtiments neufs. Des prestations "Prime" : - Flexibilité : Cellules modulables à partir de 120 m² +Mezzanine, disponibles à la Vente ou à la Location - Volumes : Hauteur libre de 6 à 8 mètres, idéale pour le stockage ou les activités industrielles. - Équipements : Portes sectionnelles de plain-pied + mezzanines intégrées dans chaque lot. - Accessibilité : Desserte étudiée pour les flux VL et PL, nombreux parkings et abris vélos. Le Parc de l'Estey s'inscrit dans un environnement paysager soigné, à deux pas du centre commercial Sainte-Eulalie, offrant toutes les commodités à vos collaborateurs. - Livraison 1ère tranche : 4ème Trimestre 2026 (Anticipez vos besoins dès maintenant*)Contactez-nous pour étudier les plans et réserver la cellule adaptée à votre projet. *Il est encore temps de demander des aménagements spécifiques (emplacements de cloisons, prises, etc.) - Accès à quai - Espaces Verts - Façade bardage double peau - Local 2 roues - Nbre Parkings extérieurs : 188 - Portail électrique - Quai de chargement - Type de couverture : bac acier galvanisé + iso
Informations sur l’immeuble
| Prix | 180 000 € | Surface totale de l’immeuble | 1 000 - 5 000 m² |
| Surface du lot | 120 - 305 m² | Type de bien | Local d'activités |
| Nb de lots | 7 |
| Prix | 180 000 € |
| Surface du lot | 120 - 305 m² |
| Nb de lots | 7 |
| Surface totale de l’immeuble | 1 000 - 5 000 m² |
| Type de bien | Local d'activités |
7 Lots disponibles
| Surface du lot | 120 m² | Usage du lot en coprop. | Local d’activités |
| Prix | 180 570 € | Type de vente | Propriétaire occupant |
| Prix par m² | 1 505,53 € | Frais d’agence | 5,00 % du prix de vente |
| Surface du lot | 120 m² |
| Prix | 180 570 € |
| Prix par m² | 1 505,53 € |
| Usage du lot en coprop. | Local d’activités |
| Type de vente | Propriétaire occupant |
| Frais d’agence | 5,00 % du prix de vente |
| Surface du lot | 182 m² | Usage du lot en coprop. | Local d’activités |
| Prix | 273 375 € | Type de vente | Propriétaire occupant |
| Prix par m² | 1 502,08 € | Frais d’agence | 5,00 % du prix de vente |
| Surface du lot | 182 m² |
| Prix | 273 375 € |
| Prix par m² | 1 502,08 € |
| Usage du lot en coprop. | Local d’activités |
| Type de vente | Propriétaire occupant |
| Frais d’agence | 5,00 % du prix de vente |
| Surface du lot | 305 m² | Usage du lot en coprop. | Local d’activités |
| Prix | 456 810 € | Type de vente | Propriétaire occupant |
| Prix par m² | 1 498,19 € | Frais d’agence | 5,00 % du prix de vente |
| Surface du lot | 305 m² |
| Prix | 456 810 € |
| Prix par m² | 1 498,19 € |
| Usage du lot en coprop. | Local d’activités |
| Type de vente | Propriétaire occupant |
| Frais d’agence | 5,00 % du prix de vente |
| Surface du lot | 182 m² | Usage du lot en coprop. | Local d’activités |
| Prix | 273 825 € | Type de vente | Propriétaire occupant |
| Prix par m² | 1 500,73 € | Frais d’agence | 5,00 % du prix de vente |
| Surface du lot | 182 m² |
| Prix | 273 825 € |
| Prix par m² | 1 500,73 € |
| Usage du lot en coprop. | Local d’activités |
| Type de vente | Propriétaire occupant |
| Frais d’agence | 5,00 % du prix de vente |
| Surface du lot | 305 m² | Usage du lot en coprop. | Local d’activités |
| Prix | 456 855 € | Type de vente | Propriétaire occupant |
| Prix par m² | 1 500,17 € | Frais d’agence | 5,00 % du prix de vente |
| Surface du lot | 305 m² |
| Prix | 456 855 € |
| Prix par m² | 1 500,17 € |
| Usage du lot en coprop. | Local d’activités |
| Type de vente | Propriétaire occupant |
| Frais d’agence | 5,00 % du prix de vente |
| Surface du lot | 305 m² | Usage du lot en coprop. | Local d’activités |
| Prix | 457 530 € | Type de vente | Propriétaire occupant |
| Prix par m² | 1 500,10 € | Frais d’agence | 5,00 % du prix de vente |
| Surface du lot | 305 m² |
| Prix | 457 530 € |
| Prix par m² | 1 500,10 € |
| Usage du lot en coprop. | Local d’activités |
| Type de vente | Propriétaire occupant |
| Frais d’agence | 5,00 % du prix de vente |
| Surface du lot | 305 m² | Usage du lot en coprop. | Local d’activités |
| Prix | 457 560 € | Type de vente | Propriétaire occupant |
| Prix par m² | 1 500,19 € | Frais d’agence | 5,00 % du prix de vente |
| Surface du lot | 305 m² |
| Prix | 457 560 € |
| Prix par m² | 1 500,19 € |
| Usage du lot en coprop. | Local d’activités |
| Type de vente | Propriétaire occupant |
| Frais d’agence | 5,00 % du prix de vente |
Présenté par
"33560 Carbon-Blanc"
Hum, une erreur s’est produite lors de l’envoi de votre message. Veuillez réessayer.
Merci ! Votre message a été envoyé.

