Votre e-mail a été envoyé.
40130 Capbreton Bureau | | 299 600 € | À vendre



Description
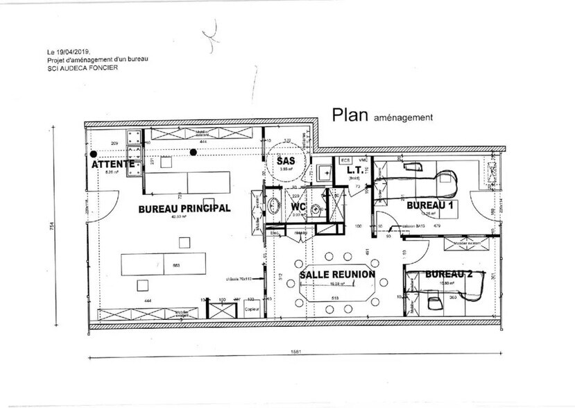
Capbreton - Bureaux modernes avec stationnements privatifs Une opportunité rare sur le secteurImplantés Avenue du Maréchal Foch à Capbreton, ces bureaux offrent un cadre de travail qualitatif, à la fois fonctionnel, lumineux et immédiatement opérationnel. Un emplacement recherché, au coeur d'un environnement professionnel dynamique, à proximité directe du centre-ville et des grands axes. Idéal pour une société de services, un cabinet médical ou paramédical, une activité de conseil, d'ingénierie ou de professions libérales, ce bien répond aux attentes actuelles en matière de confort et d'image professionnelle. Description des locauxD'une surface d'environ 105 m², les bureaux se composent de : - Un espace d'accueil et de travail collaboratif, - Deux bureaux de direction indépendants et confortables, - Une salle de réunion conviviale, - Un espace détente, - Un local technique, - 8 places de stationnement privatives, un véritable atout sur le secteur. L'ensemble est en excellent état, parfaitement entretenu, libre de toute occupation et prêt à accueillir votre activité sans travaux. Les points forts - Emplacement stratégique à Capbreton - Bureaux modernes, lumineux et rationnellement agencés - Stationnements privatifs inclus - Environnement professionnel attractif - Bien rare à la vente sur ce secteur Conditions de vente - Prix de vente : 280 000 Euros - Honoraires d'agence : 19 600 Euros HT, à la charge de l'acquéreur LocalisationAvenue du Maréchal Foch - 40130 Capbreton Accès rapide au centre-ville, aux commerces et à l'autoroute A63. ContactORPI PRO - Tyrosse Immobilier Pro-PCI 31 route de Bordeaux - 40230 Saint-Vincent-de-Tyrosse 05 58 77 08 00
Informations sur l’immeuble
| Prix | 299 600 € | Surface totale de l’immeuble | 105 m² |
| Surface du lot | 105 m² | Type de bien | Bureau (Lot en copropriété) |
| Nb de lots | 1 | Type de vente | Propriétaire occupant |
| Prix | 299 600 € |
| Surface du lot | 105 m² |
| Nb de lots | 1 |
| Surface totale de l’immeuble | 105 m² |
| Type de bien | Bureau (Lot en copropriété) |
| Type de vente | Propriétaire occupant |
1 Lot disponible
| Surface du lot | 105 m² | Usage du lot en coprop. | Bureau |
| Prix | 299 600 € | Type de vente | Propriétaire occupant |
| Prix par m² | 2 853,87 € |
| Surface du lot | 105 m² |
| Prix | 299 600 € |
| Prix par m² | 2 853,87 € |
| Usage du lot en coprop. | Bureau |
| Type de vente | Propriétaire occupant |
Présenté par
"40130 Capbreton"
Hum, une erreur s’est produite lors de l’envoi de votre message. Veuillez réessayer.
Merci ! Votre message a été envoyé.
